Tomten spelade stor roll vid husritning
Lika självklart som det var för Elin och Niklas att de skulle bygga ett semesterhus på landet, lika självklart var det att de skulle rita huset själva.
– Det har aldrig varit snack om något annat än att vi skulle rita själva, säger Niklas.
Niklas jobbar som grafisk formgivare och har haft egen firma sedan 2004. I sitt arbete använder han ritprogrammet Indesign från Adobe.
– Jag är van vid att rita och det var självklart att även rita huset i det program jag använder till vardags.

Fasad mot sydöst.
Till fördelarna med Indesign hör möjligheten att jobba med många sidor och lager, t ex kan du göra planlösningen i ett ark, sedan duplicera det arket när du ska göra VA-ritningen.
– Men Indesign tycker jag också är bra för att det är enklare än ett CAD-program och du grottar inte ner dig för mycket i detaljer, menar Niklas.
Utgångspunkterna när de skapade sitt hus var:
- Det skulle vara ett gästhus och ett boningshus
- Tomtens egenskaper
- Huset skulle kännas semester!
- Standardmått för god ekonomi
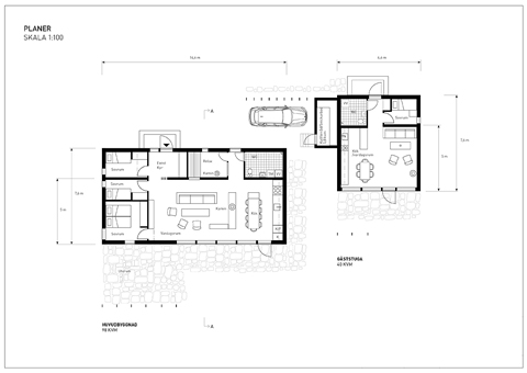
Elin och Niklas bestämde redan från början att de skulle bygga två huskroppar på sammanlagt ca 150 kvm. De skulle börja med en mindre huskropp på 40 kvm och denna skulle ha två funktioner; dels skulle den fungera som ett hus där de ganska snabbt skulle kunna flytta in och vara med familjen under tak.

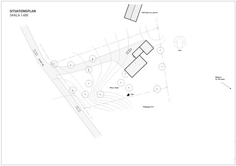
Situationsplanen.
– Här kan vi bo under tiden vi bygger den större huskroppen lite senare. Det gör det också lättare för oss att snabbt kunna utnyttja tomten, säger Niklas.
Dessutom skulle det första mindre huset få fungera som ett utbildningshus eftersom båda huskropparna bygger på samma utformning och konstruktionsprinciper.
– Därför får det mindre huset också tjäna lite som ett övningshus innan vi bygger det större huset, säger Niklas.
Tomten ligger inte i detaljplanerat område, så det fanns ingen detaljplan som satte begränsningar.
Däremot fick tomtens egenskaper styra husets storlek och utformning.
– Tomten påverkade husets utformning i allra högsta grad, säger Niklas.

Planlösningen.
Tomten är 2600 kvm stor och består till stor del av berg. Där finns en ganska liten platå där det passade att lägga huset. Niklas och Elin tyckte nästan att det var skönt att tomten bestämde var huset skulle placeras, så slapp de fundera över det.
Tomtens förutsättningar styrde också placeringen av kök och badrum. För att slippa spränga placerade de kök och badrum där avloppet kunde förläggas utan att man behövde spränga.
– Det är detta som är fördelen med att bygga själv. Man kan anpassa huset efter tomtens förutsättningar under byggets gång, det hade varit mycket svårare om vi hade byggt ett kataloghus från en hustillverkare, säger Niklas.
Huset skulle ha semesterkänsla, var nästa stora sak som fick styra husets utformning. Det gjorde att planlösningen formades lite annorlunda än om man de hade ritat ett hus för permanentboende. Huset har fått en stor öppen yta som rymmer kök och vardagsrum/lounge. De har också prioriterat utrymme för en bastu med relax. De har valt minimala ytor för sovrummen, där man bara ska sova.
– Det är sängarnas mått som har fått bestämma storleken på rummen, berättar Niklas.
Och det var så Niklas gick tillväga hela tiden när de ritade och utformade rummen. Han utgick från de möbler han skulle ha i varje utrymme. Först gjorde han alla möbler i rätt storlek, sedan började han möblera och rita efter det. Då visste han direkt hur lång en vägg skulle vara.
– Det finns en hel del gratis vektorbilder på nätet som jag ibland utgick ifrån, berättar Niklas.
– Om jag ville ha en viss fåtölj så gick jag till en möbelsajt och kollade måtten. Sedan gjorde jag en fyrkant som var så stor och började laborera därifrån.
I övrigt var Elin och Niklas inspirerade av den danska sommarhustraditionen, men också Case Study-husen i Kalifornien från 1950-talet, som bland annat karaktäriseras av minimalistisk arkitektur, öppna planlösningar och där kontakten mellan ute och inne suddas ut. Dessutom hade många av Case Study-husen maximalt med fönster mot Stilla Havet.

The Stahl House, Case Study House #22. Foto: Wikipedia.
Elin och Niklas placerade på liknande sätt så många fönster de kunde mot Mälaren, vilket är i söderläge, och minimalt med fönster mot norr. Då drog konstruktionen dessutom maximal nytta av solvärme, vilket bidrar till lägre uppvärmningskostnader. För hela tiden tänker de också kostnadseffektivt när de ritar huset.
– Vi har så långt som möjligt velat använda standardmått och göra det bästa av dem istället för att behöva specialbeställa. Tanken var att bara använda standardvirke och anpassa spännvidderna efter det, säger Niklas.
Tidsmässigt tog det uppskattningsvis 50 timmar att rita huset.
– Istället för att titta på tv på kvällarna efter att vi lagt barnen, satt vi och ritade och planerade tillsammans, några timmar i veckan, berättar Elin.
Huset är ritat och klart. I nästa avsnitt berättar vi mer om konstruktionen i Elin och Niklas semesterhus.
Läs alla artiklar om Elin och Niklas bygge:
Del 1: Elin och Niklas ritar och bygger själva
Del 2: Tomten spelade stor roll vid husritning
Del 3: Så konstruerar de sitt trähus
Kommentarer
32