Test Myresjöhus visningshus – styrkor, svagheter och detta ska du vara vaksam på
I Rydebäck mellan Landskrona och Helsingborg besökte vår testfamilj Myresjöhus visningshus Morgondagg. Foto: Privat
Byggahus.se testar hustillverkarnas visningshus, ett efter ett. Nu har turen kommit till Myresjöhus. Vi besökte deras visningshus av husmodellen Morgondagg, ett modernt och lyxigt 2-planshus som skiljer sig markant från tidigare testade husmodellerna Spira 152 från Hjältevadshus och Älvsbyhus Linnéa, som istället är inriktade på att vara billiga.
Så utförde vi testet
Våra utsända testare är en helt vanlig familj som utgick från tipsen vi har i artikeln Besöka hustillverkarnas visningshus - checklista när de utvärderade huset. De besökte huset, antecknade och fotograferade alla intressanta detaljer och observationer, vad de upplevde var husets styrkor och svagheter
Här återger vi denna familjs personliga upplevelser av huset. Alla är de uppvuxnaäxta i villa och bor idag i ett äldre 1,5-planshus sedan 5 år tillbaka.
Artikeln är sedan skriven av redaktionen i samarbete med familjen. Vi har försökt inrikta oss på hårda fakta och att fotografera för att illustrera vad vi menar så långt det är möjligt. Men vissa upplevelser är självfallet subjektiva.
Om du som konsument har varit på ett visningshus som du sedan bestämmer dig för att bygga, så är det rimligt att du kan förvänta dig den finish på ditt hus som fanns i visningshuset, om inte annat tydligt anges i era kontraktshandlingar.
Snabbfakta om Morgondagg och Myresjöhus arbetssätt
Myresjöhus tillverkar husets väggelement i fabrik som de sedan levererar till tomten där en platta på mark står och väntar. Därefter bygger de på taket, gör alla installationer och inreder huset på plats.
Myresjöhus har olika huskollektioner, där vissa är inriktade på lågt pris, medan huskollektionen ”Free your style” som Morgondagg ingår i, består av en samling husmodeller som har högre kvalitet på ytskikt och en mer avancerad design av olika utföranden.
Husmodell: 2-planshus
Antal sovrum: 4
Boarea: 198 m2
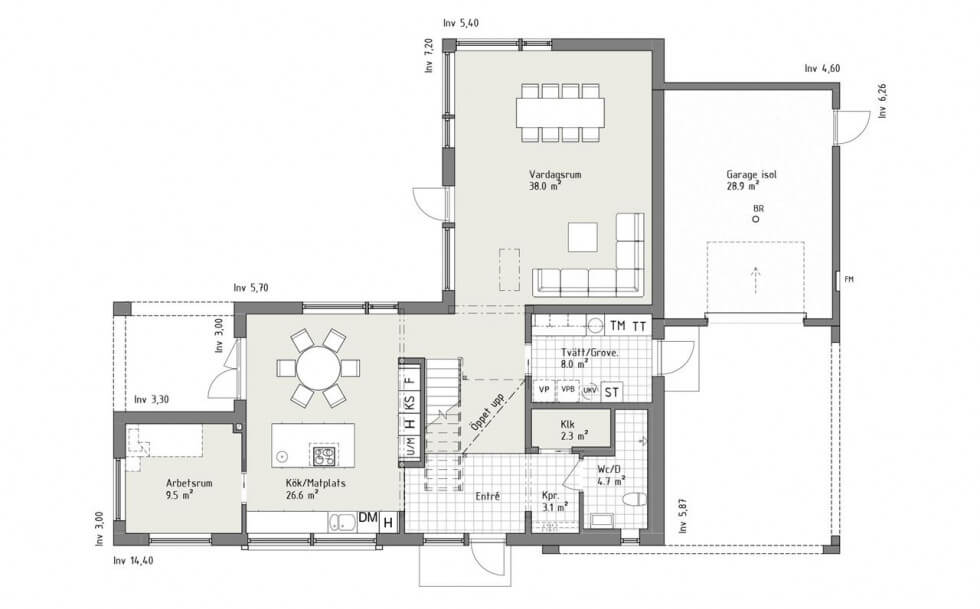
Planlösning: Öppen mellan kök, matplats och vardagsrum samt allrum på övre plan direkt vid trappuppgång
Pris: 6 miljoner kr exkl tomt och anslutningsavgifter i detta utförande
Går inte ut med prislista och tillvalen höljda i dunkel
Myresjöhus uppger inte priser på sina hus på hemsidan, som tidigare testade hustillverkarna Älvsbyhus och Hjältevadshus gör. Det är tydligt att de inte konkurrerar med priset vid husmodellen Morgondagg, utan försöker locka köpare med ett hus man inte kan motstå. I visningshuset vi testat finns många tillval som inte ingår i grundutförandet.
När vi frågade säljaren vad Morgondagg kostar blev svaret ”25-30 000 kr per kvadratmeter”. Och vad kostar Morgondagg i utförande som i visningshuset, blev då vår följdfråga. ”Ungefär 30 000 kr per kvm”, lät han då antyda. Här finns alltså extra allt.
När vi ville ha mer information frågade säljaren var vi skulle bygga någonstans. När han insåg att vi inte hade någon tomt ännu och att vi inte tillhörde hans kontor, så hänvisade han oss till Malmökontoret för vidare frågor om vad tillval kostade och dylikt.
De har dock en tillvalslista och det vi kunde lista ut var tillval i visningshuset är:
- Bänkskiva kök
- Badkar, annan takdusch, handdukstorkar, spegel, duschvägg i badrum samt dusch i badrum/dusch/wc
- Fönsterbrädor i marmor
- Annan trappa än standard
- Innerdörr annan än standard
- Kamin
- Entrétak
- Plåttak
- Ytterdörr annan än standard
- Plåttak
- Elektroniskt dörrlås
Om vi utgår från säljarens uppgift att husets pris börjar på 25 000 kr per kvadratmeter och att det här huset kostar 30 000 kr per kvadratmeter, så fanns här tillval värda 990 000 kr.
Utvärdering av husets utsida
Trädgården var anlagd med gräsmatta och en nyplanterad häck på barrot. Det förhöjde intrycket av huset.
Bland våra testare tyckte en av de vuxna som gillar modern stil att huset var väldigt snyggt, rent subjektivt, medan den andra som dras till mer romantiska äldre husstilar upplevde huset som mörkt och ”maskulint”.
Men de hittade inget att klaga på vad gäller detaljfinish av husets exteriör. Allt såg snyggt, prydligt och välgjort ut.
Träpanelen är målad i en mörkt brun kulör, med vissa detaljer orange/rostbruna.
Väggarna är isolerade med 450 mm mineralull.

De svarta plåtarbetena smälter in bra i den mörkbruna fasaden.
På den stora huskroppen är taket låglutande, den lägre delen har pulpettak. Taket är belagt med svart plåt.
På baksidan hade man anlagt ett rejält trädäck.
Utvärdering av husets insida
Den av våra testare som hade tyckt att husets utsida kändes för maskulin och hård, tänkte å andra sidan ”wow”” när hon kom in i huset. Det märks att detta är ett hus som ligger i den övre prisklassen.
– Husets insida badar i ljus, det känns rymligt och lätt, väldigt effektfullt när man kommer in i huset, säger testaren.
Barnen älskade det också och rusade entusiastiskt in i huset.
Det är öppet mellan våningsplanen och det finns rikligt med fönster både på övre och nedre plan, så ljuset flödar uppifrån och ner. Trappans placering och utförande med glasräcke, bidrar också till den känslan. Det gör att insidan blir väldigt ljus och känns exklusiv.
Ett sovrum/arbetsrum ligger på första plan i anslutning till köket.
– Detta kanske inte är optimal placering för varken sovrum eller kontor, det kändes inte naturligt, säger våra testare.
Våra testare tyckte det kändes som att man lätt kan bli störd om man är i det här rummet.
Det är tydligt att det är hög kvalitet på parkettgolvet, som är snyggt lagt.
Tvättstugan är snygg med tvättmaskin och torktumlare på plats. Här kan våra testare se sig själva stå med ett glas vin när man pysslar med tvätten. ;)
Köksinredning och snickerier
Våra testare tyckte att köket var ett stort plus - känns modernt, snyggt och exklusivt och med en rejäl köksö.
Även blandaren som satt i köket var en annan än standard.
Matplatsen ligger i direkt anslutning till köket.
Listerna i huset är gerade, snyggt och prydligt. Det enda som testarna hade önskat mer av vad gäller finish på detaljerna är de synliga spikskallarna. Dessa får man spackla och måla själv i efterhand för att få ordning på.
Badrum
På nedre plan finns ett wc med dusch. Här satt en handdukstork, lyxigare dusch, duschvägg annan än standard och blandare som samtliga var tillval.

På övre plan finns ett badrum med badkar, där badkaret är ett tillval, liksom handdukstorken, de lyxigare blandarna och en duschvägg och med takdusch andra än standardutförande.
Våra testare tyckte att i synnerhet badrummet på övervåningen kändes exklusivt och hade en skön “hemmaspa-känsla”.
– I vår familj älskar alla att bada så ett stort härligt badkar som detta blir absolut ett starkt plus!
Testarna tyckte det var snyggt med kakel i naturtoner som ger ett lugnt och harmoniskt intryck och förstärker känslan av att detta är en plats för återhämtning.
Värmesystem och ventilation
Huset är utrustat med frånluftsvärmepumpen NIBE S735. Det ventileras alltså med mekanisk frånluftsventilation med återvinning av värmen i frånluften.
Energiförbrukningen uppges till 7300 kWh/år.
På bottenplan ligger golvvärme från Uponor. På övervåningen sitter radiatorer.
I standardutförande har husmodellen Morgondagg en mediacentral från Alacadon som möjliggör vissa smarta funktioner. Vår testpanel såg dock ej var denna fanns under visningen.
Sammanfattning med för och nackdelar
Myresjöhus Morgondagg är ett stort och rymligt modernt hus, utfört med påkostade material och lösningar. Husets design känns riktigt genomarbetad så att den ger en känsla av rymd, volym, lätthet och lyx.
Men prislappen blir därefter, vi hamnar på 30 000 kr per kvm, totalt 6 miljoner kronor för huset exklusive tomt och anslutningsavgifter. Det får man såklart fråga sig själv om man vill betala eller har råd med, eller ens får lån till.
Fördelar
- Snygg finish
- Kvalitetskänsla
- Ljust och rymligt, känns lätt
- Hela familjen tyckte om det
- Köket var en av de bästa detaljerna
- Öppet mellan våningsplanen
- Lika trevligt på båda våningsplanen, båda testarna hade detaljer vi gillade
- Flera utgångar till trädgården
Nackdelar
- Svårt att få grepp om vad som var tillval av det man gillade
- Svävande svar från säljaren
- Känns som att det kan bli varmt med så mycket fönster?
- Ett sovrum/arbetsrum låg på första plan i anslutning till köket, risk att blir störd här
Kommentarer
18