Vårgårdahus Villa Emyhill
Villa Emyhill från Vårgårdahus, mest sålda husmodellen förra året. Grafik: Vårgårdahus
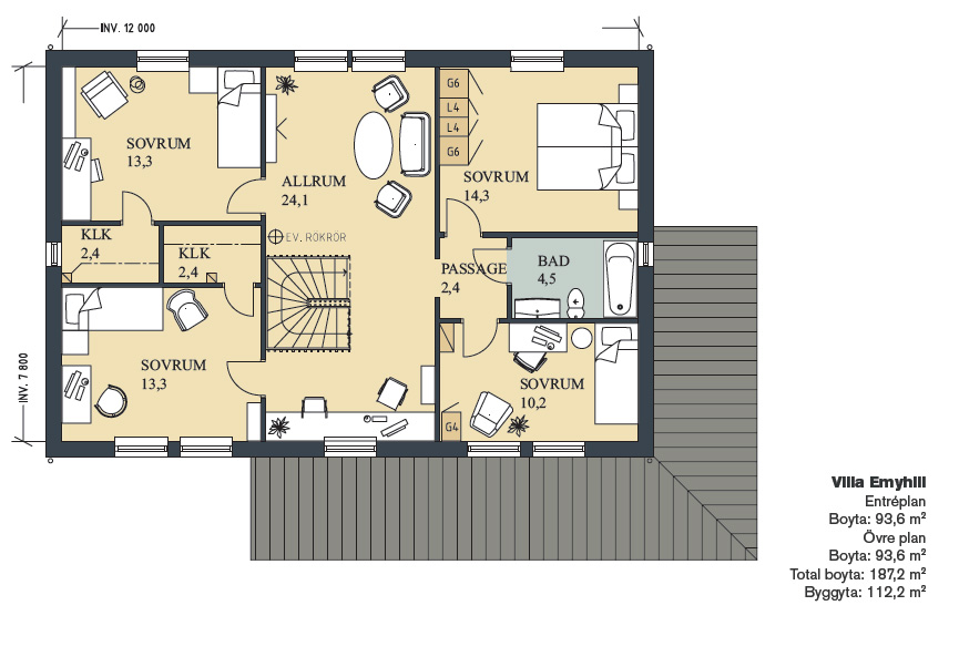
Fakta om Villa Emyhill
- 2-planshus
- boyta 187,2 kvm
- 4 sovrum
Pris: Från 2 365 000 kr för en byggsats
Vårgårdahus sätt att bygga
Vårgårdahus bygger sina ytterväggar i fabrik och levererar dem till byggplatsen där grunden väntar. Huset byggs ihop med tätt tak på 1-2 dagar.
– Ett mindre enplanshus sätts upp och blir tätt på en dag, större hus kräver två dagar, berättar Ulrica Bodin på VårgårdaHus.
Byggnadsingenjör Charlotte Andersson, expert på Byggahus.se, menar att den snabba byggtiden är en stor fördel med prefabricerade hus.
– Fördelar mot lösvirke är att man kan få tätt hus relativt snabbt. Detta innebär att man inte har konstruktionen öppen så länge för eventuellt regn, som när man bygger med lösvirke. Nackdelen är att om man får in vatten i ett ytterväggselement medan huset byggs upp så riskerar det att bli inkapslat i konstruktionen. Därför måste man vid misstanke om inläckage av regnvatten vara noga med fuktmätningar och se till att torka ut ordentligt innan man stänger igen konstruktionen, säger Charlotte Andersson.
– Fördelen med att ”bara” bygga väggelementen i fabrik gentemot de som gör hela moduler moduler som t ex Hjältevadshus, Älvsbyhus och Smålandsvillan är att man kan vara friare i sitt val av planlösning eftersom det inte finns några transporttekniska svårigheter, vilket begränsar modulbyggen.
Flexibiliteten vad gäller planlösning är stor i Vårgårdahus husmodell Emyhill, det finns stora möjligheter att göra ändringar utifrån standard.
– Valfrihet med planlösning betyder att kunden själv kan bestämma hur planlösningen i huset ska bli, dvs placeringen på rum, utformningen av kök, flytta innerväggar, lägga till ryggåstak, ändra fönsterplacering etc, berättar Ulrica Bodin.

Entréplan i Villa Emyhill från Vårgårdahus.
Ytterväggarnas konstruktion
Ytterväggen totala tjocklek är 330 mm varav 260 mm är isolering. Isoleringen är uppbyggd i tre skikt varav den inre är en installationszon. Ytterst sitter grundmålad panel sedan luftspalt, vindpapp, 45 mm träregel / 45 mineralull, 170 mm träregelstomme / 170 mm mineralull, plastfolie, 45 mm träregel / 45 mm mineralull och till sist gipsskiva. Väggens U-värde 0,16 W/m2K.
Charlotte Andersson menar att det här är en energimässigt bra konstruktion. Installationsskiktet är bra eftersom det minimerar behovet att ta hål i ångspärren, vilket minskar risken för framtida fuktskador och värmeläckage. Ännu bättre hade det varit om det satt en spånskiva bakom gipsen, för det är bra att ha om man vill kunna sätta upp lite tyngre saker på ett enkelt sätt på väggen. Den tyngre konstruktionen skulle också förbättra ljuddämpningen mellan rummen något, säger Charlotte Andersson.
– Spånskiva bakom gips går att få som tillval, säger Ulrica Bodin.

Övervåningen i Villa Emyhill.
Yttertak, fönster och grund i Villa Emyhill
Yttertaket byggs med prefabricerade takstolar, råspont, papp och läkt. Det isoleras med 500 mm lösullsisolering. Till det får kunden välja på grå, tegelröda, röda eller svarta betongpannor från Benders. Vita eller svarta plåtarbeten ingår. Andra färger på plåt finns som tillval.
Charlotte Andersson menar att kunden bör kontrollera så att taket är inspekterabart.
– Alla yttertak med råspont bör kunna inspekteras för att man skall kunna upptäcka tidiga spår av fuktproblem. Om man har öppet upp till nock kan den inspekterbarheten bli obefintlig och då gäller det att konstruktionen är uppbyggd på ett sådant sätt att fuktproblematiken minimeras. Bäst är om man har någon form av vind där man åtminstone kan sticka upp huvudet och titta till råsponten, säger Charlotte.
– Lösull på vindar används alltmer på grund av sin goda förmåga att sluta tätt intill takstolar, installationer och andra detaljer som förekommer på vindar, vilket innebär mindre värmeläckage. Det är svårare att kapa till isoleringsskivor lika exakt.
Även de aluminiumbeklädda träfönstren monteras i fabrik, vita 3-glasfönster lågemission med argon från SP-Fönster. Fönsterbrädan är av marmor, men går att byta ut till mdf eller ek.
– All fler hushåll vill ha ett fönster som är underhållsfritt, iallafall utvändigt. Aluminiumklädda träfönster kombinerar den varma träkänslan inomhus med träfönstrets goda isoleringsförmåga med aluminiumfönstrens tålighet mot väder och vind. Argonfyllda fönster är väldigt energisnåla, vilket är bra ur uppvärmningssynpunkt. Problemen man kan ha med moderna, energisnåla fönster är dock att man sommartid kan få utvändig kondens på morgonen vilket begränsar utsikten, säger Charlotte.
Grunden är en platta på mark med 300 mm cellplastisolering och ingjuten golvvärme. Villa Emyhill har vattenburen golvvärme på både bottenvåning och övervåning.

Ett uppbyggt Villa Emyhill sett från baksidan. Foto: Vårgårdahus
Uppvärmning och energiförbrukning i Villa Emyhill
Huset värms upp med frånluftsvärmepumpen Nibe F750. Tilluften får huset via springventiler i fönsterkarmen. Andra uppvärmningssätt finns som tillval.
Villa Emyhill är beräknat att förbruka 36 kWh/kvm/år om huset ligger i Stockholm.
– Metoden med frånluftsvärmeväxlare och friskluft via ventiler ut i det fria är den vanligast förekommande lösningen på villor idag. Nackdelen kan vara att man vintertid kan uppleva friskluften som ett kallt drag, även om inomhustemperaturen är normal. Man kan inte stänga ventilerna i ett nybyggt hus eftersom det har ett konstant utsug av luft. Om man stänger ventilerna så kommer ett sådant undertryck att bildas så att luft kommer att läcka in på ställen där det inte var tänkt. Då kan man få problem med lukt, fukt och stoftpartiklar, säger Charlotte.
Innerväggar och inredning
Inne i huset sitter isolerade innerväggar byggda av 13 mm gipsskiva och 45 mm isolering. Vill du ha spånskiva bakom gipsen i innerväggen så finns det som tillval till ett pris av ca 21 000 kr. Alla väggar målas vita som standard, men det går att välja på ett antal tapeter för 130 kr per rulle.
På golvet i torra utrymmen ligger 13 mm ekparkett från Tarkett som standard. Det ligger klinkers i en del av hallen, i badrum och tvättstuga.
Kök och badrum i Villa Emyhill
Köket i Villa Emyhill kommer från Vedum. Standardluckan är Karin, men vad kostar det att byta till annan lucka?
– Det går inte att ange ett pris för det för det beror helt på vilken typ av lucka som avses. Det är heller inte intressant då man måste se hela kökspriset i sin helhet med antal lådor, skåp, luckdämpningar, högskåp och så vidare, säger Ulrica Bodin på Vårgårdahus.
Bänkskivan är en grafitgrå laminatskiva som standard och i den byggs en spishäll av glaskeramik in. Även varmluftsugnen och mikrovågsugnen är inbyggda och följer med som standard. Alla vitvaror är från Siemens. Den rostfria fläkten kommer från Fjäråskupan.
I badrummet ingår som standard kakel och klinker 15x15 eller 20x20, rak sättning. Annan sättning eller annat kakel går att få som tillval. Blandare och porslin är från Gustavsberg och inredningen från Vedum. Vägghängd toalettstol och handdukstork går att få som tillval. På övervåningen finns ett badrum med badkar, ett enkelt som standard. Som tillval finns olika typer av fristående badkar och massagebadkar.
Är Vårgårdahus Emyhill prisvärt?
Vi bad Charlotte Andersson kort uttala sig om hon tycker att Villa Emyhill från Vårgårdahus är prisvärt.
– Det här är ett hus med hög standard. Konstruktionsmässigt liknar det i många avseenden konkurrenternas. Vi har ett plus i kanten för vattenburen golvvärme på övervåningen, här har de flesta företag i denna prisklass valt radiatorer.
– Vattenburen golvvärme på övervåningen innebär dock en ökad fuktrisk eftersom mellanbjälklaget är av trä, det gäller att man skruvar och spikar i golvet med urskiljning, säger Charlotte.
Även de aluminiumklädda och energieffektiva träfönstren anser Charlotte är ett plus i kanten som du inte alltid får hos konkurrenterna. Det är fönster som kostar ca 20 % mer än fönster utan aluminium.
Det som däremot inte ingår i ”totalentreprenaden”, men som kan ingå hos konkurrenterna, är markarbetena och spånskiva bakom gipsskiva i väggarna. Det ska man hålla i åtanke när man jämför priser.
Kommentarer
9