Trivselhus B:004
Trivselhus B:004. Foto: Trivselhus
Fakta om Trivselhus B:004
1,5 plan
Boarea 169 kvm
4 sovrum
Energi Malmö: 32 kWh/kvm år
Energi Stockholm: 36 kWh/kvm år
Pris: 3 127 000 kr (drygt 18 500 per kvm) i grundutförande utan tillval, på totalentreprenad, exklusive tomt och byggherrekostnader.

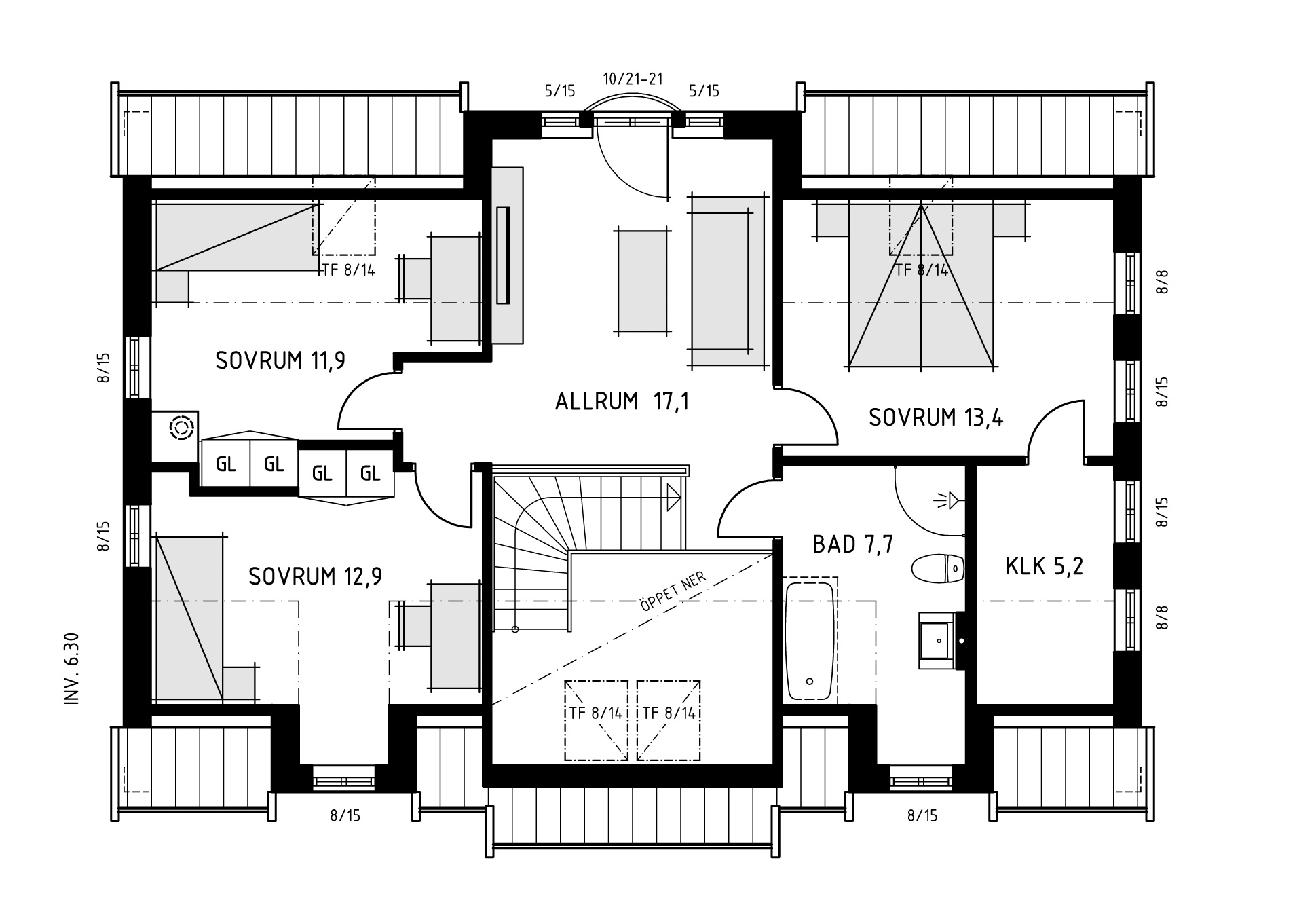
Konstruktion Trivselhus B:004
Taket byggs med råspont, papp och förtillverkade råspontluckor.
I ytterväggen finns en installationszon där diffusionsspärren är inflyttad en bit för att minimera risken för skada. Grunden har 300 mm isolering under betongplattan.
Det går att välja mellan totalentreprenad och delad entreprenad. Alla hus som byggs på totalentreprenad provtrycks.
Mellanbjälklaget är isolerat. Även mellanväggarna är isolerade som standard med dubbelt skivmaterial med 13 mm gipsskivor, 12 mm spånskivor och 70 mm mineralull.
Ljudet dämpas i huset dels genom installationszonen och dubbla skivor i ytterväggen, innerväggar isolerade med dubbla skivor, isolerat mellanbjälklag, innerdörrar med tätningslist, att innerdörrrna är massiva, tvättstugan är tätad med fogmassa i vägg och takskarvar.

Som standard har fönstren aluminiumklädd utsida (Elite complete alu) med ett U-värde på 1,0. Vissa fönster är öppningsbara, andra fasta. Insynsskydddande glas vid bad/dusch/wc. Det finns 11 fönsterkulörer att välja bland på utsidan, insidan är målad i vit 0502Y. Fönsterbänkar av trä som standard.
Standard värmesystem är berg/jord/sjö-värme med IVT Greenline HE C. Vattenburen golvvärme på plan 1 som standard, radiatorer på övre plan. Golvvärme går att få på plan 2 som tillval.
Centraldammsugare med 11 meter slang är standard.
Kök från Ballinglöv med 6 olika målade luckor att välja bland, bänkskivor av laminat och diskbänk är standard. Fläkt från Fjäråskupan och Siemens vita eller rostfria vitvaror, induktionshäll och mikro. Andra tillval kan göras i forum av vitvaror från Miele med mera. Badrumsinredning från Miller. WC och handfat från Ifö. Vägghängd toa går att få som tillval, liksom badkar. Ifö duschväggar standard, INR som tillval. Blandare Hans Grohe. Handdukstork är tillval.
Sammanfattning: Hög standard men många tillval
Sammanfattningsvis kan man säga att Trivselhus B:004 har en genomgående hög standard, både konstruktionsmässigt och baserat på det faktum att det går att det byggs på totalentreprenad.
– Det är en hög standard jämfört med många andra, men det avspeglar sig också till viss del på priset. Totalentreprenad är en dyrare entreprenadform som ökar dina chanser att få ett hus utan strul och byggfel. Det är inte så många som erbjuder totalentreprenad idag, säger Charlotte Andersson.
Det finns många tjusiga skisser på Trivselhus olika husmodeller. Det som ger det tilltalande estetiska uttrycket är bland annat spröjsade fönster, dekorationer i taknocken och en skorsten – saker som inte är standard utan tillval. Det finns risk att huset blir bra mycket dyrare än det uppgivna standardpriset 3 127 000 kr.
Ovanstående information gick att hämta ur ett informationsblad om konstruktionen som man kan få om man ber om det. Charlotte Andersson hade ytterligare frågor om Trivselhus arbetssätt och konstruktion, som Trivselhus har besvarat nedan:
1. Ingår uppskattning av alla byggherrekostnader i kalkylen som lämnas till kund? (tillstånd för bergvärme, bygglov, kostnad för KA och besiktning)?
Svar: Ja
2. Hur tacklar ni avskaffandet av byggfelsförsäkringen? Kredit på priset, andra besiktningsrutiner, andra färdigställandesäkerheter och hur kommer detta att påverka priset?
Svar: Enligt de uppgifter vi har idag så kommer den nya försäkringen bestå av två delar: Färdigställande försäkring och Nybyggnadsförsäkring. Färdigställande försäkringen kommer att vara obligatorisk och Nybyggnadsförsäkringen frivillig. När Trivselhus säljer en totalentreprenad ingår båda försäkringarna.
3. Är säljarna anställda på Trivselhus eller är de egna företagare?
Svar: Majoriteten av säljare är anställda i Trivselhus (75%), men vi även några agenter som varit med oss länge. Vi har ett arbetsätt som inte gör någon skillnad på agent eller säljare, då vi styr verksamheten som om alla vore anställda.
4. Hur ser ser säljutbildningen ut för era säljare, vad görs för att ni ska säkerställa att alla husköpare i hela landet får samma information i samband med köpet?
Svar: Vi jobbar hela tiden med att utveckla vår försäljningsprocess som syftar till att uppnå nöjd kund. Ärlighet och transparens är de viktigaste ledorden vi har. Alla våra säljare genomgår TMF´s utbildning Auktoriserad trähussäljare. Vi har även annan personal som får samma utbildning. Vi lägger också stor kraft på intern utbildning vad det gäller hantering av bygglovsprocessen, lagar och byggregler samt att vi utvecklar hela vårt arbetsflöde med ett stort kundfokus. Alla våra kunder får också senast vid kontrakt en s k ”Ordning & Reda pärm” där vi beskriver processen övergripande och i detalj.
5. Till vilken grad är huset fabriksbyggt, vad är det ni bygger färdigt på plats?
Svar: Ytterväggar i planelement med fabriksmonterade snickerier. Väljer man panelfasad så är den monterad i fabrik och insida yttervägg är färdig till insida gipsskiva. Bärande innerväggar levereras i planelement och takstolarna är klara. I övrigt levereras många av de resterande byggdelar färdigkapade så att montaget på byggplats går snabbt och smidigt.
6. Jag antar att det är alla hus med totalentreprenad som provtrycks? Erbjuder ni provtryckning för andra entreprenadformer?
Svar: Idag ja men från och med augusti nyförsäljning Nej när det gäller materialleveranser/delad entreprenad.
7. Vilken uppvärmningsform om bergvärme inte är möjlig på tomten?
Svar: Samma typ av värmepump som till bergvärme kan använda en rad andra energikällor såsom jordvärme, grundvattenvärme och sjövärme mm. Finns det inte möjligheter att jobba med denna typ av uppvärmning så kan man i de flesta fall använda sig av frånluftsvärmepump. Fjärrvärme kan också vara ett alternativ med det är inte så ofta det finns tillgång till fjärrvärme i området.
8. Vilken typ av skjutdörrar invändigt ingår? Fungerar de ljuddämpande om biblioteket vill användas till sovrum?
Svar: Liksom alla husets innerdörrar är dessa skjutdörrar är massiva och fungerar ljuddämpande, dock är konstruktionen sådan att dessa dörrar tar bort ljudet något mindre än vanliga innerdörrar. Dörrbladen är lika övriga innerdörrar och kan därmed erhållas i olika utseende redan i standardutförandet.
9. Var placeras ljusbrytaren i biblioteket eftersom dessa förmodligen inte går att placera direkt invid dörröppningen där skjutdörrarna tar utrymmet?
Svar: Det vanligaste är att man placerar strömbrytaren en bit bort från dörröppningen vid parskjutdörrar.
10. Varför ingår ingen dörr till kapprummet?
Svar: Här har husdesignern valt att inte rita någon dörr för att man på ett enkelt sätt ska komma åt utrymmet med sina ytterkläder. En smaksak. Självklart kan man välja till en dörr.
11. Köket har väldigt lite plats för överskåp, hur har man resonerat kring köksförvaringen? Ingår tex större, utdragbara lådor för porslinsförvaring i underskåpen i standard?
Svar: Köket rymmer mer förvaring än vad man kan tro. Som standard ingår dubbla sektioner draglådor, fler kan väljas till vid personligt besök hos köksbutiken. Tänk på att det även finns skåp i barköksdelen samt ett utrymme, kfv (köksförvaring) som sväljer mycket saker. Ett kök utan fönster skapar ingen skön arbetsplats.
12. Om man vill ha torkskåp istället för torktumlare eller torktumlare och tvättmaskin på samma nivå, går det att få plats med detta i tvättutrymmet?
Svar: Vi har inga problem att rita om planlösningen och få till de önskemål som kan finnas.
13. Centraldammsugare är standard, hur många uttag och hur lång slang finns med i standardutförandet?
Svar: Antal uttag anpassas efter husets utformning. Slangen är som standard 11 meter.
14. Ingår barköksdelen som är inritad på baksidan om skafferiet?
Svar: Ja.
15. Är skafferiet uteluftsventilerat och om ja, är dörren dit isolerad eftersom temperaturskillnaden vintertid kan upplevas som drag?
Svar: Just detta utrymmet är inte uteluftsventilerat. Skafferi kan annars om det ligger intill en yttervägg planeras med klimatdörr, utan golvvärme och med en friskluftsventil som tar luft utifrån.
16. Huset är redovisat med skorsten på fasadritningen, men endast markerat plats för eldstad invändigt. Ingår skorstenen även om man inte tilläggsbeställer eldstaden? Om nej, varför visar man inte samma alternativ på båda ritningarna (med eller utan eldstad)?
Svar: Skorsten ingår inte om man inte köper någon eldstad, vi visar skorstenen för att man ska förstå hur det kan se ut exteriört.
17. Hur ser takhöjden vid badkaret på ovanvåningen ut? Det kan ibland bli lite trångt ut mot ytterväggen.
Svar: Eftersom det även finns separat duschplats krävs inte så hög rumshöjd vid badkaret. Det fungerar fint som det är ritat.
18. Var är det fullhöjd på ovanvåningen? Detta brukar ritas in på planritningen så att man kan få ett hum om hur det går att möblera ovanvåningen. Det är bra att redovisa med en linje var brytningen till plant tak går.
Svar: Här är det tyvärr inte med av någon anledning. En mer detaljerad ritning kan tillhandahållas av våra säljare.
19. Är hela kostnaden för bergvärmen inräknad i priset (borrning, provtryckning, etc)?
Svar: I den första kalkylen som vi lämnar till kunden ingår en kostnad för bergsborrning för normalberg med ett borrdjup på 140 lpm och 6 lpm foderrör. Innan entreprenaden utförs tar vi fram en kostnad utifrån den aktuella huset och tomtens förutsättningar. När vi har gjort den första bygglovsritningen upprättar vi en preliminär energibehovsberäkning, efter bygglov och slutbeställning av huset upprättar vi en definitiv energibehovsberäkning som ligger till grund för den slutliga entreprenaden. Provtryckning ingår alltid vid en totalentreprenad. Se pkt 6.
20. Hur ser klätterskyddet ut vid balkongräcken med liggande ribbor?
Svar: Det är plexiglas som ingår.
21. Är snedtaksisoleringen skivisolering eller lösull?
Svar: Lösullsisolering i snedtak.
22. Är grundläggningen radontät i standardutförandet?
Svar: Det finns olika nivåer på radontäthet och vad som ställs för krav på desamma, i utgångsläge projekteras för normalradon och tätas därefter.
23. Mellanbjälklaget är ljudisolerad mot luftljud, är det också gjort konstruktionstekniska lösningar för att minska stomljud? Isåfall vilka?
Svar: Inga speciella konstruktionstekniska lösningar görs för att minska stomljudet för en villa.
24. Vilket c/c har mellanbjälklaget på bjälkarna vid badrumsdelen? Om c/c är lika övriga ovanvåningen vad gör ni för att minska rörelserna i golvet där det läggs klinker så att inte fogar spricker?
Svar: Dimensioneras från fall till fall men oftast samma c/c som i resterande bjälklaget. System med avjämningsmassa som stabiliserar bjälklaget för att förhindra sprickbildning.
25. Om innerdörrarna är ljudtätade med tätningslist, hur gör ni för att klara ventilationen med överluft mellan rummen? (Finns där glipor som släpper igenom luft så kommer även ljud igenom.)
Svar: Luftspalter möjliggör ventilation mellan rummen. Tätningslisterna i innerdörrarna tar ändå bort en hel del av luftljudet men störst effekt har tätningslisterna mot slagljudet när man stänger dörren.
26. Målas panelen (med slutkulören) innan montaget för att minska risken för att det blir glipor i färgen när träet torkar?
Svar: Panelen grundmålas som standard i vit kulör, men vi har även möjlighet att grundmåla svart eller rött för att minska effekten vid färdigmålning i dessa mörkare kulörer.
27. Går det att få skorstenspipan i samma kulör som övrig takplåt? (går oftast bara att få i svart) Vill få svar på både invändig som utvändig kulör.
Svar: Utvändigt enbart svart, invändigt svart, grå och vit.
28. Hur lång garanti för kulörbeständighet på utvändiga snickerier lämnas?
Svar: Vi hänvisar till Elitfönsters och Snickar-Pers garantiåtaganden.
29. Går det att få överskåp vid köksfläkten?
Svar: Köket detaljplaneras tillsammans med en köksbutiken och som tillval kan därför stora förändringar åstadkommas.
30. Hur monteras hällskyddet vid spisen? (kläms det enkelt fast eller måste det skruvas in i skivan.)
Svar: Som standard ingår inbyggnadshäll och hällskyddet till den lösningen behöver skruvas fast i bänkskivan.
31. Finns det en kant på spishällen som förhindrar att vatten som kokar över inte rinner direkt över på bänkskivan eller golvet?
Svar: Nej, designen innehåller ingen kant, men induktionstekniken som ingår som standard gör det enklare att kontrollera kokpunkter och därmed undvika överkokning.
32. Är tvättbänkskåpet låsbart så att det går att ha som kemikalieskåp?
Svar: Tvättbänksskåpet har barnsäkerhetslås så det ska var ok som kemikalieskåp.