Hoppa till huvudinnehåll
Byggahus.se
Start
Bibliotek
ForumBilderShop
Sök på Byggahus.se
Bli medlem Logga in
Start
Bibliotek
ForumBilderShop
Start
Bibliotek
Meny
Bibliotek
Altan & Uteplats
Badrum
Bygga nytt hus
Ekonomi & Juridik
Grund & Markarbete
Kök
Renovera
Tester
Trädgård & Utemiljö
Verktyg
VVS & Inomhusklimat
Forum
Meny
Forum
Index
Senaste
Obesvarat
Populärt
Mest gillat
Medlemmar
Forumsök
Regler
Bilder
Meny
Bilder
Utvalda bilder
Populära bilder
Forumbilder
Video
Shop
Meny
Shop
Bästsäljare
Verktyg & maskiner
Hus & bygg
Skruv & infästning
Trädgård & utemiljö
Jämförelser
Meny
Jämförelser
Jämför hustillverkare
Jämför boräntor
Jämför elförbrukning
Jämför bergvärmepump
Jämför luft-vattenvärmepump
Övrigt
Meny
Övrigt
Svarta listan
Fråga experten
Quiz
Ordlista
Information
Meny
Information
Om oss
Nyhetsbrev
Kontakta oss
Annonsera
Regler
Datapolicy
Cookies
A-Ö
Byggahus.se
Arkitektur
Månadens arkitektritade

Villa Lyckan - flexibelt och rödfärgat nära Marstrand

Leo Gullbring
Publicerad 6 dec 202413 kommentarer
Perfekt gerade övergångar tak och fasad. Och allt målat rött. Estetiskt tilltalande så att det förslår. Men utmaningen i Villa Lyckan var snarare hur man som arkitekt bygger med största flexibilitet för livets alla skeenden och även för framtida ägare.
Villa Lyckan av arkitekt Johan Olsson vid Olsson Lyckefors Arkitektur.

Villa Lyckan av arkitekt Johan Olsson vid Olsson Lyckefors Arkitektur.

Göteborgsbaserade Olsson Lyckefors Arkitektur har på endast 130 + 25 kvadratmeter lyckas få ihop livspusslet i ett stramt, helt träinklätt sommarhus nära Marstrand på Västkusten.

Fasad Villa Lyckan
Foto: Anna Kristinsdottir

Trätak och träfasad går helt i rött och ger intryck av enhetliga husvolymer med minsta detaljeringsgrad. Samtidigt ger färg- och materialvalet, som ledde till en nominering till Rödfärgspriset i år, att byggnaden smälter in i omgivningen.

Vi har låtit fälla ned en fotlist i taket som leder bort vattnet i hängrännorna

– Vi har låtit fälla ned en fotlist i taket som leder bort vattnet i hängrännorna, förklarar arkitekt Johan Olsson, en av grundarna till Olsson Lyckefors Arkitektur. Stuprören är dolda, och takbrädorna är gerade mot fasadpanelen.

Faluröd fasad med infälld fotlist
Foto: Anna Kristinsdottir

Innanför träinklädnaden möter en vattentät matta. Samma lösning har utan problem använts i Villa Amiri som stod klar för 8 år sedan. 

– Det ser rätt extremt ut men fungerar bra. Det går förstås att lossa panelen för att komma åt stuprören. Panelen är målad med en hybridfärg med tanke på det tuffa västkustklimatet: Falu Rödfärg och röd tjärfärg.

Infälld fotlist i rött faltak
Foto: Anna Kristinsdottir

Villa Lyckan ligger knappt en halvmil från Marstrand på Västkusten. På bottenvåningen möter vardagsrum och kök längs den ena långsidan. Eldstaden delar upp i två tydliga delar med murstocken som bärande del i takkonstruktionen.

- Bjälklaget släpper från ytterväggen där undertak och innervägg möts vilket ger extra rymd åt det avlånga rummet.

Vardagsrum i Villa Lyckan
Foto: Anna Kristinsdottir
Soffhörna i Villa Lyckan
Foto: Anna Kristinsdottir

Instön bjuder på en bergig och bevuxen terräng. Villa Lyckans stora fönster sätter utsikten i fokus och ger huset ett markant ansikte gentemot omgivningen.

Fasad Villa Lyckan
Foto: Anna Kristinsdottir

Beställarna Martin och Patrik Zackrisson Klaar har sedan tidigare varsina 3 barn från andra relationer. Hur får man ihop föräldrar och tonåringar med flick- och pojkvänner på 130 kvadratmeter?

Att få ihop pusslet med så pass många och alla husets funktioner var en utmaning.

- Vissa projekt känns mer i själen, understryker Johan Olsson, att få ihop pusslet med så pass många och alla husets funktioner var en utmaning.

Entreparti vid Villa Lyckan
Foto: Anna Kristinsdottir

Ett hus är enligt Johan Olsson något av en stelnad form fyllt med ett flöde av människor. Flexibilitet har varit utgångspunkt för både den nuvarande familjen och även med tanke på framtida andra ägare.

– De två sönerna blev bästa kompisar direkt när Matin och Patrik flyttade ihop. De ville ha sovrum på ovanvåningen bredvid varandra. Skjutdörren som tidigare nästan alltid stod öppen har nu blivit lite mer stängd när de fått skilda intressen. 

Vardagsrum
Foto: Anna Kristinsdottir
Övervåning villa Lyckan
Foto: Anna Kristinsdottir

Huvudbyggnaden och dess privata utrymmen är placerad mot norr på tomten i kanten av en sluttning. Gemensamma utrymmen återfinns mot söder. Byggnaderna är uppförda med trästommar på betongplattor, inomhus har betongen slipats upp en yta som anspelar på de omgivande berghällarna.

Övervåning med sovrum
Foto: Anna Kristinsdottir

Ett knep för att maxa byggytan till 130 kvm var att förlänga huset med en attefallstillbyggnad samt ytterligare en i form av takkupan på det stora huset. Sedan tillkom dessutom en fristående attefallsbyggnad om 25 kvadratmeter på tomten.

Ett knep för att maxa byggytan till 130 kvm var att förlänga huset med en attefallstillbyggnad

– På sikt ska det bli fler byggnader på tomten, nästa projekt för ägarna är en pergola och ett växthus.

Boingshus nära attefallshus vid Villa Lyckan
Foto: Anna Kristinsdottir

En tid med varierande familjekonstellationer och inte minst uppbrutna förhållanden där föräldrarna alternerar mellan olika lägenheter kräver en annorlunda arkitektur. Trots det är det i flerfamiljshus fortfarande den inte så självklara kärnfamiljen som är ritmall.

– De berättade att de i somras var 14 personer på de här 130 kvadratmetrarna och det fungerade perfekt, säger Johan Olsson och blir nästan rörd. Det finns sociala ytor där nere där beställarna har sitt privata med sovrum och eget badrum.

Planlösning nedre paln
Planlösning nedre plan Olsson Lyckefors Arkitektur.
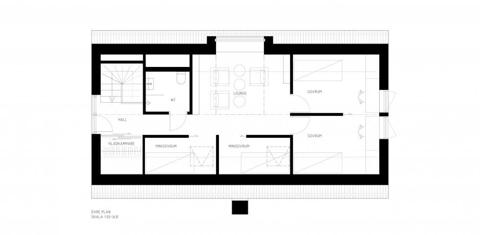
Planlösning på övre plan i Villa Lyckan
Planlösning övre plan av Olsson Lyckefors Arkitektur.

Ovanvåningen har förutom sovrum och sovnischer också ett generöst vardagsrum med en hög takkupa som öppnar ut mot utsikten.

– Vi har klätt insidan med björkplywood, både väggar och tak, vi kan ju inte fastna i furuträsket, säger Johan Olsson med på villan Späckhuggaren i gott minne.

Trappa klädd i plywood
Foto: Anna Kristinsdottir

Även trappan mellan de två våningsplanen är klädd med björkplywood, likaså köksinredningen. 

– Att använda samma materialbehandling genom hela huset understryker rummens skulpturala kvaliteter.

Gavel på Villa Lyckan
Foto: Anna Kristinsdottir

Bägge husen kostade exklusive tomt ca 5 miljoner kronor, vilket inte är någon extrem summa i sammanhanget. Den enkla men samtidigt flexibla planlösningen speglar utsidans sparsmakat exakta uttryck.

Attefallshus
Foto: Anna Kristinsdottir

Läs också

  • Villa Timmerman i Askim
  • Villa Hovås med arkitektoniskt mervärde
Svara
Gilla

Kommentarer

13
R
Det enda som betyder något. Dom går i en sanslöst vänstervriden skola. https://www.arkitekturupproret.se/
· 9 dec
O
Du läser in något som inte finns. Jag har bara kommenterat en text på ett forum som presenterar ett hus. Någon kulturtext har jag inte uttalat mig om alls i de
· 9 dec
O
Det finns inget sådant generellt samband alls. Det är delvis sant. Precis som att hus med tidstypiskt utseende tenderar att sakna attraktionsvärde. För det fin
· 9 dec
Visa alla kommentarer
Läs artiklar taggade med
Månadens arkitektritade
Färg, måla & tapetsera

Mest läst

  • Gula fällkilar av märket Meec Tools

    Jula stoppar farligt trädfällarverktyg

  • Bild på ett tak.

    ARN: Husägaren bör få tillbaka hela takkostnaden

  • Öland

    Bekämpade parkslide framgångsrikt med salt – olagligt

  • Drömhuset revs – då köpte Jerker och Anna timmerstommen och byggde upp det igen

    Drömhuset revs: Då köpte de timmerstommen och byggde upp det igen

  • Larmbolag granskas efter mängder av klagomål

Relaterade forumämnen

  • Nybygge: Trähus i äldre stil med torn, gigantisk källare och 4m högt garage!

    Socialt & Projekt
  • Hjälp mig finslipa planlösningen! Vad skulle ni göra annorlunda?

    Planlösningar
  • Tolka detaljplan samt kommunens avslag

    Bygglov
  • Det här med att skaffa garageplats...

    Övrigt husrelaterat
  • Bygglov "liten avvikelse" - avslag trots mindre än 10% - hur gå vidare?

    Bygglov

Populära forumämnen

  • Rimlig lön för elektriker?

    El
  • Badrumsrenoveringen har förstört vårt badrum

    Badrum
  • Hur är det ok att vvsmontör tömmer 300 l varmvattenberedare

    Vatten & Avlopp
  • Fått sen faktura ställd till dödsbo från skatteverket

    Juridik
  • Byta huvudsäkring till 25 alt 35 amp ... går det utan leverantör vet?

    El
Vi vill skicka notiser för ämnen du bevakar och händelser som berör dig.