22 428 läst ·
70 svar
22k läst
70 svar
Helt öppen planlösning, hur "avgränsa" köket från vardagsrummet?
Tack för tipset! Skall gå och titta där men jag tror att det vi kanske skall göra är att ta in en arkitekt och se om vi kan fixa till köket för att få en bättre planlösning.S Shiraz skrev:Jag såg på HTH i Göteborg ett kök som var helt slätt tills man öppnar upp det. Det var som en slät vägg. Kanske ska du gömma köket istället och sedan möblera? Så tar du fram det när du behöver det?
Försökte hitta en bild på det men lyckades inte.
I varje fall så var köket mycket smart, man öppnade upp det som luckor men det var hela skåp på hjul som var som luckor. Svårt att förklara.
Gammal tråd men ni har väl precis flyttat in! Jag gillar tanken på gemensamt utrymme och tycker nog att ni ska satsa på en halvvägg med lite avställningsyta bakom soffan. Tycker att köket ser ut att uppfylla svensk standard och så farligt mycket springande kommer det inte att bli!
Lycka till och lyssna inte för mycket på de som är negativa
Lycka till och lyssna inte för mycket på de som är negativa
Allvetare
· Västra Götaland
· 11 966 inlägg
Dom håller på att göra fundament för grunden till huset nu..
Placeringen av spis mm spelar ingen roll i mitt förslag. Exakt vad du placverar närmast trappan kan man ju titta på. Menar bara att man kan placera "köket" där istället för att få den övre delen mer avskild för vardagsrum och hemmakontoret.1 16386 skrev:
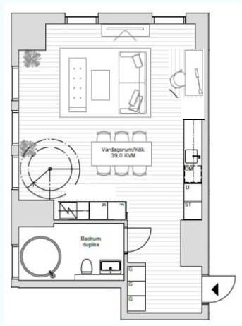
Absolut kan man diskutera hur man löser köket, men vad jag menar är att utrymmet runt trappan kan inte användas - man kommer helt enkelt inte åt det ordentligt (har själv spiraltrappa i en etagelägenhet). Om första trappsteget är som jag tolkar ritningen, bredvid matbordet så att man börjar gå "mot badrumsväggen" innan man svänger ut mot fönsterväggen, så kan skåpraden på väggen mot badrummet inte vara mycket längre än de två högskåpen i inlägg 63. Jag skulle flytta spisen till samma skåprad som diskhon och eventuellt förlänga badrumsväggen med 60 cm så att man får plats med 180-200 cm högskåp på den väggen. Det döljer badrumsdörren lite också.M magnus-villamer skrev:
Du tolkar det fel. Den kvartscirkel som är närmast "spisen" är öppen. Går utmärkt att nyttja. Sedan måste man som sagt inte ha spisen där. Kyl, frys och annan förvaring i högskåp funkar nog bättre.1 16386 skrev:Absolut kan man diskutera hur man löser köket, men vad jag menar är att utrymmet runt trappan kan inte användas - man kommer helt enkelt inte åt det ordentligt (har själv spiraltrappa i en etagelägenhet). Om första trappsteget är som jag tolkar ritningen, bredvid matbordet så att man börjar gå "mot badrumsväggen" innan man svänger ut mot fönsterväggen, så kan skåpraden på väggen mot badrummet inte vara mycket längre än de två högskåpen i inlägg 63. Jag skulle flytta spisen till samma skåprad som diskhon och eventuellt förlänga badrumsväggen med 60 cm så att man får plats med 180-200 cm högskåp på den väggen. Det döljer badrumsdörren lite också.
Klicka här för att svara
Produkter som diskuteras i tråden
