22 396 läst ·
70 svar
22k läst
70 svar
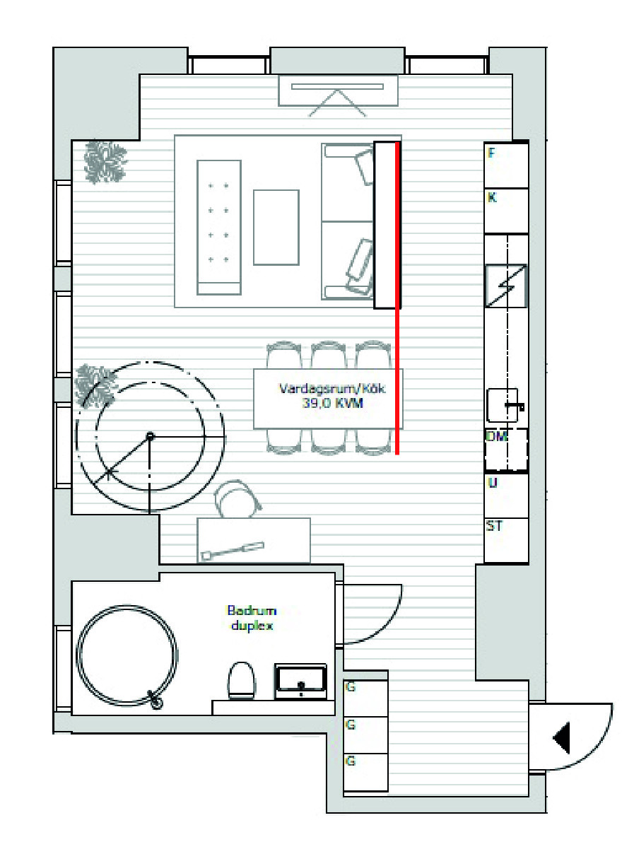
Helt öppen planlösning, hur "avgränsa" köket från vardagsrummet?
Ja, det var något sådant jag tänkte men inte så långt och med skåp som står på golvet men som inte är så djupa.L Liteavvarje skrev:
För oss är två fullstora badrum allt annat än slöseri. Vi hade inte ens tittat åt lägenheten om det inte hade varit för att där fanns just två badrum. Jag är inte ute efter en vägg för att stänga av utan mest av någon sorts avgränsning för att kunna möblera på ett bra sätt.Anna_H skrev:
Det var verkligen inte genomtänkt. Köket borde ha varit i hörnet där trappan är istället, och en helt normal men smal trappa som avskiljare. Slöseri på utrymme med två fullstora badrum när det bara är två sovrum också. Men det är svårt att göra så drastisk förändring nu.
Men fundera på om inte Kyl/Frys samt eventuellt även skafferi/städ går att flytta ut på golvet som en vägg, kanske går även spisen att flytta en liten bit mot hallen till utan att det ställer till för mycket.
Precis! Det är det vi hoppas påPellePeps skrev:
Gissningsvis behöver de ha en ingång på varje våningsplan av någon anledning. Det borde annars ha varit billigare för dem med bara en ingång på nedervåningen.
Så mycket mat lagar vi inte och i det här boendet tror jag även att vi kommer att kunna få roomservice. Jag vill mest hitta ett bra sätt att kunna möblera på. Hade det varit större hade vi installerat en köksö.H hemljuvahem86 skrev:Det står att ni redan har bokat, men jag är tveksam rent allmänt till kök och vardagsrum så nära varandra utan någon ljuddämpande vägg emellan. Det beror ju mycket på vad man ska ha köket till, men vi lagar ganska mycket mat och bakar och det hade aldrig fungerat så som på bilden ovan. Att ha en matberedare igång som knådar deg eller mixrar som mixar såser eller wokpannor som fräser och har sig... ja listan kan göras lång.
Vi har idag halvöppet dvs med en vägg mellan kök och vardagsrum och sen går man två steg genom hallen för att komma in i vardagsrummet. Helst hade jag nog velat ha en bardisk mellan kök o v-rum för det blir mycket springande i hallen och personen som är där "försvinner ju" ur det sociala, men man får helt enkelt kompromissa.
Att ha kök och v-rum i samma tycker jag fungerar bättre när rummen är ca 100 m2 eller större och man kan ha ljuddämpande material som mattor, gardiner, akustikplattor etc.
Fast jag har inte sagt att jag inte gillar en öppen planlösning. Det är snarare så att jag vill hitta ett bra sätt att möblera på.Johannes Carlsson skrev:
Det är badrummet med det runda badkaret, takhöjden, utsikten och väggen helt i glas i sovrummet vi fallit för i kombination med bekvämligheterna i huset. Att sätta upp en vanlig vägg är inte aktuellt men jag funderar på om en variant i glas skulle kunna vara något...T TowaTei skrev:Marknadsförs den här lägenheten som tre rum OCH kök, eller hur gör mäklarna nu när typen av planlösningar blir allt vanligare? För här går det ju inte riktigt att prata om "öppen planlösning", utan köket är snarare en del av vardagsrummet – har sett liknande lösning i många av Oscar Properties byggen också.
Tyvärr måste jag sälla mig till nejsägarna. Missförstå mig rätt, lägenheten ser fantastisk ut med den höga takhöjden (som jag tolkar ritningen) och känslan när man kommer in i hallen och ser rymden (främst då höjden och fönstren) i vardagsrummet lär ju vara grym! ...men med tanke på att den faktiska golvytan i vardagsrummet ändå är så pass liten så tror jag att ni bör försöka hålla huvudet kallt och noga känna efter om ni kan leva med den här typen av kökslösning, eller – om ni väljer att sätta upp en vägg – om ni kan leva med att göra vardagsrummet ännu mindre. Om ni väljer det senare, påverkar det anledningarna till att ni föll för lägenheten från början? Var försiktiga så att ni inte hamnar i en dålig kompromiss.
Det stämmer! Det perfekta hade varit en köksö men det var bara jättestora lägenheter som hade det (och de var inte heller i två våningar och vi tilltalades just av takhöjden i vardagsrummet).S skinte1 skrev:Visst är det Karlatornet? Precis som föregående talare håller jag med om att just tanken med denna lägenheten är relationen mellan kök/vardagsrum. Jag är själv arkitekt och de allra flesta kunder efterfrågar något liknande (men ofta med köksö så att man kan stå ut mot vardagsrumet)
Det finns ju andra lägenheter lediga i Karlatornet i samma prisklass med bättre förutsättningar att dela av men ni kanske ville ha just en duplex?
Om ni nödvändigtvis ska dela av tycker jag att det är olämpligt att dra väggen hela vägen ner som i förslaget ovan då det kommer att kännas som en korridor. Sluta istället strax under soffan och dra den ytterligare ca 120-150cmm i vinkel som ett bakvänt L (max fram till där övre vånigen slutar) Se till att ni har 120cm till köksbänken och absolut inte mindre än 110cm. Väggen som bildas i vinkel mot köket kan man ställa bordet mot eller hänga tavlor på etc. Det finns ju inte överdrivet med väggyta annars med alla fönster. En nackdel med någon typ av avdelning kan vara att man inte får riktigt samma wow-upplevelse av att se alla fönster/utsikt direkt från hallen.
Jag har inget emot en öppen planlösning men just här känns det som om det är svårt att möblera men kanske beror det på hur de ritat in möblerna? Att sätta upp en hel vägg (om den inte är i glas) förstör ju så klart så det är inte aktuellt.
Är inte riktigt med på hur du tänker att man skulle sätta dit väggen men skall se om jag kan rita in det på något sätt men som sagt, en vanlig vägg är inte aktuellt.
Tack! Även 5 m höga fönster och glasväggen i sovrummet gjorde att vi föll för lägenheten (+ all service som kommer att finnas i huset) . Kan vi bara få till möbleringen på ett bra sätt så blir den perfekt.S skinte1 skrev:
Det är en sådan typ av glasvägg jag funderar på! Kanske med lägre skåp nedtill och med "väggen" i bakkant och upp emot tak. Tänker dock att man kanske måste möblera mot glasväggen för att få plats om man sätter upp en sådan glasvägg?
Mitt förslag är en halvhög vägg/skåp som går längs med lite mindre än halv köket. Skåpen kan vara så smala som 20 cm med skjutdörrar för förvaring av vaser mm. Ovanpå skåpen/väggen kan man sätta glasdörrar som även de är skjutbara, så att man kan öppna upp eller så sätter man vajrar från taket ner till skåpen och låter klängväxter växa uppåt, t ex murgröna, gullranka eller liknande. Allt från heltäckande till att växterna bara ramar in.
Man kan även låta delen vid soffan gå ner till ett skåp och resten hela vägen till golv. Anledningen till att jag inte ritade in glasväggen på vardagsrumssidan av skåpet är att du förlorar viktigt yta till matbord. Skåpen går ju att öppna från kökssidan ändå och så får man istället en möblerbar vägg/hylla vid soffan. Eller att man lägger glasväggen på andra sidan men att den delen som går ner till golv är ett stort skjutparti som glider in bakom soffan...
Inloggade ser högupplösta bilder
Logga in
Skapa konto
Gratis och tar endast 30 sekunder
Själv hade jag övervägt en förvaringslösning baserad på smala öppna hyllplan, hängandes från taket. På så vis bibehåller man den öppna planlösningen och ljusflödet, under förutsättning att man inte helt fyller upp hyllplanen naturligtvis. Har man inte behov av den förvaringen så är den diskuterade glasväggen smidigare dock.
Walk-in-closet intill badrummet på ovanvåningen ser jag inget problem med till skillnad från ett par andra här, perfekt snarare tycker jag med tanke på att badrummet där även agerar tvättstuga - ingen smutstvätt som ligger och stör någonstans och inget spring med ren tvätt.
Walk-in-closet intill badrummet på ovanvåningen ser jag inget problem med till skillnad från ett par andra här, perfekt snarare tycker jag med tanke på att badrummet där även agerar tvättstuga - ingen smutstvätt som ligger och stör någonstans och inget spring med ren tvätt.
Allvetare
· Västra Götaland
· 11 963 inlägg
Hänga en gardinskena i taket skulle kunna vara en smidig visuell avskärmning som går att dra undan vid behov
