19 279 läst ·
76 svar
19k läst
76 svar
Har jag rätt att sätta staket i tomtgränsen?
Ts problem är att kommunen säger att fastighetsgränsen ligger i gatan. Nu finns det några möjlighetet.
1 kommunen gjorde ett mätfel och gränsen ligger inte i gatan.
2 kommunen la asfalt på ts tomt. Dvs gatan ligger inte där den skulle ligga enligt detaljplan
3 kommunen mätte rätt och gatan ligger där den ska, då har ts tomt en del som enligt dp är tomtmark eller kvartersmark och en liten remsa som enligt dp är gatumark.
Alla 3 alternativ är möjligt och även om de är ovanliga förekommer det.
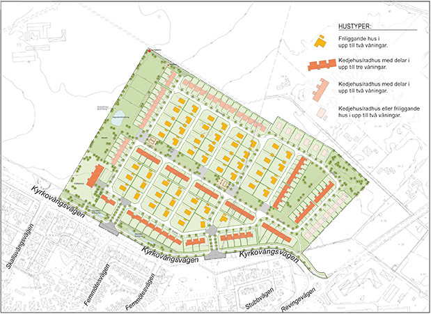
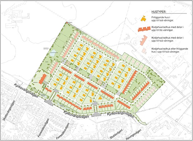
Som exempel lägger jag till en planillustration jag hittade.
De vita områden är gatumark. De ljusgröna tomtmark och de mörkgröna grönområde.
Allt är fastställd i dp och marken får bara användas i enlighet med dp
Exempel med E18 och servitutsvägar är inte jömförbar med ts, eftersom de inte regleras i dp.
1 kommunen gjorde ett mätfel och gränsen ligger inte i gatan.
2 kommunen la asfalt på ts tomt. Dvs gatan ligger inte där den skulle ligga enligt detaljplan
3 kommunen mätte rätt och gatan ligger där den ska, då har ts tomt en del som enligt dp är tomtmark eller kvartersmark och en liten remsa som enligt dp är gatumark.
Alla 3 alternativ är möjligt och även om de är ovanliga förekommer det.
Som exempel lägger jag till en planillustration jag hittade.
De vita områden är gatumark. De ljusgröna tomtmark och de mörkgröna grönområde.
Allt är fastställd i dp och marken får bara användas i enlighet med dp
Inloggade ser högupplösta bilder
Logga in
Skapa konto
Gratis och tar endast 30 sekunder
Exempel med E18 och servitutsvägar är inte jömförbar med ts, eftersom de inte regleras i dp.
Skogsägare
· Stockholm och Smålands inland
· 21 917 inlägg
Skulle föredragit om det kursiverade tomt ovan istället skrevs som fastighet, men i övrigt var det en bra och pedagogisk genomgång av de möjliga situationerna.harry73 skrev:
Hej!
Kul med debatt om min gräns, jag följer för fullt.
Här är en bild från detaljplanen från 1953.
Man får alltså ta i beaktande att vägen har legat där i 65 år och antagligen asfalterats om ett par gånger. Anslutande väg var kullersten när huset byggdes.
Aktuell gräns rödmarkerad.
Kul med debatt om min gräns, jag följer för fullt.
Här är en bild från detaljplanen från 1953.
Man får alltså ta i beaktande att vägen har legat där i 65 år och antagligen asfalterats om ett par gånger. Anslutande väg var kullersten när huset byggdes.
Aktuell gräns rödmarkerad.
Allvetare
· Stockholm
· 3 061 inlägg
Nu har jag faktiskt aldrig hört talas om att det kan bli så galet. Har du något exempel på det och hur det löstes?harry73 skrev:
Ts problem är att kommunen säger att fastighetsgränsen ligger i gatan. Nu finns det några möjlighetet.
1 kommunen gjorde ett mätfel och gränsen ligger inte i gatan.
2 kommunen la asfalt på ts tomt. Dvs gatan ligger inte där den skulle ligga enligt detaljplan
3 kommunen mätte rätt och gatan ligger där den ska, då har ts tomt en del som enligt dp är tomtmark eller kvartersmark och en liten remsa som enligt dp är gatumark.
Alla 3 alternativ är möjligt och även om de är ovanliga förekommer det.
Som exempel lägger jag till en planillustration jag hittade.
De vita områden är gatumark. De ljusgröna tomtmark och de mörkgröna grönområde.
Allt är fastställd i dp och marken får bara användas i enlighet med dp
[bild]
Exempel med E18 och servitutsvägar är inte jömförbar med ts, eftersom de inte regleras i dp.
Det ts måste göra är låta lm göra en gränsutredning. Troligtvis har ett mätfel begåtts. Vem som gjort fel omöjligt att gissa. Så gränsen utredas. Det är en ganska stor kostnad. Så frågan är hur viktigt det är att få rätt att sätta ett staket.
Nu syftar jag inte på markvärde eller rätt och fel. Eftersom en gräns utredning kostar massa pengar. Där man får betala oavsett rätt. Där av frågan. Jag hade inte brytt om det handlar om hur man kan sätta ett staket.
Så vida vi inte pratar om många 10tals kvm
Skogsägare
· Stockholm och Smålands inland
· 21 917 inlägg
Allmän platsmark har jag skrivit om, aldrig allmän parkmark. Det senare tror jag inte finns definierat i PBL, medan det förra exempelvis är gator och parker.
Ett exempel där fastigheter hade tomt och gatumark finns i Vellinge kommun.B Byggdjuret skrev:
Vellinge är lite speciellt överlag. De äger nämligen nästan inga gator. De har samfällighetsföreningar för det.
Det som hände var att gamla fastigheter bildades på en tid när gatorna var smalare. Och i den nya detaljplanen utökades utrymme för vägarna (framförallt vid korsningar)
I praktiken ändrades ingenting, men dessa markbitar var gatumark enligt dp.
När nu i modern tid folk försökte få bygglov, fick de höra att de inte kunde få det eftersom deras trädgård/fastighet var planstridig.
Lösningen var att fastighetsägarna skulle skänka den planstridiga biten till kommunen. De skulle dessutom stå för förrättningskostnaden. Därefter skulle kommunen skänka marken till samfälligheten.
Det skrevs mycket i tidningen om det. Jag länkar till en av dom
https://www.sydsvenskan.se/2016-10-18/vellinge-backar-fran-krav-pa-gratis-mark
Allvetare
· Stockholm
· 3 061 inlägg
I artikeln du hänvisar till står inget om det du säger. Utan bara att tomten var för liten. De nämner inte den av dig i ett tidigare inlägg.harry73 skrev:
Ett exempel där fastigheter hade tomt och gatumark finns i Vellinge kommun.
Vellinge är lite speciellt överlag. De äger nämligen nästan inga gator. De har samfällighetsföreningar för det.
Det som hände var att gamla fastigheter bildades på en tid när gatorna var smalare. Och i den nya detaljplanen utökades utrymme för vägarna (framförallt vid korsningar)
I praktiken ändrades ingenting, men dessa markbitar var gatumark enligt dp.
När nu i modern tid folk försökte få bygglov, fick de höra att de inte kunde få det eftersom deras trädgård/fastighet var planstridig.
Lösningen var att fastighetsägarna skulle skänka den planstridiga biten till kommunen. De skulle dessutom stå för förrättningskostnaden. Därefter skulle kommunen skänka marken till samfälligheten.
Det skrevs mycket i tidningen om det. Jag länkar till en av dom
[länk]
S
Jag hänger inte med och kan göra samma slutsatser med vägledning av den artikeln.harry73 skrev:
Ett exempel där fastigheter hade tomt och gatumark finns i Vellinge kommun.
Vellinge är lite speciellt överlag. De äger nämligen nästan inga gator. De har samfällighetsföreningar för det.
Det som hände var att gamla fastigheter bildades på en tid när gatorna var smalare. Och i den nya detaljplanen utökades utrymme för vägarna (framförallt vid korsningar)
I praktiken ändrades ingenting, men dessa markbitar var gatumark enligt dp.
När nu i modern tid folk försökte få bygglov, fick de höra att de inte kunde få det eftersom deras trädgård/fastighet var planstridig.
Lösningen var att fastighetsägarna skulle skänka den planstridiga biten till kommunen. De skulle dessutom stå för förrättningskostnaden. Därefter skulle kommunen skänka marken till samfälligheten.
Det skrevs mycket i tidningen om det. Jag länkar till en av dom
[länk]
Sen så har svårt för tidningar som källa. Du verkar.
Problemet skulle Vara att en del av fastigheten kan bestå av gatumark. Vilket upptäcks vid ansökan om bygglov
Alltså inget som hjälper ts. Jag skulle vilja få veta mer om dessa problem du tog i ett tidigare inlägg. Eftersom du nämner det så måste det vara vanligt.
Allvetare
· Stockholm
· 3 061 inlägg
Bara ett tips, läs de länkar du tipsade mig. För då blir allt mycket lättare. Dina råd blir mycket bätttre! Jag själv läst mycket om dp och dess process. Därför har jag bra koll. Och försöker att inte uttrycka mig så bestämt om något jag inte är säker på.Nötegårdsgubben skrev:
Men jag tror att du är på samma våglängd när jag säger att vi inte hjälper ts om vi diskuterar detaljer om vad som är vad. Och om felet skulle bero på att dp inte stämmer med sanningen. Vill han få reda på sanningen måste han få dit lm. Att diskutera eventuella otsaker utan ge lösningar är kanske de mest produktiva.
Poängen är att saker inte automatiskt blir rätt för att en kommun är inblandat, och att det kan finnas gamla fastigheter som inte följer (nyare) detaljplan.B Byggdjuret skrev:I artikeln du hänvisar till står inget om det du säger. Utan bara att tomten var för liten. De nämner inte den av dig i ett tidigare inlägg.
S
Jag hänger inte med och kan göra samma slutsatser med vägledning av den artikeln.
Sen så har svårt för tidningar som källa. Du verkar.
Problemet skulle Vara att en del av fastigheten kan bestå av gatumark. Vilket upptäcks vid ansökan om bygglov
Alltså inget som hjälper ts. Jag skulle vilja få veta mer om dessa problem du tog i ett tidigare inlägg. Eftersom du nämner det så måste det vara vanligt.
Båda saker hjälper TS.
Artikeln är en i en hel bevakning av ärrendet och det är mycket möjligt att de svar du letade finns där (Jag sammanfattade ju händelserna). Artikeln gör det möjligt för dig att leta vidare.
Medlem
· Stockholm
· 389 inlägg
Ta en titt i detaljplanen !!B Byggdjuret skrev:
Där kan stå begränsningar m.a.p. staket,häckar m.m.
I området där jag bor får man inte ha staket mellan tomterna, men det är OK ut mot gatan, planbestämmelse från 1928.
Allvetare
· Stockholm
· 3 061 inlägg
Ska man börja nämna att kan finnas olika regler pga dp. Jag har för mig att inlägget skrevs i samband med att någon nämnt allemansrätten. Vilket speglar svaret.C claesborjesson skrev:
Allvetare
· Stockholm
· 3 061 inlägg
Nu har jag för mig att du kom med ett påstående där jag ville att du skulle backa det du skrev. Det innebär inte att jag ska leta information. De flesta artiklar du hänvisar till är bakom betalvägg.harry73 skrev:
Poängen är att saker inte automatiskt blir rätt för att en kommun är inblandat, och att det kan finnas gamla fastigheter som inte följer (nyare) detaljplan.
Båda saker hjälper TS.
Artikeln är en i en hel bevakning av ärrendet och det är mycket möjligt att de svar du letade finns där (Jag sammanfattade ju händelserna). Artikeln gör det möjligt för dig att leta vidare.
Men det är det nya? Att någon annan gör jobbet?
Detaljplanen är som sagt från 1953, och det är inte orimligt att vägen var smalare då, och att väghållaren (kommunen?) haft behov att bredda den med åren så att den idag faktiskt går in på TS tomt.
Frågan är, är det bara TS som är drabbad (kankske pga hörntomt vid korsningen), eller är det fler längs gatan? Ligger vägen rätt placerad centralt i vägområdet, eller är det god marginal på södra sidan vägen men intrång på norra sidan?
Jag kan förstå om man så här 70 år senare har ett behov av bredare vägar pga mer trafik, plats för gående och cyklister osv, men väghållaren får ju då ta en diskussion med de som berörs av en breddning; antingen en tilläggsplan som medger att en del av fastigheterna upplåts till vägområde, eller servitut som ger dem rätt att ha väg längs en remsa, eller att man köper en remsa mark av de som berörs.
Frågan är, är det bara TS som är drabbad (kankske pga hörntomt vid korsningen), eller är det fler längs gatan? Ligger vägen rätt placerad centralt i vägområdet, eller är det god marginal på södra sidan vägen men intrång på norra sidan?
Jag kan förstå om man så här 70 år senare har ett behov av bredare vägar pga mer trafik, plats för gående och cyklister osv, men väghållaren får ju då ta en diskussion med de som berörs av en breddning; antingen en tilläggsplan som medger att en del av fastigheterna upplåts till vägområde, eller servitut som ger dem rätt att ha väg längs en remsa, eller att man köper en remsa mark av de som berörs.
