11 784 läst ·
61 svar
12k läst
61 svar
Pannrum i fristående garage
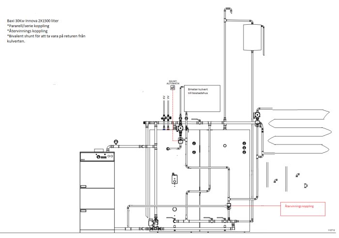
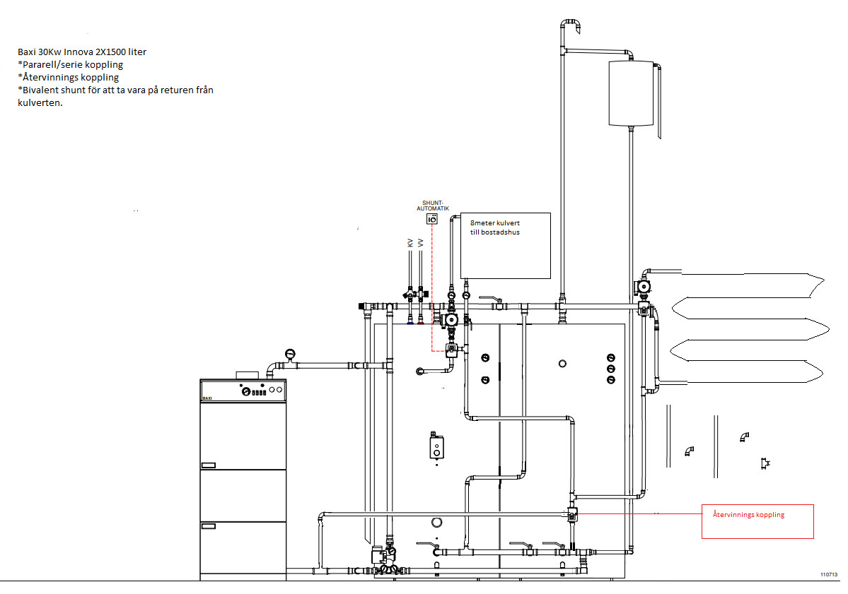
Hur tänker du med exsp-kärlet , ska vattnet cirkulera för att undvika frysrisk av dito
Vad ska återvinningsventilen göra , jag ser en risk med kallare cirk över pannan och inblandning av kallt till topp av tankarna , då röret är kopplat efter laddomaten
Kan ha fel
Urladdningen är den parralell eller i serie
Hur ska shunten för GV vara det är en fyrvägs eller är det en specialvariant
Vad ska återvinningsventilen göra , jag ser en risk med kallare cirk över pannan och inblandning av kallt till topp av tankarna , då röret är kopplat efter laddomaten
Kan ha fel
Urladdningen är den parralell eller i serie
Hur ska shunten för GV vara det är en fyrvägs eller är det en specialvariant
Den öppna exp. kopplas på den kalla sidan, endast luft/ ångblåsning i det övre röret till exp.kärlet.Hade tänkt mig lite större höjdskillnad mellan ångröret och skvaller röret än vad bilden visar.
Återviningen är egentligen en vanlig trevägsshunt som styrs av två kapillärtermostater.
Denna var tänkt att ta tillvara på den överblivna värmen i vedpannan efter avslutad eldning.
Tror detta kan vara bra speciellt vid långa intervall mellan eldningarna.
http://www.termoventiler.se/application/files/2114/5935/4919/Laddomat_Atervinningskoppel.pdf
http://www.novator.se/bioenergy/BE9803/s30-32.pdf
Sedan kommer man att kunna skifta mellan pararell/serie koppling efter tycke och smak.
Golvvärmen är placerad i samma byggnad som pannrummet, ett gartage på 88kvm.
Hade tänkt att ta till vara på värmen i returen på kulverten ut 39 tillbaka 28.
Denna shunt är en bivalent fyrvägsshunt. 0-45 gradersöppning tar den värme från kulvertreturen, 45-90 gradersöppningsvinkel tar den hetvatten från tank toppen.
Har försökt att baka in så mycket lulllull som möjligt. vet inte om allt är supernödvändigt.
Är det någon hör som använder återvinningskoppling?
Återviningen är egentligen en vanlig trevägsshunt som styrs av två kapillärtermostater.
Denna var tänkt att ta tillvara på den överblivna värmen i vedpannan efter avslutad eldning.
Tror detta kan vara bra speciellt vid långa intervall mellan eldningarna.
http://www.termoventiler.se/application/files/2114/5935/4919/Laddomat_Atervinningskoppel.pdf
http://www.novator.se/bioenergy/BE9803/s30-32.pdf
Sedan kommer man att kunna skifta mellan pararell/serie koppling efter tycke och smak.
Golvvärmen är placerad i samma byggnad som pannrummet, ett gartage på 88kvm.
Hade tänkt att ta till vara på värmen i returen på kulverten ut 39 tillbaka 28.
Denna shunt är en bivalent fyrvägsshunt. 0-45 gradersöppning tar den värme från kulvertreturen, 45-90 gradersöppningsvinkel tar den hetvatten från tank toppen.
Har försökt att baka in så mycket lulllull som möjligt. vet inte om allt är supernödvändigt.
Är det någon hör som använder återvinningskoppling?
Har inte använt mig av den återvinningen
Den shunt du länkade till verkar vara ON/OFF med bimetalltermostater , måste kolla mera på den motorn , normalt är dom styrda med öppna stänga från reläer
Får kolla upp funktionen i morgon dags för kudden
Den shunt du länkade till verkar vara ON/OFF med bimetalltermostater , måste kolla mera på den motorn , normalt är dom styrda med öppna stänga från reläer
Får kolla upp funktionen i morgon dags för kudden
Här kommer en liten uppdatering.
Det som är kvar är lite klinker på golvet och att beställa nån sorts skorsten. Sedan går det att börja med rördragning.
Trångt att koppla in kulvertrören mellan tankarna bild #5
Det som är kvar är lite klinker på golvet och att beställa nån sorts skorsten. Sedan går det att börja med rördragning.
Trångt att koppla in kulvertrören mellan tankarna bild #5
Här kommer en uppdatering
Klinker på golv.
Skorsten inköpt.
Mvh Mats
Klinker på golv.
Skorsten inköpt.
Mvh Mats
Lite uppdatering. Skorstenen på plats, har börjat rörkröka lite.
Sakta men säkert, hojta till om ni ser nåt som ser tokigt ut.
Herrejösses du drar svartrör , det var många år sen jag såg någon röris med gängklocka , numer ska det vara Cu och press i skarvarna och kopplingar , ( går aldrig att ta isär bara kapa ner ) titta lite på hur du kan få dit flera unionkopplingar , det är bra att ha om man behöver byta något , då går det ta isär på lämpligt ställe utan att riva en hel del
Ser att du har några


Ser att du har några
Lika dan panna som jag installerade. Jag körde också blårör. Kul och prisvärt, men det tar tid. Sätt kranar och kopplingar så att du kan kopplabort pannan. Du bör nog ta bort plåtarna och inspektera pannan. Min var helt upprostad på sidorna, jag tycker mig ana samma skador på din. Det finns en tråd om mitt pannbyte någonstans.
Edit: Röret ut på toppen ska inte ha något motfall, då samlas det luft där. Svårt att de på bilderna. Det får gärna luta lite uppåt.
Edit: Röret ut på toppen ska inte ha något motfall, då samlas det luft där. Svårt att de på bilderna. Det får gärna luta lite uppåt.
Här är min gamla tråd.
https://www.byggahus.se/forum/threads/byte-av-vedpanna.300366/
https://www.byggahus.se/forum/threads/byte-av-vedpanna.300366/
HejD Daniel 109 skrev:Lika dan panna som jag installerade. Jag körde också blårör. Kul och prisvärt, men det tar tid. Sätt kranar och kopplingar så att du kan kopplabort pannan. Du bör nog ta bort plåtarna och inspektera pannan. Min var helt upprostad på sidorna, jag tycker mig ana samma skador på din. Det finns en tråd om mitt pannbyte någonstans.
Edit: Röret ut på toppen ska inte ha något motfall, då samlas det luft där. Svårt att de på bilderna. Det får gärna luta lite uppåt.
Pannan var redan svetsad av förre ägaren. Ser inte så snyggt ut, hoppas den är tät...
Okej. Då är det löst. När jag läste min gamla tråd inser jag hur mycket stavfel jag har. Men innehållet kan kanske vara till hjälp.
Jag har en övertrycksventil på liknande ställe som du. Min sitter dock uppåt. Om jag skulle göra om det skulle jag sätta ett grovt rör upp en bit och sedan ventilen. Då kan övertrycksvetilen användas för avluftning på ett vettig sätt. Det bästa är ju att ha lutning på hela systemet till en avluftning.
Jag har en övertrycksventil på liknande ställe som du. Min sitter dock uppåt. Om jag skulle göra om det skulle jag sätta ett grovt rör upp en bit och sedan ventilen. Då kan övertrycksvetilen användas för avluftning på ett vettig sätt. Det bästa är ju att ha lutning på hela systemet till en avluftning.
Liten uppdatering
Snart blåsor i händerna pga all gängning.
Snart blåsor i händerna pga all gängning.


























