6 552 läst ·
41 svar
7k läst
41 svar
Koppla in elmotor med 2 strömkällor
Fördelen med dessa två av mig visade förslag är att de är "idiotsäkra".
Det kan t.ex. inte bli en råkortis bara för att någon senare kopplar om lite och sen råkar förväxla de olika ledarna så att olika faser blir ihopkopplade eller kortis fas-nolla.
Det kan t.ex. inte bli en råkortis bara för att någon senare kopplar om lite och sen råkar förväxla de olika ledarna så att olika faser blir ihopkopplade eller kortis fas-nolla.
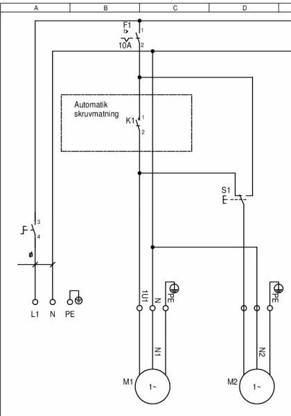
Det här är det enklaste sättet att lösa det.
Men då måste du ta bort allt med stickproppar och sånt skit, det får inte finnas den minsta risk att blanda ihop fas och nolla, som det blir om det är stickpropp, den går ju att vända på.
Det är alltså helt 100% fast inkoppling av allt som gäller.
Vidare måste man vara helt 100% säker på vad som är fas och nolla som kommer ut ifrån maskinen som styr skruvarna, så mätinstrument och kunskap om att mäta är också nödvändigt.
Det man kan se av elen i den bifogade bilden visar att den som grejar med elen där inte är så noga, kanske inte så kunnig. För att börja mixtra med olika startvillkor till en 230V motor måste man vilja och kunna ha lite struktur.
Men då måste du ta bort allt med stickproppar och sånt skit, det får inte finnas den minsta risk att blanda ihop fas och nolla, som det blir om det är stickpropp, den går ju att vända på.
Det är alltså helt 100% fast inkoppling av allt som gäller.
Vidare måste man vara helt 100% säker på vad som är fas och nolla som kommer ut ifrån maskinen som styr skruvarna, så mätinstrument och kunskap om att mäta är också nödvändigt.
Det man kan se av elen i den bifogade bilden visar att den som grejar med elen där inte är så noga, kanske inte så kunnig. För att börja mixtra med olika startvillkor till en 230V motor måste man vilja och kunna ha lite struktur.
Inloggade ser högupplösta bilder
Logga in
Skapa konto
Gratis och tar endast 30 sekunder
Medlem
· Västerbottens län
· 18 024 inlägg
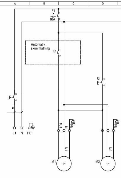
Mikaels lösning i inlägg 34 funkar inte, båda motorerna går ju alltid tillsammans.
Lösningen i 35 fungerar alldeles utmärkt.
Men likväl måste du dit och trycka på knappen, bara halvautomatiskt.
Protte
Lösningen i 35 fungerar alldeles utmärkt.
Men likväl måste du dit och trycka på knappen, bara halvautomatiskt.
Protte
Medlem
· Västerbottens län
· 18 024 inlägg
Att jag ska måsta hålla reda på dig, men det syns ju på antalet inlägg vem som skriver fortare än tanken, typ.....
Prutte
Prutte
Man kan sen byta S1 mot ett lämpligt relä, som styrs utav valfri tryckknapp eller nivåvakt i behållaren etc.
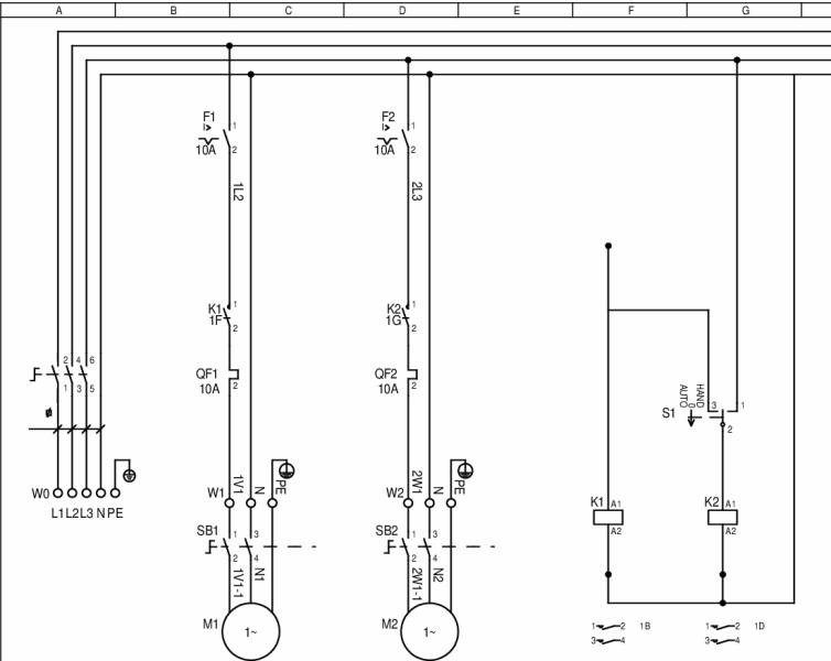
En vanlig enkeltrappströmställare kanske inte håller så länge som motorstartare, jag tror man ska undvika motorer på över ett par hundra watt, det blir nog annars ordentlig gnistbildning över kontakterna när motorn slås av.
Utan hitta ett kraftrelä som är specad till motorns ström/effekt vid AC-23.
En vanlig enkeltrappströmställare kanske inte håller så länge som motorstartare, jag tror man ska undvika motorer på över ett par hundra watt, det blir nog annars ordentlig gnistbildning över kontakterna när motorn slås av.
Utan hitta ett kraftrelä som är specad till motorns ström/effekt vid AC-23.
Han kan använda CEE-don om han vill ha möjligheten att använda kontakter. Blir dock inte lika snyggt och aningen dyrare. Men möjligheten finnsMikael_L skrev:
Det här är det enklaste sättet att lösa det.
Men då måste du ta bort allt med stickproppar och sånt skit, det får inte finnas den minsta risk att blanda ihop fas och nolla, som det blir om det är stickpropp, den går ju att vända på.
Det är alltså helt 100% fast inkoppling av allt som gäller.
Vidare måste man vara helt 100% säker på vad som är fas och nolla som kommer ut ifrån maskinen som styr skruvarna, så mätinstrument och kunskap om att mäta är också nödvändigt.
Det man kan se av elen i den bifogade bilden visar att den som grejar med elen där inte är så noga, kanske inte så kunnig. För att börja mixtra med olika startvillkor till en 230V motor måste man vilja och kunna ha lite struktur.
[bild]
Klicka här för att svara


