6 552 läst ·
41 svar
7k läst
41 svar
Koppla in elmotor med 2 strömkällor
Hobbyelektriker
· Värmland, Molkom
· 26 163 inlägg
Du måste "ta" strömmen från samma gruppledning som matar brännaren! Det kan hända olyckor annars med två separata matningar där man inte har kontroll på hur strömmen ska brytas. Det måste räcka med att bryta en säkring för att göra skruven strömlös oberoende av strömbrytarens läge.Monkort skrev:
En brytare brukar inte gå sönder. Det är mer vanligt att den är felkopplad
Du måste ta ström från före brännarens styrning men samma grupp(ledning).
Hobbyelektriker
· Värmland, Molkom
· 26 163 inlägg
Precis, då ska du koppla enligt min principskiss.
I läge 1 ska skruven till mellanförrådet få ström från samma ledning som skruven till brännaren.
I läge 2 ska skruven till mellanförrådet få ström från samma ledning som matar brännaren.
I min figur kan du se burken "Styrning pelletsskruv" som hela din brännare, eller styrbox som styr både brännare och skruvar.
I läge 1 ska skruven till mellanförrådet få ström från samma ledning som skruven till brännaren.
I läge 2 ska skruven till mellanförrådet få ström från samma ledning som matar brännaren.
I min figur kan du se burken "Styrning pelletsskruv" som hela din brännare, eller styrbox som styr både brännare och skruvar.
Jag funderar på om styrning av skruv 2 (huvudlager->mellanlager) verkligen ska köras via brännaren. Problemet är uppenbarligen att den skruven matar långsammare än den från mellanlagret till brännaren. För att slippa styra manuellt då och då skulle jag frikoppla den styrningen och köra med t.ex. avståndsgivare eller fotosensor som får styra ett relä för att aktivera skruven när det börjar bli tomt och stoppa när det börjar bli fullt. Men det är jag det, som gillar att pyssla.
Kapacitiv givare fungerar nog dåligt för pellets, de brukar fungera på metall (eller människor).
Kapacitiv givare fungerar nog dåligt för pellets, de brukar fungera på metall (eller människor).
Bo. Tack för din lättfattade beskrivning. Jag skall prova koppla in det provisoriskt i morgon och se hur det fungerar. Fungerar det som jag vill, blir det att köpa riktig kabel mm.
Tack alla andra med bra förslag också.
Detta va ett bra forum, tycker jag.
Förslagen med sensorer verkar lite riskabelt tycker jag, ifall det blir nåt fel så det bara matar på med pellets.
Tack alla andra med bra förslag också.
Detta va ett bra forum, tycker jag.
Förslagen med sensorer verkar lite riskabelt tycker jag, ifall det blir nåt fel så det bara matar på med pellets.
Medlem
· Västerbottens län
· 18 024 inlägg
Jag bara undrar varför har du ett mellanförråd när det ändå blir automatiskt från stora förrådet?
Protte
Protte
Ja, det finns förstås risker med det. Man får bygga in en eller två failsafes för att stänga av matningen. Till sist borde det finnas ett motorskydd i skruvmotorn som sätter stopp om det blir knökfullt.Monkort skrev:
Bo. Tack för din lättfattade beskrivning. Jag skall prova koppla in det provisoriskt i morgon och se hur det fungerar. Fungerar det som jag vill, blir det att köpa riktig kabel mm.
Tack alla andra med bra förslag också.
Detta va ett bra forum, tycker jag.
Förslagen med sensorer verkar lite riskabelt tycker jag, ifall det blir nåt fel så det bara matar på med pellets.
Jo, detta är ett väldigt trevligt forum, Välkommen om ingen har sagt det förän nu
Den allra enklaste och billigaste lösningen om du vill ha någon form av automatik är ju med hjälp av tidsrelän ( som sagts tidigare) och mäta upp hur mycket båda skruvarna matar ut under en tidsperiod. Därefter låta en av skruvarna gå antingen kortare eller längre.
Annars finns ju exempelvis Siemens logo med reläutgångar om du vill kunna utöka logiken på ett enkelt och relativt "billigt" sätt. Men det är nog kanske lite väl för två pelletsskruvar.
Annars finns ju exempelvis Siemens logo med reläutgångar om du vill kunna utöka logiken på ett enkelt och relativt "billigt" sätt. Men det är nog kanske lite väl för två pelletsskruvar.
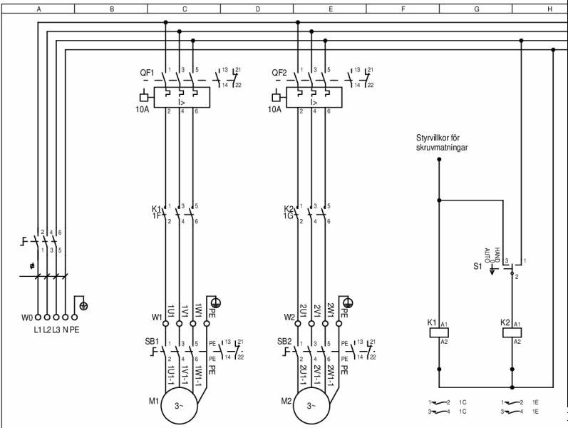
Såhär ser en perfekt standardlösning ut.
Den jag själv väljer om det gäller en kund som är industri, företag, offentlig byggnad osv, där lösningen ska vara bra, framtidssäker, klara underhåll utan att krångla. Priset är inte lika viktigt som robustheten och säkerheten och driftssäkerheten.
Sen går det att förenkla en del, till mig själv skulle jag inte gjort det såhär omfattande.
Men nu undrar jag lite ifall dina motorer är enfas eller trefas, jag ser en stor kondensator på motorn, det får mig att misstänka att det gäller enfasmotorer här.
Den jag själv väljer om det gäller en kund som är industri, företag, offentlig byggnad osv, där lösningen ska vara bra, framtidssäker, klara underhåll utan att krångla. Priset är inte lika viktigt som robustheten och säkerheten och driftssäkerheten.
Sen går det att förenkla en del, till mig själv skulle jag inte gjort det såhär omfattande.
Men nu undrar jag lite ifall dina motorer är enfas eller trefas, jag ser en stor kondensator på motorn, det får mig att misstänka att det gäller enfasmotorer här.
Inloggade ser högupplösta bilder
Logga in
Skapa konto
Gratis och tar endast 30 sekunder
Redigerat:
Medlem
· Västerbottens län
· 18 024 inlägg
Varför inte skippa tunnan, låt skruv 1 slang gå direkt på inloppet skruv 2.
Det kommer bli skruv 1 som bestämmer matningen till brännaren, gångtiden kommer bli lite längre men det blir mer automatiskt.
Jag har motsatt problem, för nära. skruven har för hög lutning och orkar inte riktigt mata.
Du kunde sätta dit en men längre skruv och få en flackare vinkel och säkrare matning.
Protte
Det kommer bli skruv 1 som bestämmer matningen till brännaren, gångtiden kommer bli lite längre men det blir mer automatiskt.
Jag har motsatt problem, för nära. skruven har för hög lutning och orkar inte riktigt mata.
Du kunde sätta dit en men längre skruv och få en flackare vinkel och säkrare matning.
Protte
Hej Mikael_L. Det är en fas motorer, hur ser den förenklade versionen ut? Tack.Mikael_L skrev:
Såhär ser en perfekt standardlösning ut.
Den jag själv väljer om det gäller en kund som är industri, företag, offentlig byggnad osv, där lösningen ska vara bra, framtidssäker, klara underhåll utan att krångla. Priset är inte lika viktigt som robustheten och säkerheten och driftssäkerheten.
Sen går det att förenkla en del, till mig själv skulle jag inte gjort det såhär omfattande.
Men nu undrar jag lite ifall dina motorer är enfas eller trefas, jag ser en stor kondensator på motorn, det får mig att misstänka att det gäller enfasmotorer här.
[bild]

