1 615 läst ·
46 svar
2k läst
46 svar
Feedback på vår planlösning (enplanshus i lösvirke)
Nackdelen då är att man måste gå i smuts för att nå den, fördelen är att man inte behöver gå så långt in i huset om det krisar. Vet några som byggde hus i husdrömmar eller grand design sverige som hade spolplats för barnen så man kunde duscha av kläderna innan dom togs av. Tror det var samma som gjorde en hall likt en förskola.Gammelnörden skrev:
Jag även funderat på lösningen att kunna förbereda barnvagnsförrådet med avlopp och vattenrör för att kunna konverteras till ett gästWC i framtiden när barnvagnen inte längre behövs och man har kunnat spara ihop lite pengar. Om mellanväggen görs lätt att demontera kan uteförrådet göras större.
Det löser i en ganska snar framtid ovanståendes invändning mot att toaletterna är för långt bort.
Annars hade jag nog sett att toan skulle placeras typ där vuxensängen är för att vara lättillgänglig. Då får ett sovrum byta sida också till den nedre längan.
Ja, precis. Vi har utgått från lite olika bredder för att se om vi kan hitta någon optimal bredd.J Jarlsgård skrev:
Wow, tack så mycket för ett så pass genomarbetat förslag! Det ser verkligen jättebra ut och uppfyller mycket av det vi var ute efter. Det har gett oss lite nya idéer också. 😀Gammelnörden skrev:
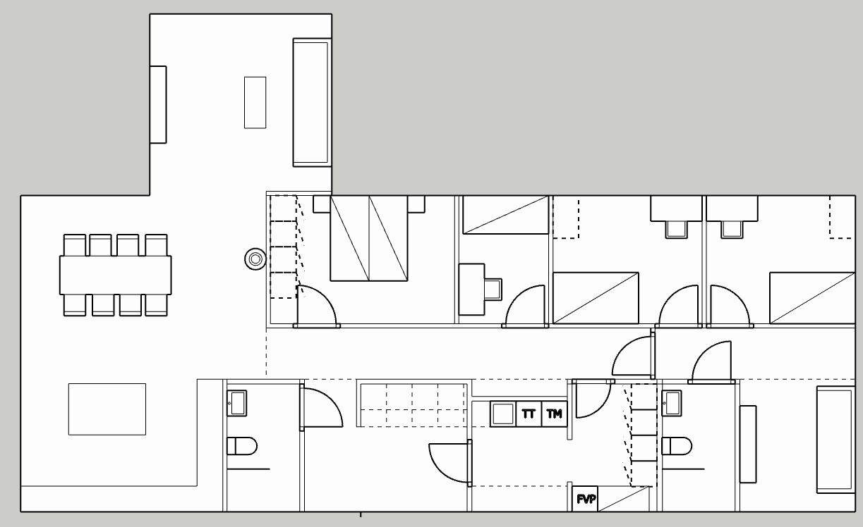
Inspirationsförslag utifrån TS ritning, riktlinjer för tillgänglighet , försöka samla vattnet och hur jag själv hade velat ha det;
[bild]
Observera att föräldrarsovrummets mått stämmer med minsta mått för tillgänglighet i öppen golvyta men att sängen egentligen ska placeras huvudändan mot ytterväggen. För att få till ett fönster eller i detta fall en glasdörr lekte jag med tanken att möblera om med en 160 bred säng.
Liksom att det i tvättstugan, lov- och tillgänglighetsmässigt, bör raden med bänkskåp mot ytterväggen uteslutas. Men det är med skåp 110 brett och plats för att huka sig ner framför en 90 grader öppnad lucka till tvättmaskin och torktumlare.
Istället för att placera en barnvagn med smutsiga hjul i tvättstugan, lekte jag med tanken att ha ett förråd för den (och annat). Andra halvan blev ett förråd som nås utifrån med tillgång till vatten för vattenslang och plats att ställa undan grill och trädgårdsgrejer.
För att minska upplevelsen av längden på korridoren till sovrummen föreslår jag att måla väggen bakom kaminen och korridoren fram till glasdörren i en färg och tapetsera samt lägga heltäckningsmatta i barndelen. Samt lägga ett tåligare golv i kökzonen framför arbetsytorna och kortsidan på kökshalvön.
Jag skulle även lägga ett tåligare golv i hallen fram till väggöppningen in till köket.
Fönster entrésidan är 100 eller 50 bredd, 120 höjd 90 över golvet. Fönster i sovrum, arbets-/gästrum och köket 100 bredd, 140 höjd 70 över golvet. De två fönstren i vardagsrummet är 50 bredd, 180 höjd 30 över golvet. Förslagsvis med mini spotlights som ger ljus åt den väggen när TV:n är avstängd. En lampa i bokhyllan skulle balansera ljuskällorna i rummet förutom en läslampa på motstående sida om soffan. Kanske lite onödigt specifikt men det är så jag tänker när jag mocklar ihop planlösningar...😊
edit ps. Det är IKEA-mått på garderoberna... ds.
Vi har utgått från vissa principer av det du ritat men gjort lite justeringar:
- Vi gillar idén med barnvagnsförrådet i nedre vänstra hörnet, men vi tappar då uppsikt över den södra delen av tomten från kök/vardagsrum osv samt att köket blir lite instängt.
- Vi gillar idén med att ställa hallen på sidan, så det har vi utgått ifrån. Dock har vi gjort tvättstugan lite bredare för att den ska kännas rymligare, på bekostnad av förvaringsväggen mot korridoren som nu i alla fall rymmer en 40 cm djup förvaring så det bryter upp korridorskänslan.
- Hallen är också djupare för att få plats med en 1 m djup kombinerad garderobs/sittbänkslösning istället för mer normala 60 cm.
- Vi har också placerat in ett av badrummen vid hallen så att man inte behöver gå igenom hela huset.
- Vi gillade också placeringen av alla vatten/teknikrum längs med en fasad och alla sovrum längs med en fasad, så den har vi behållit.
- Huvudsovrummet är vi lite kluvna till. Vi vill gärna ha en garderobsvägg längs ena kortsidan på rummet för att kunna ha en TV på väggen vid fotänden. Nu får det med nöd och näppe plats (600 mm på vardera sida sängen), men vi får svårt med fönster. Det går ju att lösa genom att flytta vardagsrummet åt vänster, men då tappar vi det lilla hörnet/knäcken som vi äre ute efter i vardagsrummet.
Klicka här för att svara
Produkter som diskuteras i tråden
Liknande trådar
-
Feedback på planlösning och placering av fönster
Arkitekter, Arkitektritat & Extern design -
Feedback på planlösning för tilllbyggnad och badrum
Planlösningar -
Feedback på planlösning - sutteränghus
Planlösningar -
Feedback på planlösning för om och utbyggnad
Utbyggnad och tillbyggnad -
Feedback planlösning.
Planlösningar
