1 615 läst ·
46 svar
2k läst
46 svar
Feedback på vår planlösning (enplanshus i lösvirke)
Ja det är verkligen för- och nackdelar med alternativen. Hur man än vrider och vänder på det så medför ett fönster i änden på korridoren en längre korridor.J Jarlsgård skrev:I ärlighetens namn tyckte jag första förslaget var bättre, lite baserat på det som freQa är inne på med siktlinjen.
Med det nya förslaget blir förvisso korridoren någon meter kortare, å andra sidan möts man av en vägg istället för en utblick.
Gällande köket så hade jag övervägt att ha en halvö istället. Köksö är förvisso trevligt, men det är tar mycket yta. Med en halvö och bänkskiva under fönstret så får ni gott om arbetsyta. Om ni då även har kyl/frys/ugn mot ytterväggen så kan ni få till en riktigt bra arbetstriangel, och vill man ha barstolar el liknande så är det i sig inget bekymmer.
Och mitt sista inlägg skrevs i viss hast, där jag missade att ni hade skrivit ut på första sidan vilka förhållanden som var runtomkring![]()
Jag hänger inte riktigt med på hur du tänker med köket. Tänker du att köket blir som ett U-kök?
Medlem
· Blekinge
· 11 692 inlägg
Medlem
· Blekinge
· 11 692 inlägg
Medlem
· Blekinge
· 11 692 inlägg
Överväg en skiljevägg mot köket. Det är visserligen högsta mode med öppen planlösning men nackdelarna är uppenbara. Matos, skrammel, högre städningskrav om köket är en del av vardagsrummet, mm. Vid en bjudning vill ingen gäst titta på ett kök där det staplas tallrikar och grytor.
Jag håller med. Om man har 7 eller 9 m korridor spelar mindre roll. Tror ordet korridor skrämmer många men sätter man ett ljus/utsikt i ändan blir det trevligt. En fönsterspot i smygen för ljus under mörka tider.T Thomas_Blekinge skrev:
En korridor kan vara så mycket annat än bara väggar och dörrar. Man kan fälla in biblioteket här. I taket kan man arbeta med raster typ tvärgående plank i olika tjocklekar så får man en variation istället för vit slät gips... Det finns måååånga sätt att göra saker bättre/roligare/spännande än det som man ser i kataloghus.
Roade mig med att ändra formen lite på huset, för att se hur korridor och liknande blev.
Tänker också på tomten, och att ni likväl kan följa den bakre tomtgränsen (så att huset blir lite vridet), på så vis syns entrén tydligare och kök/v-rum blir lite avskärmat från parkering (siktlinjen iallafall)
Huset är med dessa mått ungefär lika stort som innan (kanske någon enstaka kvm större). Korridoren har dock blivit avsevärt mkt kortare och allrummet har blivit bredare.
Placeringen av vardagsrummet la jag så med hänsyn till den kommentar som skrevs lite längre upp om att inte behöva se disk osv vid bjudningar. Genom att ha det i en vinkel bort från köket så blir det lite avskärmat, trots att det är öppen planlösning.
Inloggade ser högupplösta bilder
Logga in
Skapa konto
Gratis och tar endast 30 sekunder
Tänker också på tomten, och att ni likväl kan följa den bakre tomtgränsen (så att huset blir lite vridet), på så vis syns entrén tydligare och kök/v-rum blir lite avskärmat från parkering (siktlinjen iallafall)
Inloggade ser högupplösta bilder
Logga in
Skapa konto
Gratis och tar endast 30 sekunder
Huset är med dessa mått ungefär lika stort som innan (kanske någon enstaka kvm större). Korridoren har dock blivit avsevärt mkt kortare och allrummet har blivit bredare.
Placeringen av vardagsrummet la jag så med hänsyn till den kommentar som skrevs lite längre upp om att inte behöva se disk osv vid bjudningar. Genom att ha det i en vinkel bort från köket så blir det lite avskärmat, trots att det är öppen planlösning.
Nej, inte mer än att det blir extra kvadratmetrar som kostar pengar. 😅J Jarlsgård skrev:
Tack så mycket för att du tog dig tid att rita upp ett alternativ! Vi får titta på det och se om det funkar bättre eller om vi kan sno idéer därifrån. 👍J Jarlsgård skrev:Roade mig med att ändra formen lite på huset, för att se hur korridor och liknande blev.
[bild]
Tänker också på tomten, och att ni likväl kan följa den bakre tomtgränsen (så att huset blir lite vridet), på så vis syns entrén tydligare och kök/v-rum blir lite avskärmat från parkering (siktlinjen iallafall)
[bild]
Huset är med dessa mått ungefär lika stort som innan (kanske någon enstaka kvm större). Korridoren har dock blivit avsevärt mkt kortare och allrummet har blivit bredare.
Placeringen av vardagsrummet la jag så med hänsyn till den kommentar som skrevs lite längre upp om att inte behöva se disk osv vid bjudningar. Genom att ha det i en vinkel bort från köket så blir det lite avskärmat, trots att det är öppen planlösning.
Gammelnörden
Medlem
· Uppsala län
· 1 158 inlägg
Gammelnörden
Medlem
- Uppsala län
- 1 158 inlägg
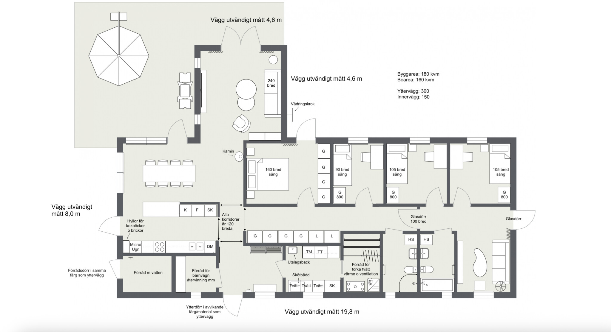
Inspirationsförslag utifrån TS ritning, riktlinjer för tillgänglighet , försöka samla vattnet och hur jag själv hade velat ha det;
Observera att föräldrarsovrummets mått stämmer med minsta mått för tillgänglighet i öppen golvyta men att sängen egentligen ska placeras huvudändan mot ytterväggen. För att få till ett fönster eller i detta fall en glasdörr lekte jag med tanken att möblera om med en 160 bred säng.
Liksom att det i tvättstugan, lov- och tillgänglighetsmässigt, bör raden med bänkskåp mot ytterväggen uteslutas. Men det är med skåp 110 brett och plats för att huka sig ner framför en 90 grader öppnad lucka till tvättmaskin och torktumlare.
Istället för att placera en barnvagn med smutsiga hjul i tvättstugan, lekte jag med tanken att ha ett förråd för den (och annat). Andra halvan blev ett förråd som nås utifrån med tillgång till vatten för vattenslang och plats att ställa undan grill och trädgårdsgrejer.
För att minska upplevelsen av längden på korridoren till sovrummen föreslår jag att måla väggen bakom kaminen och korridoren fram till glasdörren i en färg och tapetsera samt lägga heltäckningsmatta i barndelen. Samt lägga ett tåligare golv i kökzonen framför arbetsytorna och kortsidan på kökshalvön.
Jag skulle även lägga ett tåligare golv i hallen fram till väggöppningen in till köket.
Fönster entrésidan är 100 eller 50 bredd, 120 höjd 90 över golvet. Fönster i sovrum, arbets-/gästrum och köket 100 bredd, 140 höjd 70 över golvet. De två fönstren i vardagsrummet är 50 bredd, 180 höjd 30 över golvet. Förslagsvis med mini spotlights som ger ljus åt den väggen när TV:n är avstängd. En lampa i bokhyllan skulle balansera ljuskällorna i rummet förutom en läslampa på motstående sida om soffan. Kanske lite onödigt specifikt men det är så jag tänker när jag mocklar ihop planlösningar...😊
edit ps. Det är IKEA-mått på garderoberna... ds.
Inloggade ser högupplösta bilder
Logga in
Skapa konto
Gratis och tar endast 30 sekunder
Observera att föräldrarsovrummets mått stämmer med minsta mått för tillgänglighet i öppen golvyta men att sängen egentligen ska placeras huvudändan mot ytterväggen. För att få till ett fönster eller i detta fall en glasdörr lekte jag med tanken att möblera om med en 160 bred säng.
Liksom att det i tvättstugan, lov- och tillgänglighetsmässigt, bör raden med bänkskåp mot ytterväggen uteslutas. Men det är med skåp 110 brett och plats för att huka sig ner framför en 90 grader öppnad lucka till tvättmaskin och torktumlare.
Istället för att placera en barnvagn med smutsiga hjul i tvättstugan, lekte jag med tanken att ha ett förråd för den (och annat). Andra halvan blev ett förråd som nås utifrån med tillgång till vatten för vattenslang och plats att ställa undan grill och trädgårdsgrejer.
För att minska upplevelsen av längden på korridoren till sovrummen föreslår jag att måla väggen bakom kaminen och korridoren fram till glasdörren i en färg och tapetsera samt lägga heltäckningsmatta i barndelen. Samt lägga ett tåligare golv i kökzonen framför arbetsytorna och kortsidan på kökshalvön.
Jag skulle även lägga ett tåligare golv i hallen fram till väggöppningen in till köket.
Fönster entrésidan är 100 eller 50 bredd, 120 höjd 90 över golvet. Fönster i sovrum, arbets-/gästrum och köket 100 bredd, 140 höjd 70 över golvet. De två fönstren i vardagsrummet är 50 bredd, 180 höjd 30 över golvet. Förslagsvis med mini spotlights som ger ljus åt den väggen när TV:n är avstängd. En lampa i bokhyllan skulle balansera ljuskällorna i rummet förutom en läslampa på motstående sida om soffan. Kanske lite onödigt specifikt men det är så jag tänker när jag mocklar ihop planlösningar...😊
edit ps. Det är IKEA-mått på garderoberna... ds.
Redigerat:
En sak direkt som jag inte gillar och det är att båda badrummen är långt bort från den ytan som kommer användas mest. Hade själv velat se iaf en toalett närmare allmänutrymmet.Gammelnörden skrev:
Verkar vara väldigt lite förvaring i köket.Gammelnörden skrev:
Inspirationsförslag utifrån TS ritning, riktlinjer för tillgänglighet , försöka samla vattnet och hur jag själv hade velat ha det;
[bild]
Observera att föräldrarsovrummets mått stämmer med minsta mått för tillgänglighet i öppen golvyta men att sängen egentligen ska placeras huvudändan mot ytterväggen. För att få till ett fönster eller i detta fall en glasdörr lekte jag med tanken att möblera om med en 160 bred säng.
Liksom att det i tvättstugan, lov- och tillgänglighetsmässigt, bör raden med bänkskåp mot ytterväggen uteslutas. Men det är med skåp 110 brett och plats för att huka sig ner framför en 90 grader öppnad lucka till tvättmaskin och torktumlare.
Istället för att placera en barnvagn med smutsiga hjul i tvättstugan, lekte jag med tanken att ha ett förråd för den (och annat). Andra halvan blev ett förråd som nås utifrån med tillgång till vatten för vattenslang och plats att ställa undan grill och trädgårdsgrejer.
För att minska upplevelsen av längden på korridoren till sovrummen föreslår jag att måla väggen bakom kaminen och korridoren fram till glasdörren i en färg och tapetsera samt lägga heltäckningsmatta i barndelen. Samt lägga ett tåligare golv i kökzonen framför arbetsytorna och kortsidan på kökshalvön.
Jag skulle även lägga ett tåligare golv i hallen fram till väggöppningen in till köket.
Fönster entrésidan är 100 eller 50 bredd, 120 höjd 90 över golvet. Fönster i sovrum, arbets-/gästrum och köket 100 bredd, 140 höjd 70 över golvet. De två fönstren i vardagsrummet är 50 bredd, 180 höjd 30 över golvet. Förslagsvis med mini spotlights som ger ljus åt den väggen när TV:n är avstängd. En lampa i bokhyllan skulle balansera ljuskällorna i rummet förutom en läslampa på motstående sida om soffan. Kanske lite onödigt specifikt men det är så jag tänker när jag mocklar ihop planlösningar...😊
edit ps. Det är IKEA-mått på garderoberna... ds.
Varför inte ett sammanhängande förråd nere till vänster?
Gammelnörden
Medlem
· Uppsala län
· 1 158 inlägg
Gammelnörden
Medlem
- Uppsala län
- 1 158 inlägg
5st 60skåp + utrymmet under och över ugn och micro, 1st 40skåp, 1st 60högskåp och alla överskåpen på väggen mot arbetsytan och de över kylskåpen.K Kane skrev:
Vanligtvis räcker det för ett hushåll.
Anledningen till att jag delade upp förrådet är för att TS ville kunna ställa barnvagnen inomhus och den begränsade bredden på utrymmet gör att det blir mer praktiskt med en vägg att kunna ställa en förvaringshylla mot. Samt i det fall att man inte har möjlighet att bygga separata förråd och garage i nybyggnadsfasen har man åtminstone ett varmförråd för utomhuspryttlar från början.
Jag även funderat på lösningen att kunna förbereda barnvagnsförrådet med avlopp och vattenrör för att kunna konverteras till ett gästWC i framtiden när barnvagnen inte längre behövs och man har kunnat spara ihop lite pengar. Om mellanväggen görs lätt att demontera kan uteförrådet göras större.Purre skrev:
Det löser i en ganska snar framtid ovanståendes invändning mot att toaletterna är för långt bort.
