1 615 läst ·
46 svar
2k läst
46 svar
Feedback på vår planlösning (enplanshus i lösvirke)
P
PappasHammare
Medlem
· Skåne län
· 2 298 inlägg
PappasHammare
Medlem
- Skåne län
- 2 298 inlägg
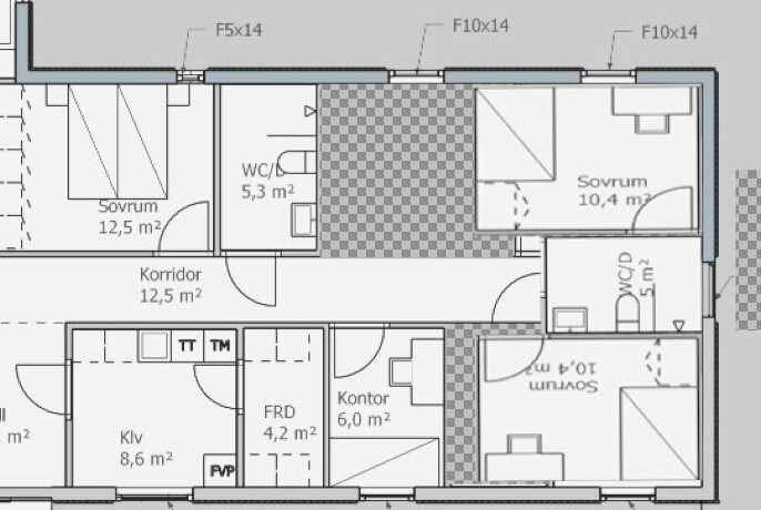
Ha i alla fall samma höjd på fönsterna. Annars ser det ut som sägs ovan att det är ritat av någon full.
Och kan också hålla med om korridoren.
Ni kommer hata den efter ett tag. Och hur många kommer få en toalettdörr i ansiktet när man går där?
Och på tal om toaletter. Dom ligger nästan precis mitt emot varandra.
Nå väl. Ni kommer få 100 förslag här men om ni berättar vad ni vill ha och har för tankar så kommer ni nog få bättre förslag?
Är det ett rum till vardera barnet och ett all/lekrum till dessa? Och ha en "barn/ungoms toa"?
Måste ingången vara där den sitter? Ingen groventré?
Men mitt snabb svar skulle vara att jag skulle lägga ett sovum i vardera "bortre" hörnet. Då slipper man några meter korridor. Dörrarna in skulle jag sätta på 45graders vinkel.
Ni vill inte ha "on-suit" badrum till det stora sovrumet?
Ser att kontoret även har en säng? Är det tänkt kombinerat med gästrum?
Och kan också hålla med om korridoren.
Ni kommer hata den efter ett tag. Och hur många kommer få en toalettdörr i ansiktet när man går där?
Och på tal om toaletter. Dom ligger nästan precis mitt emot varandra.
Nå väl. Ni kommer få 100 förslag här men om ni berättar vad ni vill ha och har för tankar så kommer ni nog få bättre förslag?
Är det ett rum till vardera barnet och ett all/lekrum till dessa? Och ha en "barn/ungoms toa"?
Måste ingången vara där den sitter? Ingen groventré?
Men mitt snabb svar skulle vara att jag skulle lägga ett sovum i vardera "bortre" hörnet. Då slipper man några meter korridor. Dörrarna in skulle jag sätta på 45graders vinkel.
Ni vill inte ha "on-suit" badrum till det stora sovrumet?
Ser att kontoret även har en säng? Är det tänkt kombinerat med gästrum?
Det är samma överkantshöjd på alla fönster.
Det vi är ute efter är en social del till vänster om entren. Detta pga tomtens utformning och solläge. Där vill vi inte att man ska känna att man sitter i köket när man är i vardagsrummet, därav den lilla utbyggnaden i vinkel.
Privat del till höger där föräldrarsovrum inte hamnar vägg i vägg med barnens del (deras sovrum och allrummet). Håller med om att det är bättre att placera barnens sovrum i vardera ände på gaveln till öster. Vi har försökt hålla siktlinje genom huset mot fönstret i änden på korridoren, men släpper vi på det så löser det många knutar. Ska skissa vidare på det så får vi se vad vi kan komma fram till.
Tvättstuga vill vi ska vara i anslutning till hallen.
On suite badrum är inget krav.
Kontoret är tänkt primärt som kontor men med möjlighet att ställa in en säng.
Det är samma överkantshöjd på alla fönster.P PappasHammare skrev:Ha i alla fall samma höjd på fönsterna. Annars ser det ut som sägs ovan att det är ritat av någon full.
Och kan också hålla med om korridoren.
Ni kommer hata den efter ett tag. Och hur många kommer få en toalettdörr i ansiktet när man går där?
Och på tal om toaletter. Dom ligger nästan precis mitt emot varandra.
Nå väl. Ni kommer få 100 förslag här men om ni berättar vad ni vill ha och har för tankar så kommer ni nog få bättre förslag?
Är det ett rum till vardera barnet och ett all/lekrum till dessa? Och ha en "barn/ungoms toa"?
Måste ingången vara där den sitter? Ingen groventré?
Men mitt snabb svar skulle vara att jag skulle lägga ett sovum i vardera "bortre" hörnet. Då slipper man några meter korridor. Dörrarna in skulle jag sätta på 45graders vinkel.
Ni vill inte ha "on-suit" badrum till det stora sovrumet?
Ser att kontoret även har en säng? Är det tänkt kombinerat med gästrum?
Det vi är ute efter är en social del till vänster om entren. Detta pga tomtens utformning och solläge. Där vill vi inte att man ska känna att man sitter i köket när man är i vardagsrummet, därav den lilla utbyggnaden i vinkel.
Privat del till höger där föräldrarsovrum inte hamnar vägg i vägg med barnens del (deras sovrum och allrummet). Håller med om att det är bättre att placera barnens sovrum i vardera ände på gaveln till öster. Vi har försökt hålla siktlinje genom huset mot fönstret i änden på korridoren, men släpper vi på det så löser det många knutar. Ska skissa vidare på det så får vi se vad vi kan komma fram till.
Tvättstuga vill vi ska vara i anslutning till hallen.
On suite badrum är inget krav.
Kontoret är tänkt primärt som kontor men med möjlighet att ställa in en säng.
Här är en snabb skiss där vi kastat om allt. Bredvid tvättstugan är förråd. Övriga rum går nog att lista ut.
Korridorskänslan försvann alla fall. Sovrummen i ändan går nog att jobba vidare med, det kanske blir bättre med 45 graders väggar till dörrarna.
Korridorskänslan försvann alla fall. Sovrummen i ändan går nog att jobba vidare med, det kanske blir bättre med 45 graders väggar till dörrarna.
Karrock
Renoverare
· Västra Götaland
· 885 inlägg
Karrock
Renoverare
- Västra Götaland
- 885 inlägg
Hur ser det ut om du byter förråd och wc dvs närmare till toa från ert sovrum och vattendragningar mer koncentrerat.I ixob skrev:
Ev även frd mellan barnsovrummen istället, så kan korridorkänsla ev minska mer, och det blir ljuddämpande neutral mark mellan alla sovrum.
Badrummet är 1,75 brett och ett förråd med den bredden med ingång från kortsidan blir svårt att använda känner vi.Karrock skrev:
Frd mellan barnrummen får jag inte ihop ingångar till rummen på med bredden av huset.
Tanken med möbleringen är att möjliggöra plats för tv i sovrummet på korridorsväggen. Det finns plats att vrida sängen och. Rummet är cirka 3200 mm djupt och 4100 mm brett. Blir lite smalt på sidorna av sängen. Har svårt att göra rummet djupare utan att huset ska växa.K Kane skrev:
Vi vill inte att det ska vara ett L hus där alla sociala ytor blir ett enda stort långt rum, så vinkeln är medvetet gjort. Storleken är inte fryst, men det har redan växt mer än vi ursprungligen ville...
Jag hade tagit fram mina skisser som du gjort, sen bokat in några timmar med en arkitekt.
Gärna med ett platsbesök på tomten också.
Även om du/ni vill rita själva kan man få otroligt viktiga inspel i sin planering av ett proffs.
Detta är något jag kan ångra när vi byggde hus, att vi inte la dessa timmar och ett platsbesök. Nu får man leva med att vissa saker inte är optimala
Gärna med ett platsbesök på tomten också.
Även om du/ni vill rita själva kan man få otroligt viktiga inspel i sin planering av ett proffs.
Detta är något jag kan ångra när vi byggde hus, att vi inte la dessa timmar och ett platsbesök. Nu får man leva med att vissa saker inte är optimala
En tanke på spåret att korta ner hallen en del, har nu bara klippt och klistrat lite snabbt för att visualisera det hela. Dörrar och fönster är inte med och mått är skeva men det kanske är ett sett att väcka en tanke.
Inloggade ser högupplösta bilder
Logga in
Skapa konto
Gratis och tar endast 30 sekunder
Hade du kunnat förstora upp Situationsplanen lite mer och visa ev utblickar och liknande ni vill ta vara på?I ixob skrev:Hej!
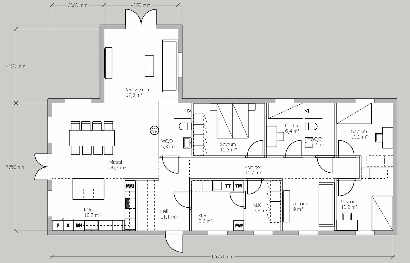
Vi ska bygga hus och har ritat upp ett eget förslag på hus utifrån tomtens förutsättningar.
Vi tar tacksamt emot feedback från alla!
Några ingångsvärden har varit:
- tomten angränsar i NV och NÖ mot skog, SÖ mot granne, SV mot grusväg och granne på andra sidan vägen
- vi vill ha 1 plan med 3 sovrum, allrum, kontor/gästrum
- mycket förvaring
-separera sociala ytor och privata ytor samt barn och föräldrarum
- ha uppsikt åt SV, NV och NÖ på tomten från sociala ytorna
- avskilja vardagsrum något från kök men ändå ha öppet
- utsikten finns främst mot NV
- tomten kommer främst användas väster och norr om huset till lek och spring
- direkt åtkomst till tvättstuga från hall
Bifogar en ritning på huset samt huset utplacerat på tomten.
Jag säger så här: korridor funkar om man sätter ett stort fönster där så man får en utblick och något man "vill" gå emot. Detta är en klassisk arkitektregel, att man har något som lockar en framåt och upptäcka mera. Det blir inte så instängt heller. Dessutom har du möjligheten att ha ett stort/litet fönster mellan matbord och kök som också drar blicken.I ixob skrev:
Ja, det var så vi tänkte i det ursprungliga förslaget. Ett stort fönster änden av korridoren och en stor parfönsterdörr vid köket.FreQa skrev:
Jag säger så här: korridor funkar om man sätter ett stort fönster där så man får en utblick och något man "vill" gå emot. Detta är en klassisk arkitektregel, att man har något som lockar en framåt och upptäcka mera. Det blir inte så instängt heller. Dessutom har du möjligheten att ha ett stort/litet fönster mellan matbord och kök som också drar blicken.
Här är det nya förslaget lite mer genomarbetat. Vi ska jobba vidare med fönstersättningen i vissa rum och köket ska vi ev disponera om.
I ärlighetens namn tyckte jag första förslaget var bättre, lite baserat på det som freQa är inne på med siktlinjen.I ixob skrev:
Med det nya förslaget blir förvisso korridoren någon meter kortare, å andra sidan möts man av en vägg istället för en utblick.
Gällande köket så hade jag övervägt att ha en halvö istället. Köksö är förvisso trevligt, men det är tar mycket yta. Med en halvö och bänkskiva under fönstret så får ni gott om arbetsyta. Om ni då även har kyl/frys/ugn mot ytterväggen så kan ni få till en riktigt bra arbetstriangel, och vill man ha barstolar el liknande så är det i sig inget bekymmer.
Och mitt sista inlägg skrevs i viss hast, där jag missade att ni hade skrivit ut på första sidan vilka förhållanden som var runtomkring
Bra idé, jag försökte med det men fick inte till vettiga mått på sovrummen utan att bredda huset.Purre skrev:


