9 286 läst ·
68 svar
9k läst
68 svar
Få plats med tre barn och mig i lägenhet -Tips önskas
Jag hade lätt köpt en snygg bäddsoffa och haft som vardagsrumssoffa istället för att göra lägenheten ännu mindre med fler rum. Hur viktigt är sovrummet som ensamstående vuxen? Personligen sover jag bara där och tillverkar klädhögar. Jag hade lagt pengarna på att sätta in ett överljusfönster i rummet utan dagsljus istället. Och ett ventilationsdon om det inte finns. Det är ett minimumkrav för en god boendemiljö.
I andra hand hade jag avdelat vardagsrummet och en säng med något icke-permanent. En skärm, draperi eller bokhylla.
I andra hand hade jag avdelat vardagsrummet och en säng med något icke-permanent. En skärm, draperi eller bokhylla.
Inloggade ser högupplösta bilder
Logga in
Skapa konto
Gratis och tar endast 30 sekunder
Här kommer lite fler skisser!
Värt ändå att ha ett eget stort sovrum avskilt och försöka ha kvar ett så stort vardagsrum och matplats som möjligt. Bättre med mindre sovrum då och stora gemensamma ytor att umgås på.
Första varianten är la sådär.. lite tråkigt med ingång från köket, men då kan du samtidigt ha dörren öppen och få ljus in i köket.
Andra varianten är helt okej.. det blir ganska små rum, men det är ju små människor som ska bo där.
Tredje variant är minst jobb och kanske även bäst. Sovrum 2+3 blir får delas men har egen balkong. Du kan ju söka lite pinterest finns många fina exempel på dubbelrum.
Fjärde varianten är lite galen men hade kunnat bli häftig.
Skalan på bilden var lite off så finns stor risk att rummen har andra mått än vad jag tror..
Jag har samma dilemma som du TS, men då 2 barn på halvtid i en 3a.
Mina ungar är dock mindre. Jag gör så att barnen har varsitt rum och jag har en säng i ena hörnet i vardagsrummet.
Men jag kommer renovera köket inom 1-2år och då gör jag så att jag bygger upp köket utmed ena väggen i vardagsrummet och får kombinerat kök / vardagsrum, samt ett extra sovrum till mig själv där köket är idag.
Flera som gjort på det viset i föreningen. Generellt verkar det inte vara ett helt ovanligt koncept.
Mindre lägenheter och kompakta "kvadratsmarta" boenden är nog något som bara kommer bli vanligare framöver. Priserna på boende har ju sprungit ifrån inkomsterna så pass att väldigt många får stora utmaningar att dra runt ett boende med 3-4 sovrum på sin egen inkomst, då blir dessa lite "special" planlösningarna lite hetare??....
Mina ungar är dock mindre. Jag gör så att barnen har varsitt rum och jag har en säng i ena hörnet i vardagsrummet.
Men jag kommer renovera köket inom 1-2år och då gör jag så att jag bygger upp köket utmed ena väggen i vardagsrummet och får kombinerat kök / vardagsrum, samt ett extra sovrum till mig själv där köket är idag.
Flera som gjort på det viset i föreningen. Generellt verkar det inte vara ett helt ovanligt koncept.
Mindre lägenheter och kompakta "kvadratsmarta" boenden är nog något som bara kommer bli vanligare framöver. Priserna på boende har ju sprungit ifrån inkomsterna så pass att väldigt många får stora utmaningar att dra runt ett boende med 3-4 sovrum på sin egen inkomst, då blir dessa lite "special" planlösningarna lite hetare??....
Vad gäller genomgångs rum så är det väl enklast om modern ifråga tar det rummet om det blir något. Som ensamstående hinner man ju ändå inte lägga sig före barnen eller sova längre.
Enklast är väl om dottern har rummet innanför då jag iaf uppfattat det som att söner är mer känsliga för att råka se mamma byta om än vad döttrarna är
Enklast är väl om dottern har rummet innanför då jag iaf uppfattat det som att söner är mer känsliga för att råka se mamma byta om än vad döttrarna är
Ja, men det där var ju ingen dum idé! Att jag inte tänkt på det tidigare...G Genomklok skrev:
Ska direkt måtta upp för detta och se om det kan fungera. Tack!
Haha!V Vildparti skrev:Vad gäller genomgångs rum så är det väl enklast om modern ifråga tar det rummet om det blir något. Som ensamstående hinner man ju ändå inte lägga sig före barnen eller sova längre.
Enklast är väl om dottern har rummet innanför då jag iaf uppfattat det som att söner är mer känsliga för att råka se mamma byta om än vad döttrarna är
Precis så är det med grabbarna. Gick typ från en dag till en annan
Så ja, blir det genomgångsrum för min del gör det mig ingenting. Som vuxen "hänger" jag ju inte på mitt rum som barnen gör. Så det är helt rätt tänkt.
ylven skrev:
Ja, jag funderade på en sådan lösning. Hade en snickare här och fick offert på det. Då räknade han med att sätta in fönster i ovankant till extrarummet, riva garderoberna och måla osv. Men det skulle landa på dryga 40 000 kr. Man kan köpa rätt schyssta möbler och göra roliga saker för så mycket pengar. Isf så försöker jag nog göra en del själv. Tyvärr tappar man en del yta på den långsmala "korridoren som blir. Den är väl svår att nyttja till något? Men jag testa att rita upp detta i ett program igen, för att se hur det blir. Tack för ditt tips!H Hajjen skrev:
Kul att du såg den här lösningen! Det var också något jag tänkte på i början och som jag diskuterade med en snickare. Dock trodde han att det skulle bli ännu mer jobb (dyrare) än den andra lösningen som han sen lämnade offert på. Offerten landade på dryga 40 000. Jag har inte bett om offert för denna lösning. Men med hjälp av lite vänner kanske det är något jag skulle kunna lösa utan snickare.Kire87 skrev:
Ni har helt rätt! Självklart är det en trea, där man satt upp en extra vägg för att få ett extrarum. Jag som hade lite otur när jag tänkte.Ola C skrev:
Ja jag har läst o kollat på planlösningen flera gånger o får inte heller ihop det. 3 sovrum + vardagsrum + kök får jag också till en 3a omgjord till en 4a. Eller "sov 2" finns inte idag?
Till trådskaparen: vet inte hur mycket privacy du själv behöver men då min nuvarande sambo o hennes son bodde i en tvåa gjorde vi en sovhörna i vardagsrummet till henne, med gardiner på skena i taket. Sängen funkade lite som soffa nummer två på dagen o drogs gardinerna bort kändes det rätt öppet o inte alltför märkligt att någon bodde i vardagsrummet.
En lösning med gardin i vardagsrum är definitivt en löning som står högt upp på listan. Det är enklast och billigast och jag behöver verkligen inget eget rum. Men det som jag hänger upp mig på då är att det blir väldigt stora skillnader i storlek på de tre sovrummen för barnen.
Tack så hemskt för dina förslag och skisser!! Det där med att vända vardagsrummet var verkligen något jag inte tänkt på. Kreativt av dig! Jag ska kika lit mer på det här och testa det med exakta mått. Tack!!M Maacka skrev:[bild]
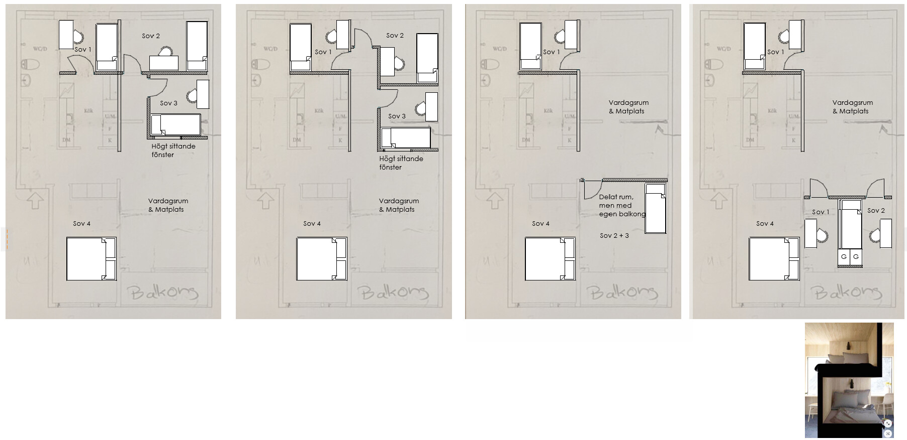
Här kommer lite fler skisser!
Värt ändå att ha ett eget stort sovrum avskilt och försöka ha kvar ett så stort vardagsrum och matplats som möjligt. Bättre med mindre sovrum då och stora gemensamma ytor att umgås på.
Första varianten är la sådär.. lite tråkigt med ingång från köket, men då kan du samtidigt ha dörren öppen och få ljus in i köket.
Andra varianten är helt okej.. det blir ganska små rum, men det är ju små människor som ska bo där.Sovrum 3 kan ha ett högt sittande fönster mot vardagsrummet så får det indirekt ljus. Något man kan ta med sig till de andra skisserna vi sett också.
Tredje variant är minst jobb och kanske även bäst. Sovrum 2+3 blir får delas men har egen balkong. Du kan ju söka lite pinterest finns många fina exempel på dubbelrum.
Fjärde varianten är lite galen men hade kunnat bli häftig.
Skalan på bilden var lite off så finns stor risk att rummen har andra mått än vad jag tror..

