9 779 läst ·
40 svar
10k läst
40 svar
Designa takstolar med lång spännvid, en riktig utmaning.
Inte riktigt, jag misstolkade ett mått, och det är måttet från 3250 från fasad till karm, ska var 2190. fönstrena ska vara centrerade, och den långa delen hamnar då till höger utifrån denna vyn.T Takstolsnissen skrev:
Självbyggare
· Arvika
· 1 527 inlägg
Jag räknade lite snabbt på ett sådant alternativ och det blir väldigt tätt med reglar med limträ alt. Kerto. Som jag nämnde lite längre upp skulle man kunna lägga två par balkar tvärs garaget På vardera sida om nock och då kunna använda konstruktionsvirke som takreglar. Dock skulle jag föreslå att de två balkarna är i stål då limträalternativet gav stora dimensioner.?S Samwest skrev:
Skulle jag göra detta själv skulle jag göra enl denna princip:
Takstolar enl. snittet
Om det är så ni vill ha takstolen, tänker mest på utsticket och takfotshöjd, även vilken höjd det blir på stomme och önskad öppning på garageporten. H-Balken kommer ju bli ganska ordentlig med den spännvidden.
Sen är det stora problemet snöifckan som blir här, det ger ju stora extra snölastera som måste tas hand om.
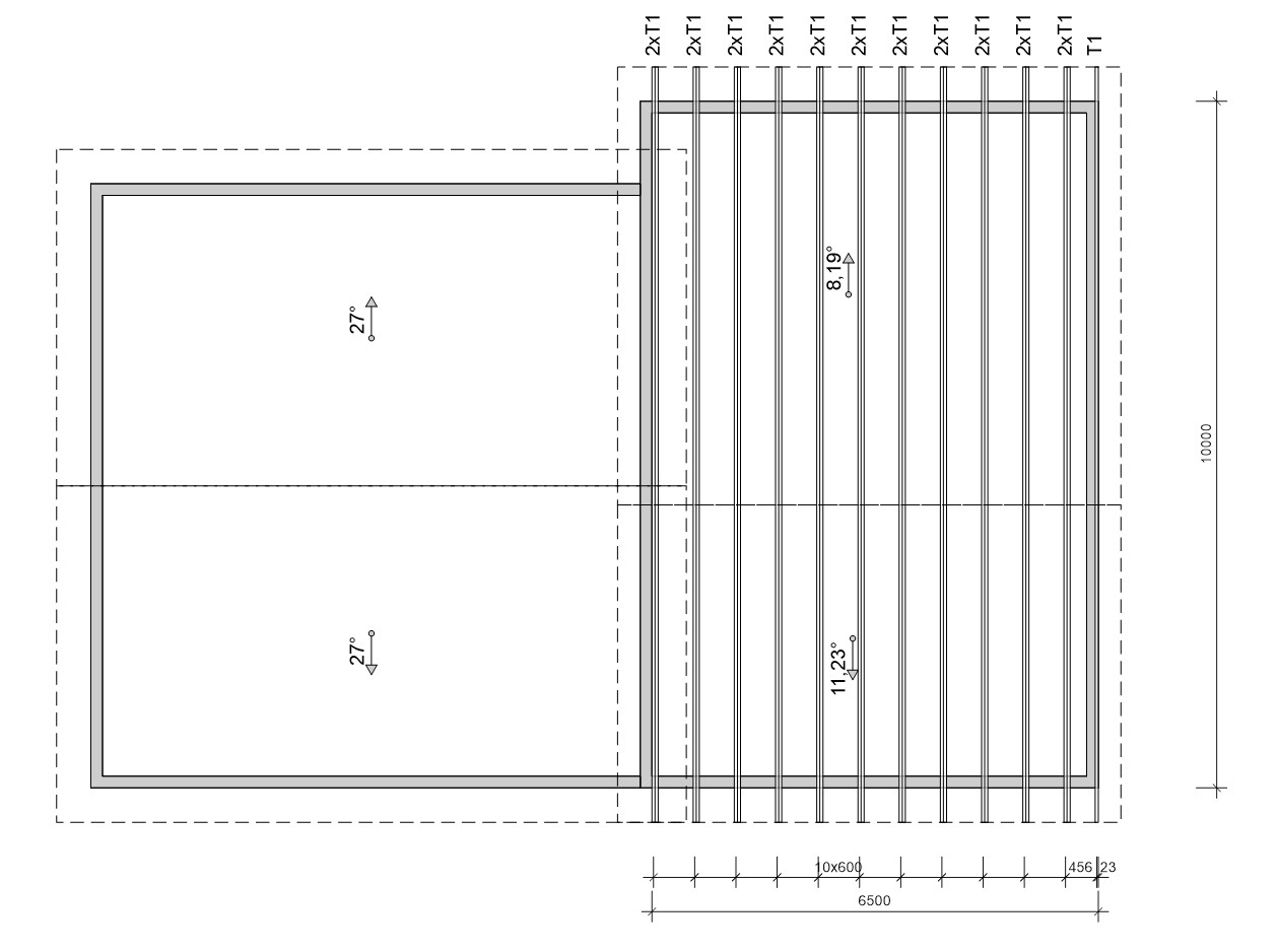
Vilket medför att vi får dubbla takstolar på ca c/c 600 (snabbt dimensionerat):
För att inte få så tätt mellan takstolarna så måste man höja takfotshöjden, ganska ordentligt.
Alternativt om det ska till en innervägg eller att man kan lägga in en balk med en pelare i centrum.
Takstolar enl. snittet
Om det är så ni vill ha takstolen, tänker mest på utsticket och takfotshöjd, även vilken höjd det blir på stomme och önskad öppning på garageporten. H-Balken kommer ju bli ganska ordentlig med den spännvidden.
Inloggade ser högupplösta bilder
Logga in
Skapa konto
Gratis och tar endast 30 sekunder
Sen är det stora problemet snöifckan som blir här, det ger ju stora extra snölastera som måste tas hand om.
Vilket medför att vi får dubbla takstolar på ca c/c 600 (snabbt dimensionerat):
Inloggade ser högupplösta bilder
Logga in
Skapa konto
Gratis och tar endast 30 sekunder
För att inte få så tätt mellan takstolarna så måste man höja takfotshöjden, ganska ordentligt.
Alternativt om det ska till en innervägg eller att man kan lägga in en balk med en pelare i centrum.
Självbyggare
· Arvika
· 1 527 inlägg
Inlägg #29, Nockbalk i limträ/stål med takreglar av konstruktionsvirke alt limträ/kerto. Bygger lite och luftningen av taket är lätt att få till. Detta hade jag kört på.
Nej inte alls, då limträbalkarna blir galet dyra också. Det var bara att taklutningen blev så låg och nu med den nya principen så har vi fått till taklutningen samt högre inner tak, samt så kan jag använda tegelpannor.T Takstolsnissen skrev:
Ja detta låter bra om det går att få till, men har lekt lite i något dimensioneringsverktyg men får inte till detta.B bossespecial skrev:
Klicka här för att svara
Liknande trådar
-
Isolera vind med långt mellan takstolarna
Byggnadsvård -
Takstolar och kalvande yttervägg på skånelänga.
Byggmaterial & Byggteknik -
Parallell vägg längs takstolar - Bärande?
Byggmaterial & Byggteknik -
Förlängning av sneda takstolar
Tak & Vind -
Takstolar cc 1200 går inte jämt upp med husets längd
Lösvirke & Timmerhus

