497 läst ·
18 svar
497 läst
18 svar
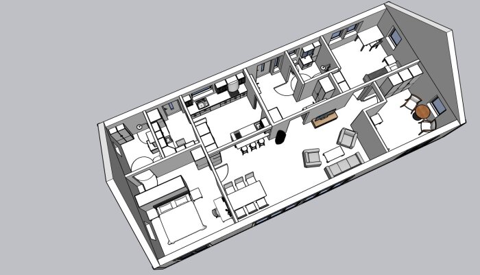
Planlösning på skissnivå – vad hade du ändrat? Kloka idéer sökes!
J Jan_G skrev:
Smart! Det blir inte mycket större yta med stor skillnad i värde!J Jan_G skrev:
👍J Jan_G skrev:
Den har vi funderat en del kring. Vi uppskattar att få dagsljus i badrummet och vi har planer på att göra hål i väggen mellan vardagsrum och klädkammare för att inte behöva ha sladdar och jox i vardagsrummet. Men det kanske finns andra sätt att lösa den pucken, ett "fack" i väggen med eluttag tillexempel. Vi får kika på det! Blöta strumpor och grusigt hus är ju inte någon höjdare direkt.J Jan_G skrev:
Tack för att du tog dig tid att svara!
Folk prioriterar olika, ett annat perspektiv på saken:S Snöst skrev:
Material som i ytskikt, fast inredning (kök, badrum mm) slits så det är ingen investering utan en driftskostnad som kan och kommer behövas bytas ut senare även om bättre material håller något längre.
Däremot är det väldigt dyrt att bygga ut huset senare eller ändra sånt som är dolt inne i väggar som teknisk infrastruktur och väggkonstruktion som ger lägre driftskostnader och bättre komfort.
Därför gjorde vi precis tvärtom med vårt husbygge och körde enkla materialval i form av hustillverkarens standard eller köpte enklare material själva när hustillverkarens inte var värt pengarna (ikea-garderober istället för hustillverkarens lyxmärken tex), men byggde större hus som var mer avancerat i form av vägg-konstruktion, och räknade med att byta ut ytmaterial med tiden för att på så vis skjuta på kostnaden och inte ta hela ekonomiska smällen på en gång och totalt få mer för pengarna på sikt jämfört med att ändra på svårare saker senare, så husbygget blev som ett väldigt stort marshmallow-test 😁
BirgitS
Medlem
· Stockholms län
· 46 155 inlägg
BirgitS
Medlem
- Stockholms län
- 46 155 inlägg
Jag kan ju inte alla sådana regler utantill utan du får jämföra själv med det här dokumentet:S Snöst skrev:Du har rätt angående tillgänglighetsanpassningen. Toaletten och handfatet behöver byta plats i badrummet vid master bedroom, det hade jag missat. Om vi väljer att ha WC istället för badrum vid sovrummet så behöver badrummet i hallen bli större. Jag har inte full koll på reglerna där så om du ser något annat vi missat får du gärna hojta till!![]()
https://www.nacka.se/497ec2/globala...iktlinjer/tillganglighet-och-anvandbarhet.pdf
Nu är det många år sen det skrevs och med årets ändringar av PBL finns det egentligen inga bestämda regler. Men om ni inte följer det som står i dokumentet måste ni själva kunna visa att de grundläggande kraven, t.ex. att huset går att använda av en som sitter i rullstol, är uppfyllda med era lösningar.
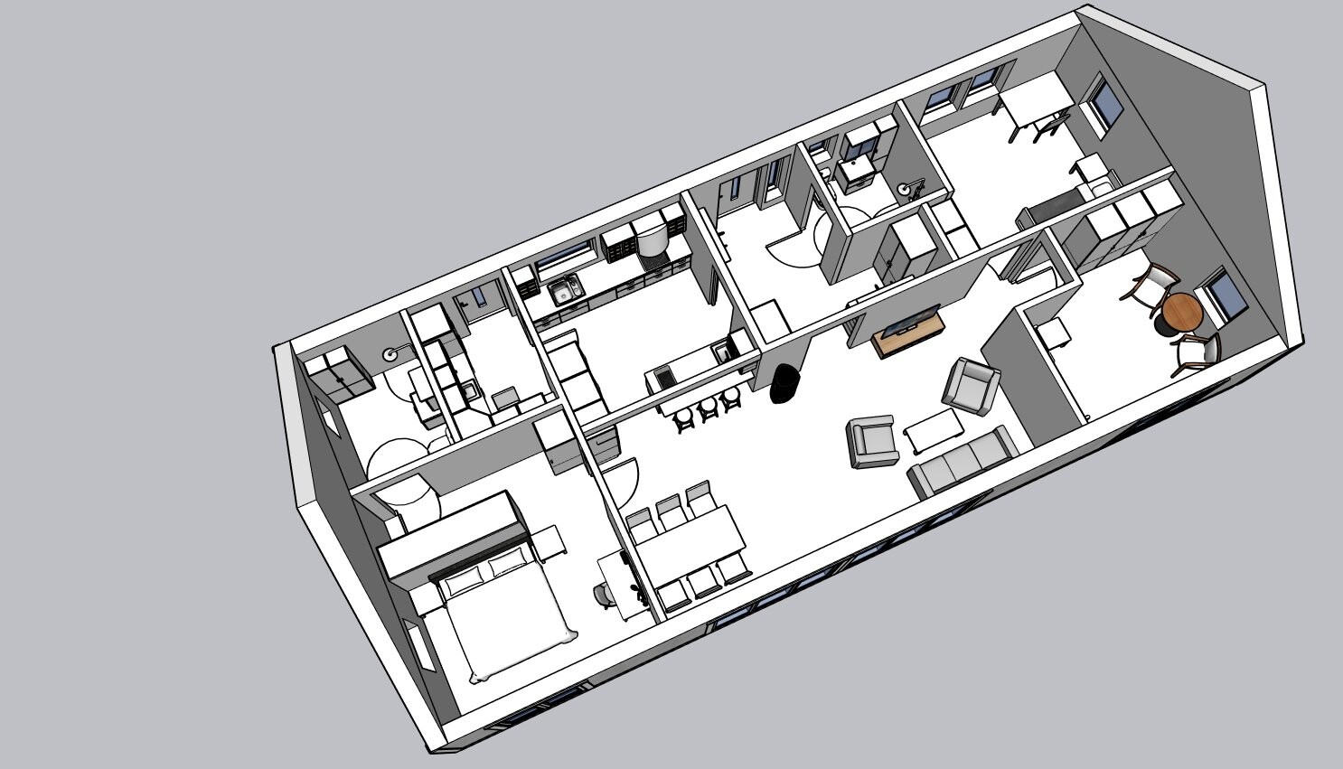
Här är nåt liknande fast mindre.
Klicka här för att svara




