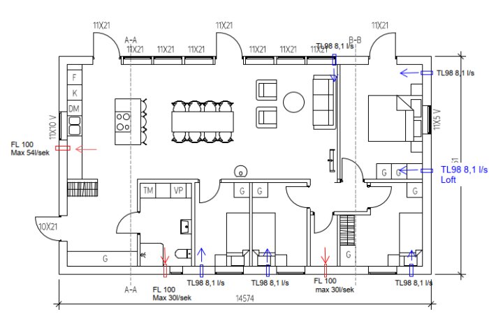
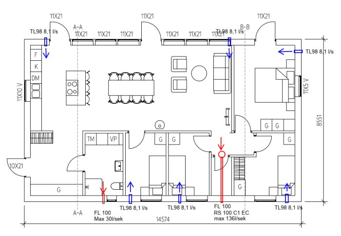
Hitta bilder och videor på ventilationsritning. En samling av bilder och videor som laddats upp av användare med hashtaggen #ventilationsritning på Byggahus.
Hitta bilder och videor på ventilationsritning. En samling av bilder och videor som laddats upp av användare med hashtaggen #ventilationsritning på Byggahus.
Vi vill skicka notiser för ämnen du bevakar och händelser som berör dig.