26 717 läst ·
169 svar
27k läst
169 svar
Planlösningar vi gillar
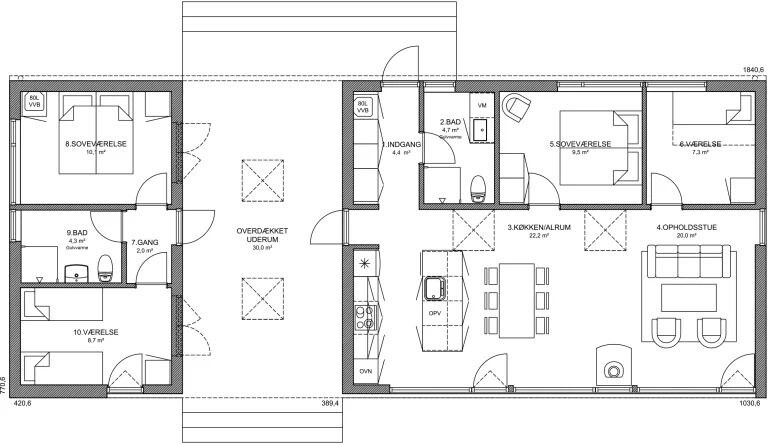
Hej! Vi skissar på ett eget förslag på 1 planshus. 150 kvm.
Viktigt för oss är 3 sovrum, arbetsrum och allrum. Viktigt också att kök och vardagsrum hamnar i ena änden med fönster i tre väderstreck pga tomtens utformning. Kök och vardagsrum får inte upplevas som ett enda stort rum, därav den lilla utbyggnaden.
Gillar dock inte att lilla badrummet hamnar mitt i den sociala ytan. Nån som har några idéer?
Blått är dörrar, rött är fönster.
Viktigt för oss är 3 sovrum, arbetsrum och allrum. Viktigt också att kök och vardagsrum hamnar i ena änden med fönster i tre väderstreck pga tomtens utformning. Kök och vardagsrum får inte upplevas som ett enda stort rum, därav den lilla utbyggnaden.
Gillar dock inte att lilla badrummet hamnar mitt i den sociala ytan. Nån som har några idéer?
Blått är dörrar, rött är fönster.
Om ingång till lilla badrummet är mot tvättstugan kommer det inte upplevas som att den är mitt i sociala ytorna. Stora badrummet hade jag bytt plats med arbetsrummet pga vill inte ha badrum vägg i vägg med sovrum pga ljud på natten. Hur är väderstrecken?I ixob skrev:Hej! Vi skissar på ett eget förslag på 1 planshus. 150 kvm.
Viktigt för oss är 3 sovrum, arbetsrum och allrum. Viktigt också att kök och vardagsrum hamnar i ena änden med fönster i tre väderstreck pga tomtens utformning. Kök och vardagsrum får inte upplevas som ett enda stort rum, därav den lilla utbyggnaden.
Gillar dock inte att lilla badrummet hamnar mitt i den sociala ytan. Nån som har några idéer?
Blått är dörrar, rött är fönster.
Ingång till sovrum från v-rum kommer att försvåra möblering och utnyttjande av v-rummet. Bättre att placera ingången i hallen som då kommer att bli ljusare eftersom det blir ytterligare en dörröppning som vid öppen dörr ger hallen ljus.
Ser nu också att ingången till det sovrummet var från v rum, håller med om att den borde flyttas till hall + hade haft ingång till stora badrummet också från hall och istället möjligen haft lilla badrummet i anslutning till sovrummet. Om stora badrummet är från ett sovrum kommer där bli ett jäkla rännande från barn som vill bada etc och det lilla badrummet är alldeles för litet för ett familjebadrum.L lillanutten skrev:
Ser bra ut, men personligen har jag svårt för när finingång och grovingång är på samma gavel, känns lite obalanserat på nåt vis, som om man som gäst inte vet var man går in. Men beror ju på hur huset ska se ut med fasad, stil och verandor osv. Ska ni ha kamin? Vad sägs om såhär?I ixob skrev:Hej! Vi skissar på ett eget förslag på 1 planshus. 150 kvm.
Viktigt för oss är 3 sovrum, arbetsrum och allrum. Viktigt också att kök och vardagsrum hamnar i ena änden med fönster i tre väderstreck pga tomtens utformning. Kök och vardagsrum får inte upplevas som ett enda stort rum, därav den lilla utbyggnaden.
Gillar dock inte att lilla badrummet hamnar mitt i den sociala ytan. Nån som har några idéer?
Blått är dörrar, rött är fönster.
Inloggade ser högupplösta bilder
Logga in
Skapa konto
Gratis och tar endast 30 sekunder
Tack för alla kommentarer.
Tomten/gräsmattan är huvudsakligen väst och norr om huset. Norr om huset är det fri utsikt mot skog. Öster om huset är det skog. Väster om huset är gräsmatta och gata. Söder om huset är grannhus och uppfart/ingång.
- "Barnens" avdelning i östra delen av huset är avskiljd och vi har fri sikt genom huset dit med ett fönster som förhoppningsvis ramar in en fin vy av skogen.
- Föräldrasovrummet avgränsas mot barnens del via ett kontor/gästrum.
- Vardagsrummet är lite förskjutet från resten för att skapa lite distans från köket, men ändå ha det öppet.
- Vi är lite osäkra på fönsterplaceringarna, men det här är ett utkast.
- Vi har minskat på korridorslängden genom att avsluta korridoren med ett allrum i ena änden.
Vi tar tacksamt emot mer feedback! 😀
Tack för feedback. Vi kommer kanske skippa grovingången utifrån, men förstår vad du menar. Ja, vi ska ha kamin. Vi har jobbat om lite grann nu, se nytt förslag. Nu är det 156 kvm.HOBBY ARCHITECT skrev:
Tomten/gräsmattan är huvudsakligen väst och norr om huset. Norr om huset är det fri utsikt mot skog. Öster om huset är det skog. Väster om huset är gräsmatta och gata. Söder om huset är grannhus och uppfart/ingång.
- "Barnens" avdelning i östra delen av huset är avskiljd och vi har fri sikt genom huset dit med ett fönster som förhoppningsvis ramar in en fin vy av skogen.
- Föräldrasovrummet avgränsas mot barnens del via ett kontor/gästrum.
- Vardagsrummet är lite förskjutet från resten för att skapa lite distans från köket, men ändå ha det öppet.
- Vi är lite osäkra på fönsterplaceringarna, men det här är ett utkast.
- Vi har minskat på korridorslängden genom att avsluta korridoren med ett allrum i ena änden.
Vi tar tacksamt emot mer feedback! 😀
Redigerat:











