4 938 läst ·
22 svar
5k läst
22 svar
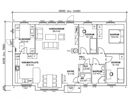
Planlösning till nybygge.
Skrev jättelångt inlägg som försvann så jag skriver kanske om det från datorn imorgon.
Men lägg inga pengar på att köpa sis googla tillgänglighetskrav guide umeå så hittar du en jättefin guide. Det är inte heller så att du får avslag för att du inte uppfyllt kraven utan de kommer att låta dig komplettera.
Det är dock viktigt att du lämnar in ett genomtänkt förslag! Lämnar du in det du postade här skulle du kanske inte få chans att komplettera.
Vi var säkert totalt tre-fyra timmar vid ett tiotal tillfällen och fick gratis rådgivning av kommunens stadsarkitekt innan vi lämnade in. De två första gångerna tryckte de en gratis kopia av sis tillgänglighetskrav i näven på oss när vi skulle gå. När det väl var inlämnat fick vi ändå komplettera eftersom det var oklart om ett utrymme var en garderob eller korridor :/
Men lägg inga pengar på att köpa sis googla tillgänglighetskrav guide umeå så hittar du en jättefin guide. Det är inte heller så att du får avslag för att du inte uppfyllt kraven utan de kommer att låta dig komplettera.
Det är dock viktigt att du lämnar in ett genomtänkt förslag! Lämnar du in det du postade här skulle du kanske inte få chans att komplettera.
Vi var säkert totalt tre-fyra timmar vid ett tiotal tillfällen och fick gratis rådgivning av kommunens stadsarkitekt innan vi lämnade in. De två första gångerna tryckte de en gratis kopia av sis tillgänglighetskrav i näven på oss när vi skulle gå. När det väl var inlämnat fick vi ändå komplettera eftersom det var oklart om ett utrymme var en garderob eller korridor :/
Jag har själv försökt, och eftersom jag försökte göra det på en budget genom att hålla kvm nere så misslyckades jag.
Ge inte upp om du inte har några sådana hinder, man lär sig åtminstone massor om tillgänglighet, behov osv genom att läsa på och fundera och vrida och vända på allt.
Tyvärr kan jag inte ge någon som helst positiv kritik på din planlösning då jag inte finner den tilltalande överhuvudtaget. Som KnockOnWood säger så utgå hellre från en eller flera befintliga planlösningar som ni finslipar utifrån egna behov.
Behöver du ett stort utbud av planlösningar så kan jag tipsa dig om skidstahus.se där dom har en databas med alla planlösningar som kunder gjort själva och byggt med hustillverkaren.
Ge inte upp om du inte har några sådana hinder, man lär sig åtminstone massor om tillgänglighet, behov osv genom att läsa på och fundera och vrida och vända på allt.
Tyvärr kan jag inte ge någon som helst positiv kritik på din planlösning då jag inte finner den tilltalande överhuvudtaget. Som KnockOnWood säger så utgå hellre från en eller flera befintliga planlösningar som ni finslipar utifrån egna behov.
Behöver du ett stort utbud av planlösningar så kan jag tipsa dig om skidstahus.se där dom har en databas med alla planlösningar som kunder gjort själva och byggt med hustillverkaren.
Ett tips om du hittar ett "kataloghus" som är ok. Boka tid med tillverkaren och sitt ner tillsammans och gå igenom vad ni vill ändra på. De flesta tillverkare gör ändringar/anpassningar, och de kan också komma med tips och visa hur andra ändrat.
Jag får tacka för alla svar som fått mig att inse att det inte varit så genomtänkt som jag först trodde. Så den här åker i papperskorgen och jag får ta nya tag nästa vecka.
Jag återkommer om jag har fler funderingar.
//Daniel
Jag återkommer om jag har fler funderingar.
//Daniel
Grundstött
· Halland
· 28 348 inlägg
Ja, mycket funderande blir det nogom alla skall få sina synpunkter tillfredsställda
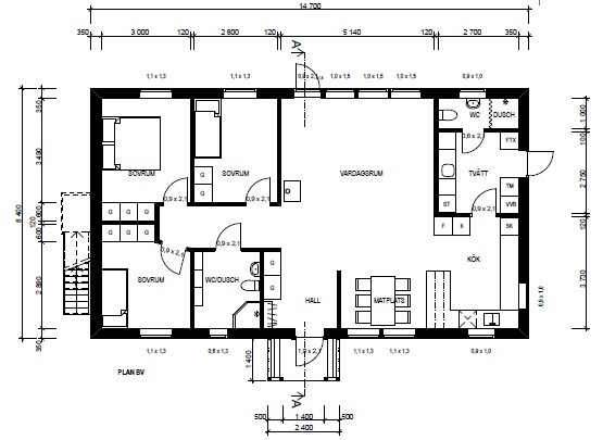
Jag skall som ett exempel visa hur vi gjorde när vi "ritade" vårt hus:
På utställningen Husknuten i Västra Frölunda, Göteborg tittade vi in i ett hus från Ekeforshus.
Det såg trevligt ut, men var för stort för oss två gamlingar.
Men vi tog med oss en katalog och tyckte att deras modell "Ekonomen 114" var nära idealet,
både i storlek och planlösning.
Så med utgångspunkt därifrån skissade vi upp "P&K 108".
Och med lite hjälp från en arkitekt i släkten och en duktig byggare fick vi vårt idealhus
Ekonomen 114:
Och P&K 108, som alltså är spegelvänd för att passa tomten bättre:
Och för en nybörjare när det gäller husritande var det fantastiskt roligt att gå igenom denna verkligen kreativa process!
Jag skall som ett exempel visa hur vi gjorde när vi "ritade" vårt hus:
På utställningen Husknuten i Västra Frölunda, Göteborg tittade vi in i ett hus från Ekeforshus.
Det såg trevligt ut, men var för stort för oss två gamlingar.
Men vi tog med oss en katalog och tyckte att deras modell "Ekonomen 114" var nära idealet,
både i storlek och planlösning.
Så med utgångspunkt därifrån skissade vi upp "P&K 108".
Och med lite hjälp från en arkitekt i släkten och en duktig byggare fick vi vårt idealhus
Ekonomen 114:
Inloggade ser högupplösta bilder
Logga in
Skapa konto
Gratis och tar endast 30 sekunder
Och P&K 108, som alltså är spegelvänd för att passa tomten bättre:
Inloggade ser högupplösta bilder
Logga in
Skapa konto
Gratis och tar endast 30 sekunder
Och för en nybörjare när det gäller husritande var det fantastiskt roligt att gå igenom denna verkligen kreativa process!
Avslag får man inte utan det är somdu säger att man får komplettera, men detta innebär att kommunens tjänsteman får titta igenom ändringen varje gång och detta tar dom betalt för.Kallebo skrev:Skrev jättelångt inlägg som försvann så jag skriver kanske om det från datorn imorgon.
Men lägg inga pengar på att köpa sis googla tillgänglighetskrav guide umeå så hittar du en jättefin guide. Det är inte heller så att du får avslag för att du inte uppfyllt kraven utan de kommer att låta dig komplettera.
Det är dock viktigt att du lämnar in ett genomtänkt förslag! Lämnar du in det du postade här skulle du kanske inte få chans att komplettera.
Vi var säkert totalt tre-fyra timmar vid ett tiotal tillfällen och fick gratis rådgivning av kommunens stadsarkitekt innan vi lämnade in. De två första gångerna tryckte de en gratis kopia av sis tillgänglighetskrav i näven på oss när vi skulle gå. När det väl var inlämnat fick vi ändå komplettera eftersom det var oklart om ett utrymme var en garderob eller korridor :/
Angående idén att ta bort garderoben för att få mindre korridorkänsla vill jag påpeka att effekten kommer att bli precis den motsatta, en dryg meter längre och ett ljusinsläpp gör korridoren till en ännu längre tunnel.
Planlösningar i den här stilen var rätt vanliga på 60-talet, även om kök och vardagsrum då var åtskilda, och det är inte mysigt på något vis.
Planlösningar i den här stilen var rätt vanliga på 60-talet, även om kök och vardagsrum då var åtskilda, och det är inte mysigt på något vis.
Enligt vår kommun så kostar det inte något extra.
Man skickar in bygglov - kommunen begär in kompletteringar - du kompletterar - bygglov beviljas. Ingen extra kostnad är pålagd för komplettering.
Om bygglovet är beviljat och sedan vill man ändra något med en relationsändring, som kan tolkas som en komplettering kostar däremot.
Man skickar in bygglov - kommunen begär in kompletteringar - du kompletterar - bygglov beviljas. Ingen extra kostnad är pålagd för komplettering.
Om bygglovet är beviljat och sedan vill man ändra något med en relationsändring, som kan tolkas som en komplettering kostar däremot.
Klicka här för att svara
Liknande trådar
-
Stor tillbyggnad av sommarstuga - input på planlösning/funktioner
Planlösningar -
Hur göra om planlösningen för ett till sovrum.
Planlösningar -
Lamputtag i nybygge till flera fönster?
El -
Planlösning till kök i sommarstuga
Planlösningar -
Tips på planlösningen till mitt nybygge
Arkitekter, Arkitektritat & Extern design
