188 098 läst ·
226 svar
188k läst
226 svar
Övertrycksfritt system (på begäran)
Slinga för värmen är en nödlösning när man inte kan ha samma vatten i systemen. Skiktningen försämras drastiskt, så undvik det. Är det kopparslinga så använd även den till vv.Palte skrev:
Gravforsarn skrev:Laddpumpen orkar trycka 6 m så det kan bli lite tryckskillnad.Gravforsarn skrev:
I ditt fall skulle jag sätta expansion ovan tanken och isolera allt tillsammans. Då kvittar det att expansion blir varm. Enkla lösningar är ofta bäst i längden.
Hej!
Håller nu på att koppla ihop mitt system. Har lite funderingar kring bla ångblåsrör, elpatron, samt om någon ser något på min skiss som är galet.
Ångblåsröret: Som synes på skissen tänkte jag koppla expansionskärlet på kalla returstamen. Då funderar jag på ett ångblåsrör bredvid. Funkar det att göra så här? Borde bli en effektiv avluftning också? Måste detta gå ut genom yttervägg, eller kan man låta röret vända och blåsa ner i expansionskärlet tex??
Elpatron: Tänkte prova med en värmepatron på ca 6kW med inbyggd termostat, tex en Backer k200 6kw från rinkaby, och sätta i översta R50 utg i acktanken. Tror ni det blir bra?
Mvh Ved3t
Håller nu på att koppla ihop mitt system. Har lite funderingar kring bla ångblåsrör, elpatron, samt om någon ser något på min skiss som är galet.
Ångblåsröret: Som synes på skissen tänkte jag koppla expansionskärlet på kalla returstamen. Då funderar jag på ett ångblåsrör bredvid. Funkar det att göra så här? Borde bli en effektiv avluftning också? Måste detta gå ut genom yttervägg, eller kan man låta röret vända och blåsa ner i expansionskärlet tex??
Elpatron: Tänkte prova med en värmepatron på ca 6kW med inbyggd termostat, tex en Backer k200 6kw från rinkaby, och sätta i översta R50 utg i acktanken. Tror ni det blir bra?
Mvh Ved3t
Ser bra ut...
1. Dra ut blåsröret, värt besväret om det kokar av fan nån gång!
2. Höjden på blåsröret bör vara en bit över expansion ifall laddpumpen ger tryck så att det inte trycks ut vatten den vägen.
3. Anslut tappvattenautomat och shunt (2) på det horisntella röret högst upp.
4. Anslut R på shunten med ett T till returen och sen till nedre rör. Med din koppling har inte shunten nåt kallvatten att blanda med när botten på tanken blir het...
5. Se till att övre rören från tank och panna stiger mot blåsröret.
6. 6 kW patron räcker säkert att hålla huset frysfritt men är nog lite för att hålla fullvarmt när det är som kallast.
1. Dra ut blåsröret, värt besväret om det kokar av fan nån gång!
2. Höjden på blåsröret bör vara en bit över expansion ifall laddpumpen ger tryck så att det inte trycks ut vatten den vägen.
3. Anslut tappvattenautomat och shunt (2) på det horisntella röret högst upp.
4. Anslut R på shunten med ett T till returen och sen till nedre rör. Med din koppling har inte shunten nåt kallvatten att blanda med när botten på tanken blir het...
5. Se till att övre rören från tank och panna stiger mot blåsröret.
6. 6 kW patron räcker säkert att hålla huset frysfritt men är nog lite för att hålla fullvarmt när det är som kallast.
Matss skrev:Jo, men det har ju ingen betydelse om den trycker 100m, det är ju bara motståndet i rören fram till expansionen som kan orsaka att det trycks ut vatten i ång.röret. Om motståndet i de båda rören är lika så blir nivån i ångblåningsröret samma som i exp. Hoppas jag...Gravforsarn skrev:![]()
Hej igen!
Tack för att du kollat igenom skissen Matss!
En liten undring bara!
Du skrev:
3. Anslut tappvattenautomat och shunt (2) på det horisntella röret högst upp.
Varför "kan" man inte ansluta som jag tänkt, dvs ha en "framledarfördelning" en bit under horisontella röret, dvs någon halvmeter ner på det lodräta 35-röret? Är det för att det är större risk för luft eller för att undvika förluster? Tänkte nämligen försöka ha alla anslutningar i pannrummet, och det horisontella 35-röret är ovanför pannrumstaket.
5. Se till att övre rören från tank och panna stiger mot blåsröret.
Tycker du att rören ska luta mycket, eller räcker det med någon grad lutning åt rätt håll?
Tack igen //Ved3t
Tack för att du kollat igenom skissen Matss!
En liten undring bara!
Du skrev:
3. Anslut tappvattenautomat och shunt (2) på det horisntella röret högst upp.
Varför "kan" man inte ansluta som jag tänkt, dvs ha en "framledarfördelning" en bit under horisontella röret, dvs någon halvmeter ner på det lodräta 35-röret? Är det för att det är större risk för luft eller för att undvika förluster? Tänkte nämligen försöka ha alla anslutningar i pannrummet, och det horisontella 35-röret är ovanför pannrumstaket.
5. Se till att övre rören från tank och panna stiger mot blåsröret.
Tycker du att rören ska luta mycket, eller räcker det med någon grad lutning åt rätt håll?
Tack igen //Ved3t
Gravforsarn skrev:Från pumpens trycksida kommer trycket att sjunka efter röret så att trycket blir högre i pannan/ångröret än i tanken. Hur mycket vet jag inte men nivån kommer att stå högre i ångröret än i tanken. Jag har ett ökat tryck i pannan när laddpumpen går på läge två som motsvarar ett par dm vattenpelare. På läge tre nån dm till!Matss skrev:
Palte skrev:
Lyfter frågan igen.
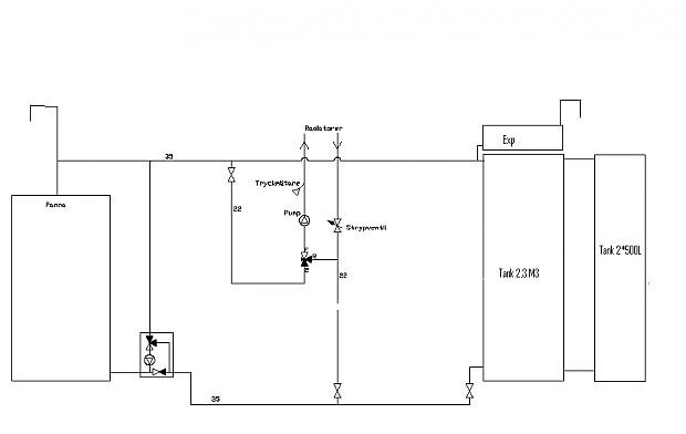
Skall alltså ha en hemmabyggd tank på 2300l + 2*500 Och måste dra tilloppet högre än jag kan ha exp. Rör mellan panna och tank ca 2,5m långt d35.
Visserligen har inte pannan kokat en enda gång på snart 2år men säkerhetsventil känns som den öppnar lite sent.
Tanken var att en backventil skulle sitta på blåsröret för att kunna placera exp. lägre än tilloppsröret. (Se på sid 2) Backventilen borde väl öppna direkt vid ev tryck?Matss skrev:
Annars blir det som på denna "ritning" med tilloppsröret på ca 150cm ovanför golvet. Inte så farligt att böja sig under när jag går in i pannrummet. Får kapa av mina 2*500l tankar lite på höjden bara.
Hur långt ovanför expkärlet bör blåsröret sitta?
Ok tror jag förstår, men tror inte på backventilen.
Ett alternativ är som du ritat men plugga blåsröret (sätt dit en säkerhetsventil), luta övre röret svagt mot tankarna. Ställ expansion på golvet och anslut till tanktoppen med grovt rör. Då blir det hävertprincipen.
Ett alternativ är som du ritat men plugga blåsröret (sätt dit en säkerhetsventil), luta övre röret svagt mot tankarna. Ställ expansion på golvet och anslut till tanktoppen med grovt rör. Då blir det hävertprincipen.
