258 440 läst ·
341 svar
258k läst
341 svar
Nybygge: Trähus i äldre stil med torn, gigantisk källare och 4m högt garage!
Jobbar vidare med bygglovshandlingar; här kommer en (pågående) fasadskiss från datorn, vad tycks?
...tornet har blivit lite smalare nu och även lite andra takvinklar bl.a.
....funderar på trappen och tror kanskse jag vill få till en tydligare "farstukvist"?
Inloggade ser högupplösta bilder
Logga in
Skapa konto
Gratis och tar endast 30 sekunder
...tornet har blivit lite smalare nu och även lite andra takvinklar bl.a.
....funderar på trappen och tror kanskse jag vill få till en tydligare "farstukvist"?
Medlem
· stockholms län
· 266 inlägg
Nu kanske jag missförstår stilen, eller det kanske skulle göra rummen innanför för mörka, men skulle man inte kunna ha en veranda från tornet och ut till vänster? Mer utrymme för snickarglädje och kanske tydligare farstukvist
Nu är det äntligen dags för en uppdatering! Nu är ritningarna klara för bygglovsansökan och nu följer lite fasader och planlösningar!
Lite "putsande" är kvar på fasaderna, lite brädor som skall ha andra bredder m.m. för att få till stilen till 100% (enligt min arkitekt som förstår sig på detta bättre). Även snickarglädje etc. är väl än så länge mest illustrativt.
Fasad mot "vägen":
Från ena sidan:
Mot baksida/trädgård:
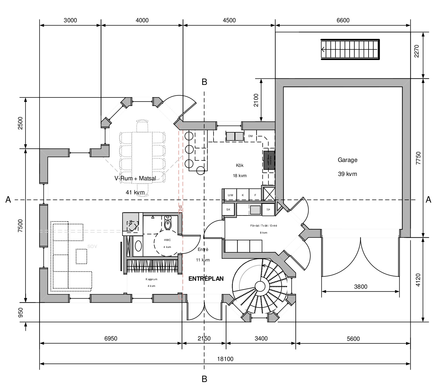
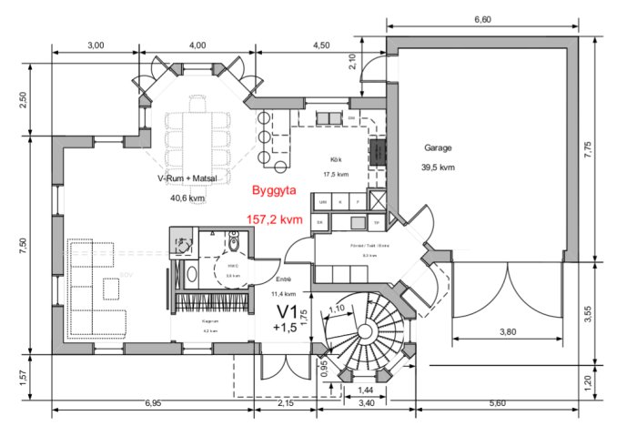
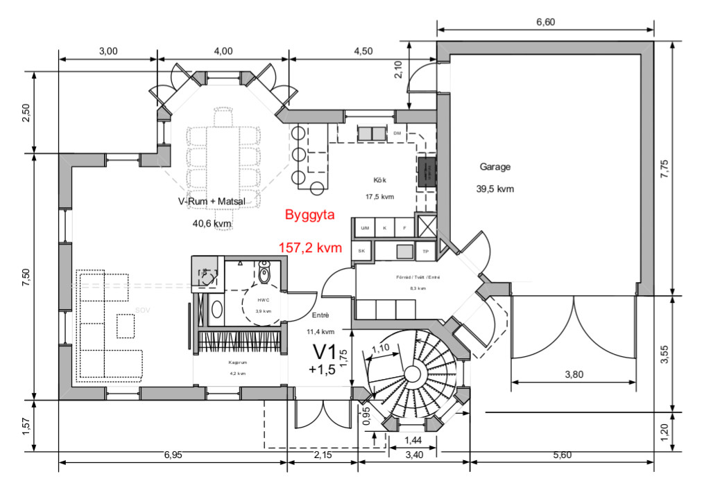
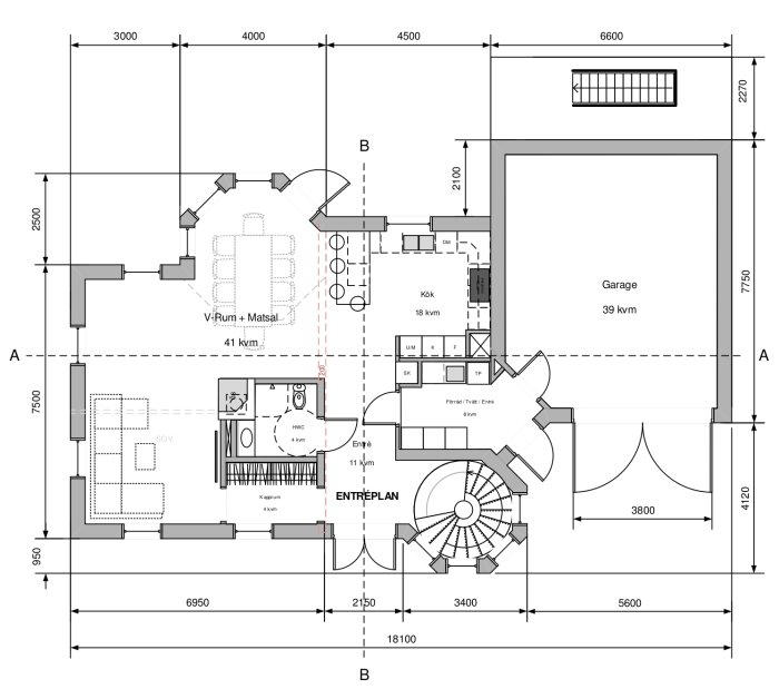
Planlösning nedre plan:
Planlösning vån 2:
....sedan finns det en rejäl källare under allt också!
Skall också bygga ett uthus som detalplanen medger och vill då göra det i samma stil. Lite komplicerat blev planlösningen då jag gärna vill få ingången på kortsidan för att kunna placera huset på tomten som jag vill. Som det är nu är kanske fönster och dörr för "tätt" placerade? Tanken är att få till en farstukvist i samma stil som huset på detta uthus också, även om det inte är med på ritningen.
Fasader:
Planlösning:
Hade såklart varit trevligt med lite färg på fasaderna, men får se om jag kan få till det i någon uppdatering framöver.
Känner mig nöjd, men tar väldigt gärna emot feedback, kritik och frågor, än så länge går ju saker att ändra!
Ska försöka bättre mig med uppdateringar framöver, men det har varit fullt upp med annat. Måste ändå säga att själva "grundformen" på huset till stor del är baserad på ett förslag från en användare härifrån!
Lite "putsande" är kvar på fasaderna, lite brädor som skall ha andra bredder m.m. för att få till stilen till 100% (enligt min arkitekt som förstår sig på detta bättre). Även snickarglädje etc. är väl än så länge mest illustrativt.
Fasad mot "vägen":
Inloggade ser högupplösta bilder
Logga in
Skapa konto
Gratis och tar endast 30 sekunder
Från ena sidan:
Inloggade ser högupplösta bilder
Logga in
Skapa konto
Gratis och tar endast 30 sekunder
Mot baksida/trädgård:
Inloggade ser högupplösta bilder
Logga in
Skapa konto
Gratis och tar endast 30 sekunder
Planlösning nedre plan:
Inloggade ser högupplösta bilder
Logga in
Skapa konto
Gratis och tar endast 30 sekunder
Planlösning vån 2:
Inloggade ser högupplösta bilder
Logga in
Skapa konto
Gratis och tar endast 30 sekunder
....sedan finns det en rejäl källare under allt också!
Skall också bygga ett uthus som detalplanen medger och vill då göra det i samma stil. Lite komplicerat blev planlösningen då jag gärna vill få ingången på kortsidan för att kunna placera huset på tomten som jag vill. Som det är nu är kanske fönster och dörr för "tätt" placerade? Tanken är att få till en farstukvist i samma stil som huset på detta uthus också, även om det inte är med på ritningen.
Fasader:
Inloggade ser högupplösta bilder
Logga in
Skapa konto
Gratis och tar endast 30 sekunder
Planlösning:
Inloggade ser högupplösta bilder
Logga in
Skapa konto
Gratis och tar endast 30 sekunder
Hade såklart varit trevligt med lite färg på fasaderna, men får se om jag kan få till det i någon uppdatering framöver.
Känner mig nöjd, men tar väldigt gärna emot feedback, kritik och frågor, än så länge går ju saker att ändra!
Ska försöka bättre mig med uppdateringar framöver, men det har varit fullt upp med annat. Måste ändå säga att själva "grundformen" på huset till stor del är baserad på ett förslag från en användare härifrån!
Fantastisk ide! ska bli riktigt kul att följa, Gillar stilen skarpt
Nybyggare
· Västmanland
· 212 inlägg
Riktigt stiligt! Blir spännande att följa 
