22 309 läst ·
104 svar
22k läst
104 svar
Kopiera annans hus?
Byggveteran
· Åland
· 2 067 inlägg
Grundstött
· Halland
· 28 348 inlägg
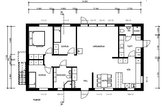
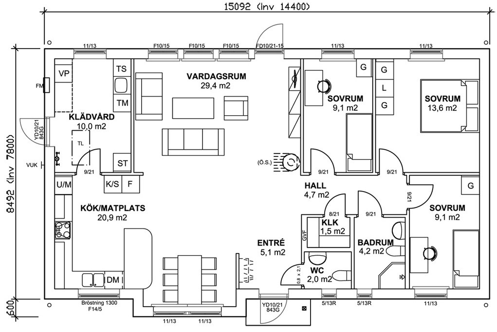
OK, jag visar våran och husfabrikantens planlösning, så får ni tycka till om vi har förbättrat eller försämrat den.
Ekonomen 114:
Vår "anpassning":
Vad tycker ni?
Ekonomen 114:
Inloggade ser högupplösta bilder
Logga in
Skapa konto
Gratis och tar endast 30 sekunder
Vår "anpassning":
Inloggade ser högupplösta bilder
Logga in
Skapa konto
Gratis och tar endast 30 sekunder
Vad tycker ni?
Ser mest ut som en spegelvändning...KnockOnWood skrev:
Plus extra toa m dusch i tvättrummet. På mindre kvadratmeter.
Vad som är bäst, dusch i tvättstuga eller gästtoa i hallen är nog mkt en preferens.
För den som tränar mycket eller skitar ned sig är det nog skönt att ha en dusch i tvättstugan... Eller om man behöver duscha 2st samtidigt.
Men kopia är det ju inte, däremot väldigt lika...
Jag tänker lite som att den "bästa" planlösningen är den som inte enbart är anpassad efter nuvarande boende utan är flexibel för förändringar och kommande familjer. Att göra en perfekt planlösning som passar ett exakt antal personer och en möblering är lätt. Att göra nåt där saker får plats på flera sätt - rum kan ha sängen på "alla" väggar (inte bara på ett enda ställe), dörrars öppning och längden på väggar är genomtänkta, man kan ha både skrivbord och dubbelsäng i "tonårsrum", passar både ett äldre par utan barn med stort socialt umgänge OCH en barnfamilj där föräldrasovrum ligger nära barnrum eller familj med tonåringar. Ett stort hus är lätt att få till. Mindre hus är nog svårare att få flexibla.
Själva har vi en 100-årig planlösning anpassad efter den tidens behov - men funkar ok idag - alla rum går att gå igenom (har minst 2 dörrar) - inte helt praktiskt men tydligen vanligt då. Men dagens planlösningar kommer också bli omoderna - kanske redan är det med tanke på alla som börjar jobba hemma och då man måste ha flera ostörda utrymmen - öppna planlösningarnas tid är över iom corona och hemarbete?
Nu är jag en aning novis när det kommer till att kopiera någon annans hus men kan man bli stämd för det med böter eller är det mer smisk på fingrarna?
Jag tänker på @KnockOnWood redovisningen och tänker att även om de är snarlika så kan väl inte husfabrikanten bli arg eller tänker jag konstigt?
Man hämtar inspirationer från andra självklart och vill ju ha en optimal planlösning.
Jag tänker på @KnockOnWood redovisningen och tänker att även om de är snarlika så kan väl inte husfabrikanten bli arg eller tänker jag konstigt?
Man hämtar inspirationer från andra självklart och vill ju ha en optimal planlösning.
Lösvirkesbyggare
· HELSINGBORG
· 601 inlägg
Den du plagierar måste begära en prövning av ärendet. Redan där är ett hinder. De måste komma upp med bevis att plagieringen är så omfattande att de kan äska ersättning. Om man tänker sig in i deras situation, så inser man att det är rätt omfattande jobb att ordna detta. Och därmed kostnader. Om de nu finner att du plankat rätt av, så det kan hålla i en prövning, kommer nästa fråga: Kan de få ut något av processen? Pengar av en privatperson? Hur mycket blir nettot av deras ersättning från den som plagierar minus deras egna kostnader? Vad händer om du överklagar? Vad händer om du sprider dåligt rykte om husföretaget? När man väger in allt detta, inser man att det är i stort riskfritt att plagiera för eget bruk. En annan ska om du producerar till någon annan.
Men blir det för de som äger huset eller om jag till exempelvis hjälper de med ärendet?banjoragge skrev:
Den du plagierar måste begära en prövning av ärendet. Redan där är ett hinder. De måste komma upp med bevis att plagieringen är så omfattande att de kan äska ersättning. Om man tänker sig in i deras situation, så inser man att det är rätt omfattande jobb att ordna detta. Och därmed kostnader. Om de nu finner att du plankat rätt av, så det kan hålla i en prövning, kommer nästa fråga: Kan de få ut något av processen? Pengar av en privatperson? Hur mycket blir nettot av deras ersättning från den som plagierar minus deras egna kostnader? Vad händer om du överklagar? Vad händer om du sprider dåligt rykte om husföretaget? När man väger in allt detta, inser man att det är i stort riskfritt att plagiera för eget bruk. En annan ska om du producerar till någon annan.
Byggveteran
· Åland
· 2 067 inlägg
Oj haha jobbar samtidigt så märker att man flyger iväg med beskrivningenS seniorkonsult skrev:
Det jag menade på var att ifall jag exempelvis hjälper mina vänner med deras bygglov och jag är inte medveten om att de har plagierat ett hus från en hustillverkare. Vem är det som åker dit på det ifall någonting händer?
Byggveteran
· Åland
· 2 067 inlägg
Det bör ju vara den som bygger (äger fastighet-hus).
Minimal risk åka dit om det inte är kopierat rakt av.
Minimal risk åka dit om det inte är kopierat rakt av.
Lösvirkesbyggare
· HELSINGBORG
· 601 inlägg
Det vet jag inte, men inom juridiken är det alltid "Det beror på". Husägarna är troligen ansvariga inför upphovsmännen, men sedan kan husägarna stämma den som plagierat. Rent logiskt är det så, men det behöver inte bli utfallet.D Dashio skrev:
S seniorkonsult skrev:
Tack för svar!banjoragge skrev:
Jag har sett ritningen förut men glömt var, kan ha varit i en högskoleavhandling...eller har du lagt ut den förut här på byggahus.se?KnockOnWood skrev:
När vi skulle bygga vårt hus, var vi och kikade på husfabrikanternas utställningshus på Husknuten i Göteborg.
Och tog hem kataloger och studerade.
Ett hus, som vi tyckte var väldigt nära våra önskemål, ritade vi av, men ändrade på en del, mest småsaker.
Och tillsammans med vår släkting arkitekten skapade vi ett eget hus, villa KnockOnWood:
[bild]
Detta var alltså år 2009. Någon som kan se vilket kataloghus vi "kopierade"?
Grundstött
· Halland
· 28 348 inlägg
Jo, jag har lagt ut planritningarna, Ekeforshus Ekonomen 114 och vår egen två gånger tidigare här fann jag efter lite forumsök. 2016:B bopakoster skrev:
https://www.byggahus.se/forum/threads/planloesning-till-nybygge.277751/page-2#post-2491562
och 2019:
https://www.byggahus.se/forum/threads/bygga-loesvirke-foersta-tanken-vaeckt.336341/#post-3219330
Minnet är kort
Klicka här för att svara
