11 637 läst ·
33 svar
12k läst
33 svar
Järnbalk HEA / HEB / IPE under utbyggnad - dimensioneringshjälp
Medlem
· Blekinge
· 10 117 inlägg
Du skulle kunna utveckla konceptet genom att göra ett kalkylblad där du bara behöver sätta in balktyp, spännvidd och last, för att se nedböjningen. Skillnaden med t.ex. limträ är bara att det rör sig om en annan elasticitetsmodul (som dessutom kan variera pga skillnader i belastning och klimatklass). Formeln du har använt avser en jämnt utbredd last. För punktlaster finns det andra formler. Du har undersökt aspekter på balkarnas böjhållfasthet. Fortfarande gäller att man måste kontrollera förhållandena vid upplagen, upplagstryck och tvärkraft.
Tack!
Vad skulle nedböjningen bli hos en HEA160 och en last på 4000kg (alternativt en last på 2000kg - vilket borde bli ungefär halva nedböjningen?)
Skulle Balkylen kunna ge svaret på ett enkelt sätt?
- Känner en viss osäkerhet att jag använder rätt formel i mitt kalkylblad och vet inte hur jag ska kolla....
I "mitt program" finns även trycket i kg/cm2 för uppläggen och det ligger inte i närheten av någon gräns.
Betonghålsten har en hållfasthet av 5MPa (51kg/cm2),
Leca block har hållfastheten 3N/mm2 (30,6 kg/cm2)
Vid en jämn belastning på 4000kg blir belastningen på muren runt 5-6kg/cm2 (beroende på hur stort upplägget blir)
Formeln för punktbelastning tror jag är är .: P x L^3 / 48 x E x I
Vad skulle nedböjningen bli hos en HEA160 och en last på 4000kg (alternativt en last på 2000kg - vilket borde bli ungefär halva nedböjningen?)
Skulle Balkylen kunna ge svaret på ett enkelt sätt?
- Känner en viss osäkerhet att jag använder rätt formel i mitt kalkylblad och vet inte hur jag ska kolla....
I "mitt program" finns även trycket i kg/cm2 för uppläggen och det ligger inte i närheten av någon gräns.
Betonghålsten har en hållfasthet av 5MPa (51kg/cm2),
Leca block har hållfastheten 3N/mm2 (30,6 kg/cm2)
Vid en jämn belastning på 4000kg blir belastningen på muren runt 5-6kg/cm2 (beroende på hur stort upplägget blir)
Formeln för punktbelastning tror jag är är .: P x L^3 / 48 x E x I
Hej.
Vet inte om du redan fått dpm svar du sökte men jag hade nog satsat på en HEA/HEB200 samt kilat ner den med gämna mellanrum för att motverka nedböjningen. Eller ännu bättre om det är möjligt att gräva ur på mitten först och stämpat balken. Då skulle du kanske kunna gå ner till en 120-140-balk dessutom. IPE-balkarna är stabilare vid lägre egenvikt men bygghöjden är något högre. Jag hade en HEB200 i garaget c/c 3m mellan fästpunkterna. Den räknade jag ut skulle klara 3ton.
Vet inte om du redan fått dpm svar du sökte men jag hade nog satsat på en HEA/HEB200 samt kilat ner den med gämna mellanrum för att motverka nedböjningen. Eller ännu bättre om det är möjligt att gräva ur på mitten först och stämpat balken. Då skulle du kanske kunna gå ner till en 120-140-balk dessutom. IPE-balkarna är stabilare vid lägre egenvikt men bygghöjden är något högre. Jag hade en HEB200 i garaget c/c 3m mellan fästpunkterna. Den räknade jag ut skulle klara 3ton.
Det var rejält tilltaget.V Vadvadetjagsa skrev:Hej.
Vet inte om du redan fått de svar du sökte men jag hade nog satsat på en HEA/HEB200 samt kilat ner den med gämna mellanrum för att motverka nedböjningen. Eller ännu bättre om det är möjligt att gräva ur på mitten först och stämpat balken. Då skulle du kanske kunna gå ner till en 120-140-balk dessutom. IPE-balkarna är stabilare vid lägre egenvikt men bygghöjden är något högre. Jag hade en HEB200 i garaget c/c 3m mellan fästpunkterna. Den räknade jag ut skulle klara 3ton.
Enligt ett snabbt överslag skulle den balken få en nedböjning av 0,9mm vid 3ton (+ egenvikt ca 200kg)
Eftersom de flesta värden är "antagna" i mitt fall får man försöka skatta (och det kanske är det svåraste) - förstår nästan varför ingen konstruktör vill ta sig an denna typ av problem...
Har antagit att antagit följande värden (som bl.a. @justusandersson angivit som riktmärke)
Nyttig last 8m x 4m = 32m2 * 200kg/m2 = 6400kg
Egentyngd 32m2 * 50kg/m2 = 1600kg
totalt 8000kg (med god marginal)
Antag att halva vikten hamnar på denna balk = 4000kg
Jag väljer en HEA160
Med hjälp av formeln .: u = (5 * Q * L³) / (384 E * I) skulle nedböjningen (vid maxbelastning) bli ca 9,8mm
(vilket dock är ca 3mm mer än L/600) Men då har jag inte tagit hänsyn till befintlig syll (som ska finnas kvar)
HEA160 skulle väga ca. 100kg - vilket är fullt hanterbart.
(men jag kan ha räknat något fel och skulle önska att någon kollade mina beräkningar)
Kan bli att det placeras någon form av stöd, för att motverka nedböjningen - men det har jag inte räknat på - ännu. (det blir nästan en form av punktbelastning) Om jag inte hittar något "bredare" att lägga mellan ex. 5mm i mitten och lite smalare på kanterna. - funderar på EK-mellanlägg men vi får se...
Vid "proffs byggen" är nog balken färdig böjd från början - upp och nedsida... men det är en annan fråga...
Huvudsaken är att jag får kvar utbyggnaden ovan mark - annars blir det ganska högt i tak
A Albireo skrev:Det var rejält tilltaget.
Enligt ett snabbt överslag skulle den balken få en nedböjning av 0,9mm vid 3ton (+ egenvikt ca 200kg)
Eftersom de flesta värden är "antagna" i mitt fall får man försöka skatta (och det kanske är det svåraste) - förstår nästan varför ingen konstruktör vill ta sig an denna typ av problem...
Har antagit att antagit följande värden (som bl.a. @justusandersson angivit som riktmärke)
Nyttig last 8m x 4m = 32m2 * 200kg/m2 = 6400kg
Egentyngd 32m2 * 50kg/m2 = 1600kg
totalt 8000kg (med god marginal)
Antag att halva vikten hamnar på denna balk = 4000kg
Jag väljer en HEA160
Med hjälp av formeln .: u = (5 * Q * L³) / (384 E * I) skulle nedböjningen (vid maxbelastning) bli ca 9,8mm
(vilket dock är ca 3mm mer än L/600) Men då har jag inte tagit hänsyn till befintlig syll (som ska finnas kvar)
HEA160 skulle väga ca. 100kg - vilket är fullt hanterbart.
(men jag kan ha räknat något fel och skulle önska att någon kollade mina beräkningar)
Kan bli att det placeras någon form av stöd, för att motverka nedböjningen - men det har jag inte räknat på - ännu. (det blir nästan en form av punktbelastning) Om jag inte hittar något "bredare" att lägga mellan ex. 5mm i mitten och lite smalare på kanterna. - funderar på EK-mellanlägg men vi får se...
Vid "proffs byggen" är nog balken färdig böjd från början - upp och nedsida... men det är en annan fråga...
Huvudsaken är att jag får kvar utbyggnaden ovan mark - annars blir det ganska högt i tak![]()
Ja, det är ju svårt att beräkna sånt här exakt, så lite överdimensionering skadar nog inte. Du kommer ju ha upplag för balken på varje sida så frågan är ju ifall balken kroknar lite vilket kan leda till sättningar i väggarna antar jag. Men slår man i ett par kilar med nån meters mellanrum och försöker fördela lasten så gott det går så minskar den risken ordentligt. Akta bara så du inte kilar upp byggnaden så den sätter sig åt andra hållet. Det ser ju inte ut att väga så mycket det där.
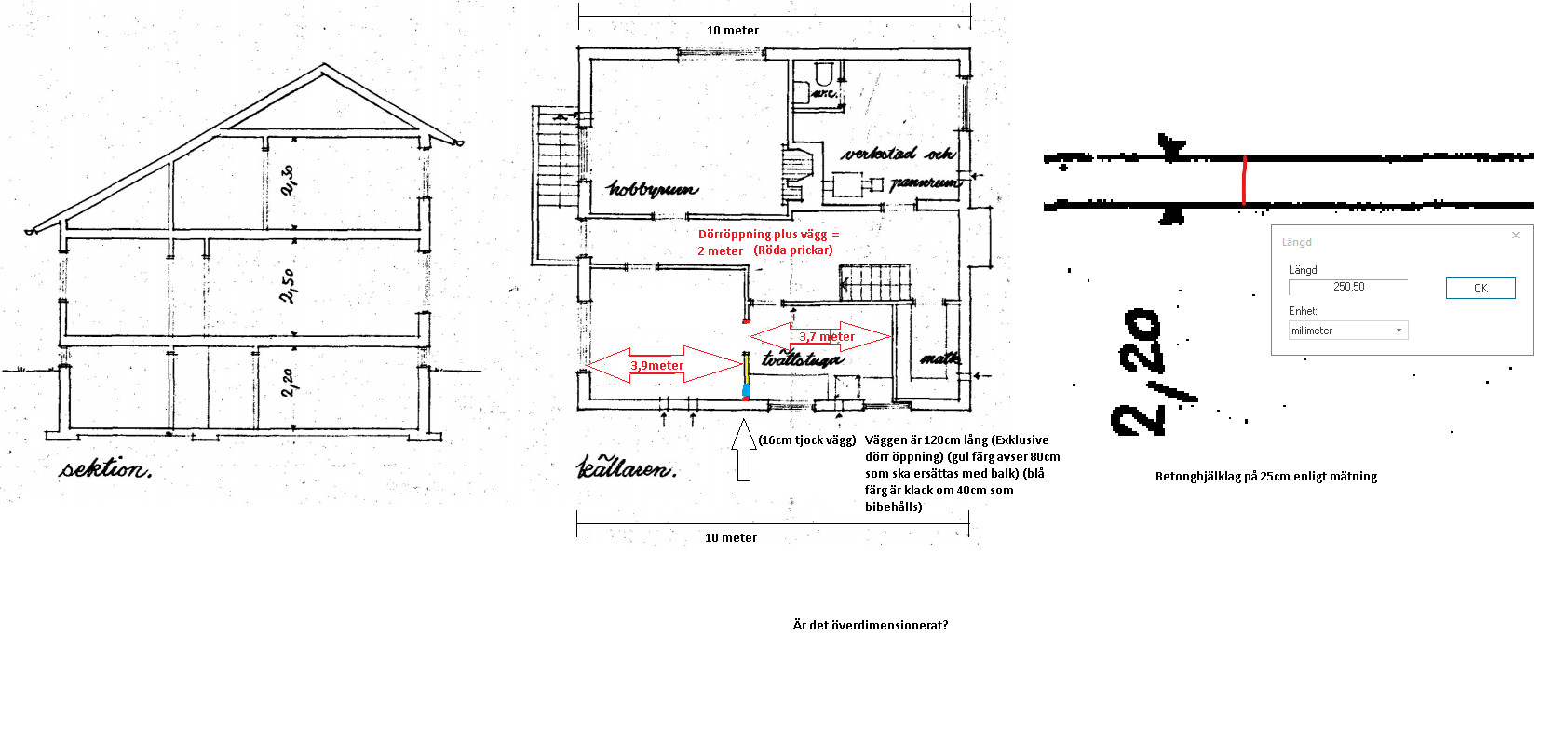
Hej Hoppas ni kan hjälpa mig att beräkna denna HEB200 balk jag tänker nyttja som avlastning vid borttagning av vägg.
Väggen är 200cm inkl dörr öppning. Tänker lämna en klack om 40 cm och ersätta resterande del med en balk om 160cm. Ståendes på stålstolpar 100x100 mm.
Är det en för klen konstruktion?
Vad är det för beräkning gällande denna konstruktion kring laster byggnadsnämnden önskar sig?
Om någon kan räkna vore jag supertacksam..
Det är gjutet betongbjälklag så väggen bör med all säkerhet vara bärande (säger inspektören)
Trots att den enbart är 120cm (exklusive dörr öppning)
Tacksam för svar.
Väggen är 200cm inkl dörr öppning. Tänker lämna en klack om 40 cm och ersätta resterande del med en balk om 160cm. Ståendes på stålstolpar 100x100 mm.
Är det en för klen konstruktion?
Vad är det för beräkning gällande denna konstruktion kring laster byggnadsnämnden önskar sig?
Om någon kan räkna vore jag supertacksam..
Det är gjutet betongbjälklag så väggen bör med all säkerhet vara bärande (säger inspektören)
Trots att den enbart är 120cm (exklusive dörr öppning)
Tacksam för svar.
Det känns lite svårt att svara på din fråga, med de uppgifter du lämnat.
1) Om inspektören säger att det är en bärande vägg - får vi väl lita på det.
Jag förstår inte var väggen är placerad i ritningen. (Är det mellan de två stora röda pilarna?)
Även betong är "självbärande" om den är gjord på "rätt sätt" (rätt kvalité / armerad osv. - men det är svårare att bedöma)
2) En viktig komponent i en beräkning är - vilken vikt bär väggen upp?
(hur tjockt betongbjälklag? Är det bara betongen som belastar väggen? (eller finns det någon vägg ovanför som håller upp golvet till andra våningen / taket osv.?)
3) Det jag har svårt att tyda är längden på balken.
Är den totala längden på balken 2000mm?
Ena upplägget är 400mm. Andra upplägget är 100mm?
dvs. avståndet mellan uppläggen är 2000mm - 400mm - 100mm = 1500mm
Dörren idag är 900mm?
Kan det stämma att öppningen skulle bli 1500 - 900 = 600mm bredare än idag?
4) HEB200 är en kraftig balk - spontant inga problem.
Men en annan beräkning som måste göras - vilken belastning tål stålstolarna på 100x100?
Dvs. vilken vikt skall balken bära upp? (Är det 2000kg eller 5000kg eller ...)
1) Om inspektören säger att det är en bärande vägg - får vi väl lita på det.
Jag förstår inte var väggen är placerad i ritningen. (Är det mellan de två stora röda pilarna?)
Även betong är "självbärande" om den är gjord på "rätt sätt" (rätt kvalité / armerad osv. - men det är svårare att bedöma)
2) En viktig komponent i en beräkning är - vilken vikt bär väggen upp?
(hur tjockt betongbjälklag? Är det bara betongen som belastar väggen? (eller finns det någon vägg ovanför som håller upp golvet till andra våningen / taket osv.?)
3) Det jag har svårt att tyda är längden på balken.
Är den totala längden på balken 2000mm?
Ena upplägget är 400mm. Andra upplägget är 100mm?
dvs. avståndet mellan uppläggen är 2000mm - 400mm - 100mm = 1500mm
Dörren idag är 900mm?
Kan det stämma att öppningen skulle bli 1500 - 900 = 600mm bredare än idag?
4) HEB200 är en kraftig balk - spontant inga problem.
Men en annan beräkning som måste göras - vilken belastning tål stålstolarna på 100x100?
Dvs. vilken vikt skall balken bära upp? (Är det 2000kg eller 5000kg eller ...)
På planritningen har jag skrivit in mått med färg anvisningar. Väggen är 1,2 meter plus dörröppningen 80cm. 2meter totalt. Men balken ska enbart avse 160cm. Alltså dörröppning plus 80cm av "gul" vägg. Totalt ska alltså en HEB200 balk om 160cm ersätta befintlig dörröppning plus 80cm vägg.
Ursäkta - men jag förstår inte riktigt.
På planritningen verkar de stående balkarna - (vad det nu är för balkar), vara markerade med röda plumpar.
Du nämner att den blå bärande väggen ska behållas. Men förstår inte varför den ena stående balken är placerad utanför den blå väggen. (den blå väggen förlorar sin bärande funktion.)
Hållfastheten hos "järnpelarna" måste också beräknas. (de kanske är klenare än HEA180)
Om jag förstått rätt är dörren 800mm och du vill göra en dubbelt så bred öppning. (=1600mm)
Vilket material är den blå väggen gjord av? (den är ganska tjock)
Är den av trä / murad eller... - Varför räcker inte befintliga väggar att bära upp balken?
Vilken vägg på sektionsritningen är det som gäller? (Håller denna vägg (gul/blå) upp bara valvet mm. eller finns även en bärande vägg ovanför?)
På planritningen verkar rummet inte så brett.
Behövs ens en balk? (eftersom valvet ändå är 250mm tjockt) När gjordes valvet?
Det borde finnas någon som kan svara på vilka normer som fanns när valvet gjordes.
(Betong kvalité mm.)
Bäst kanske hade varit att skapa en ny tråd?
På planritningen verkar de stående balkarna - (vad det nu är för balkar), vara markerade med röda plumpar.
Du nämner att den blå bärande väggen ska behållas. Men förstår inte varför den ena stående balken är placerad utanför den blå väggen. (den blå väggen förlorar sin bärande funktion.)
Hållfastheten hos "järnpelarna" måste också beräknas. (de kanske är klenare än HEA180)
Om jag förstått rätt är dörren 800mm och du vill göra en dubbelt så bred öppning. (=1600mm)
Vilket material är den blå väggen gjord av? (den är ganska tjock)
Är den av trä / murad eller... - Varför räcker inte befintliga väggar att bära upp balken?
Vilken vägg på sektionsritningen är det som gäller? (Håller denna vägg (gul/blå) upp bara valvet mm. eller finns även en bärande vägg ovanför?)
På planritningen verkar rummet inte så brett.
Behövs ens en balk? (eftersom valvet ändå är 250mm tjockt) När gjordes valvet?
Det borde finnas någon som kan svara på vilka normer som fanns när valvet gjordes.
(Betong kvalité mm.)
Bäst kanske hade varit att skapa en ny tråd?
Gul vägg plus dörröppning blir 160cm. Alltså den del där balken ska monteras i. Den blå är klacken som bibehålls. Väggen är murad därför ställer jag stolpar. Röda prickarna är kanske Onödig information, men tänkte att det hade nytta i uträkningen.
Valvet är inte 250mm , 250mm tjockleken på bjälklaget.
Sektionsritning påvisar de murade väggarna som går utmed genom korridoren på planritningen. Är rätt tveksam till om väggen ens är bärande då betongbjälklaget som sådant också bär, men säger inspektören det då han bor i liknande hus så är de väl så
Valvet är inte 250mm , 250mm tjockleken på bjälklaget.
Sektionsritning påvisar de murade väggarna som går utmed genom korridoren på planritningen. Är rätt tveksam till om väggen ens är bärande då betongbjälklaget som sådant också bär, men säger inspektören det då han bor i liknande hus så är de väl så
Redigerat:
Vad är det murat med? Oftast kan man ha en mur som fungerande upplag, dvs ingen stolpe behövs. En HEB200 känns väldigt överdimensionerad med denna korta spännvidd. Har själv hela carporttaket vilande på två stålbalkar där den ena går direkt in i garagets murade vägg med sin ena ände medans den andra står på en VKR pelare. Och i mitt fall är det en isolecasten som balken vilar på.
HejR roli skrev:
Det är ett hus från 58 så det är rediga betongväggar. Ytterväggarna är blåsbetong(lätta att borra i) men innerväggarna i källaren är hårda som sten (jobbiga att borra i). Balken skulle säkert kunna vila på den klacken (blå) som lämnas , men i andra änden behövs en balk då jag inte vill göra ingrepp i den väggen höger om dörren
Jag kanske är ute o cyklar men, har beräknat andelen betong på ett bjälklag om 10x10m till :
65 Ton = 637.43 Kilonewton (massa)
Per kvadrat meter tolkar jag det som 6,37kN per kvm...
I beräkningsguiden tar jag i lite, 8 kN mer kvm..
Den bör räcka eller hur?
65 Ton = 637.43 Kilonewton (massa)
Per kvadrat meter tolkar jag det som 6,37kN per kvm...
I beräkningsguiden tar jag i lite, 8 kN mer kvm..
Den bör räcka eller hur?




