15 796 läst ·
36 svar
16k läst
36 svar
Hjälp med belysning industrihall.
Stort tack för alla bra svar, allt pekar på att jag kör på lysrör och troligtvis T8 pga. priset. Skall i helgen spänna vajrar och undrar om ni har några bra tips på avstånd mellan vajrarna. Det blir fyra längder i en hall som mäter 18x31meter. Ska man fördela dem lika eller ska de två vajrarna som är längst ut mot vägg vara närmare väggen och sedan fördela övriga mått jämnt? Och hur många armaturer bör jag ha (hur tätt ska de sitta).
Erik
Erik
Hobbyelektriker
· Värmland, Molkom
· 26 144 inlägg
Vad finns för krav på belysningsstyrka, och på vilken höjd (arb.bord eller golv)?
Några grova riktlinjer
Lager: 100-200 lux
Kontor (läsa papper): 300-500 lux
Finmekanik: 500-1000 lux
Så kan man montera vad som nu ska monteras i hallen med förbundna ögon eller vad krävs?
Några grova riktlinjer
Lager: 100-200 lux
Kontor (läsa papper): 300-500 lux
Finmekanik: 500-1000 lux
Så kan man montera vad som nu ska monteras i hallen med förbundna ögon eller vad krävs?
Man kan ju aldrig få för många lysrörsarmaturer... 
Är ju just för att spara pengar man väljer T5 istället för T8.egl skrev:
Slängde ihop en energisparkalkyl. Chansade på armaturer, antal, drifttimmar osv
Inloggade ser högupplösta bilder
Logga in
Skapa konto
Gratis och tar endast 30 sekunder
Inloggade ser högupplösta bilder
Logga in
Skapa konto
Gratis och tar endast 30 sekunder
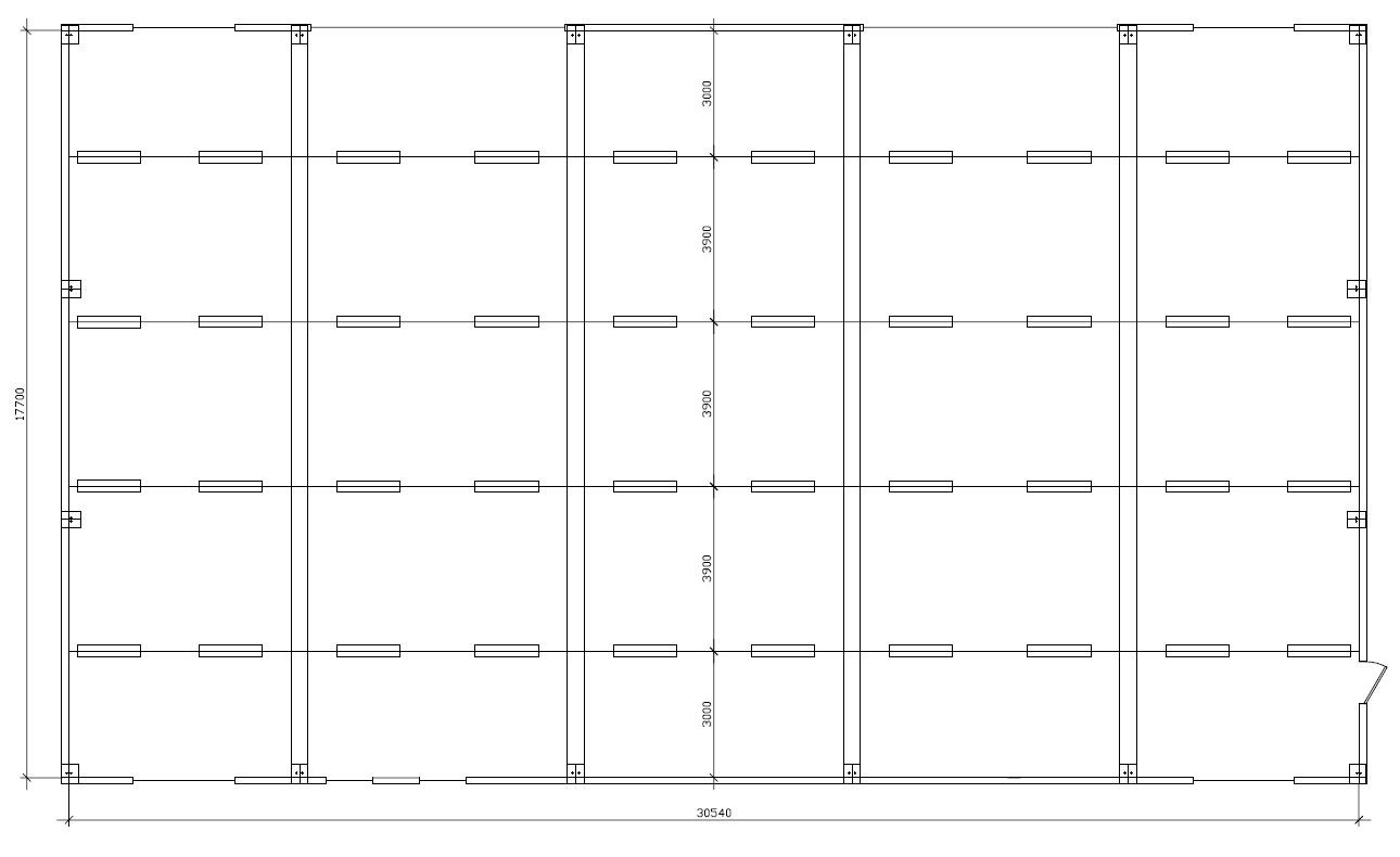
Jag behöver nog upp i 400lux tror jag, det ska vara verkstad med lager och montering! Vad tror ni om bifogad skiss? Blir en jäkla massa armaturer, är avstånden mellan vajrarna bra? De vertikala strecken är stålstommen, så jag kan inte placera en armatur där stålet är. Inte bestämt mig för typ av armatur ännu, kan tänka mig T5 om priset är rätt. Hyresgästen som vi färdigställer hallen till får stå för sitt egna elabonemang!
Erik
Erik
Inloggade ser högupplösta bilder
Logga in
Skapa konto
Gratis och tar endast 30 sekunder
I längden sparar man pengar på T5 för att de är energisnålare än T8. Men det blir ändå dyrare än T8 när man redan efter två år måste upp och byta ut en massa trasiga kinesiska drivdon

(Baserat på min otroligt dåliga relation med elektroniska drivdon för lysrör)
(Baserat på min otroligt dåliga relation med elektroniska drivdon för lysrör)
Hobbyelektriker
· Värmland, Molkom
· 26 144 inlägg
Gjorde en snabb o enkel körning i Dialux light och fick fram denna bild med 400 lux som mål, med armaturer av typen Fagehult 2xT26 36 W, 6400 lumen (som jag bara råkade ha i listan över möjliga armaturer).
Dialux föreslår alltså 8 x 9 st armaturer.
Övriga förutsättning var
- Monteringshöjd 6 m
- Beräkningsplan 0.85 m
- Renvita väggar, standardtak och standardgolv.
- Längsgående placering 1.72 m från kortvägg, och 3.44 m mellan armaturerna, räknat till centrum av armaturen.
- Tvärsgående placering 1.13 m från långvägg och 2.25 m mellan armaturerna.
Dialux föreslår alltså 8 x 9 st armaturer.
Inloggade ser högupplösta bilder
Logga in
Skapa konto
Gratis och tar endast 30 sekunder
Övriga förutsättning var
- Monteringshöjd 6 m
- Beräkningsplan 0.85 m
- Renvita väggar, standardtak och standardgolv.
- Längsgående placering 1.72 m från kortvägg, och 3.44 m mellan armaturerna, räknat till centrum av armaturen.
- Tvärsgående placering 1.13 m från långvägg och 2.25 m mellan armaturerna.
Oj det blir 72 armaturer i din beräkning, blir några färre om man går upp till 2x49 antar jag. Jag var orolig för att 40st som jag ritade in var för mycket ), då hade jag 2x58w i åtanke! Bo S har du lust att testa med 2x58 T8 vore jag mycket tacksam.
Erik
Erik
Du behöver knappast 400 Lux i hela lokalen, man brukar ha olika nivåer på olika ställen beroende på hur just den delen av lokalen ska användas. Att ha 400 Lux rakt över lagerhyllan ger kanske bara ljus uppe på "taket" till översta lagerhyllan, medan samma ljusmängd mellan lagerhyllor hamnar "inne" i hyllorna. Det vanliga när man bygger lokaler som ska hyras ut är att fastighetsägaren bygger en lokal med en bra grundbelysning, kanske 200 Lux, och senare kompletterar man (hyresgäst eller uthyrare) med mer ljus där så behövs.
Hobbyelektriker
· Värmland, Molkom
· 26 144 inlägg
Jag har strulat en hel del med programuppdateringar för att få in Fagerhults katalog i Dialux. Dom verkar dock inte ha några industriarmaturer som är lika vassa som Rrrrr's - det blir typ 8x7 armaturer med 2x58 W.
Men det kanske kan vara intressant att se hur det blir med 200 lux istället enligt elmont's förslag:
Här krävs det bara 6x4 armaturer, Fagerhult Indulux bredstrålande, 2x58 W.
Nu bör du ha fått en fingervisning om vad som krävs. Det beror mycket på val av armatur.
Men det kanske kan vara intressant att se hur det blir med 200 lux istället enligt elmont's förslag:
Inloggade ser högupplösta bilder
Logga in
Skapa konto
Gratis och tar endast 30 sekunder
Här krävs det bara 6x4 armaturer, Fagerhult Indulux bredstrålande, 2x58 W.
Nu bör du ha fått en fingervisning om vad som krävs. Det beror mycket på val av armatur.
En klart påverkande faktor är vad det är för färg på de flesta ytor i lokalen, med vänliga hälsningar captain obvious 
Eftersom lokalen bland annat ska användas som lager så bör du absolut fundera på var lagerhyllor kan ställas. Det är en bra idé att ha armaturerna i gångarna mellan hyllorna, och såklart en dålig idé att ha dem ovanför (höga) hyllor.
En bonusfråga till de som faktiskt moterat lysrör på linor: Är det bra eller dåligt att montera armaturerna på linorna innan linorna spänns upp? Jag tänker att det lär väl vara rätt mycket smidigare att göra själva monteringen men vet inte hur mycket svårare att få upp linorna sen?
Eftersom lokalen bland annat ska användas som lager så bör du absolut fundera på var lagerhyllor kan ställas. Det är en bra idé att ha armaturerna i gångarna mellan hyllorna, och såklart en dålig idé att ha dem ovanför (höga) hyllor.
En bonusfråga till de som faktiskt moterat lysrör på linor: Är det bra eller dåligt att montera armaturerna på linorna innan linorna spänns upp? Jag tänker att det lär väl vara rätt mycket smidigare att göra själva monteringen men vet inte hur mycket svårare att få upp linorna sen?
Hobbyelektriker
· Värmland, Molkom
· 26 144 inlägg
Jag räknade som sagt på Renvita väggar, standardtak och standardgolv.
Man kan ju prova att spänna upp 31 meter lina utan belastning på mitten, och jämföra med en 1 kg vikt mitt på. Antag att den hänger ned 10 cm på mitten. Då kan en formel för kraften i varje linhalva ställas upp som
2 F sinφ = 10 N
vilket ger F = 775 N om jag räknar rätt, exkl linans egen vikt.
Det skulle faktiskt jag klara att spänna upp
Men nu bärs linan upp av ett antal fästpunkter i taket också.
Man kan ju prova att spänna upp 31 meter lina utan belastning på mitten, och jämföra med en 1 kg vikt mitt på. Antag att den hänger ned 10 cm på mitten. Då kan en formel för kraften i varje linhalva ställas upp som
2 F sinφ = 10 N
vilket ger F = 775 N om jag räknar rätt, exkl linans egen vikt.
Det skulle faktiskt jag klara att spänna upp
Men nu bärs linan upp av ett antal fästpunkter i taket också.
Redigerat:
Jag har arbetat som elektriker tidigare och installerat en del armaturer på linor och det finns ju olika varianter på installationer, jag skulle spänna linorna först och sen hänga armaturerna och dra och koppla alltihopa. Hyra en saxlift eller en ställning för att göra allt smidigare.

