Medlem
· Västra Götaland
· 3 295 inlägg
Min kära Mor bor i ett hus med vasstak, jag ordnade byte av det för några år sedan. Det gamla lades 1975, och det höll till 2019. Man får byta nockhalmen var 7-10 år men i övrigt är det ett väldigt bra tak. Pappen som låg under det gamla var som ny, vasstäcket isolerar ju även mot värme, vilket ju är det som främst äter upp underlagspapp.HOBBY ARCHITECT skrev:
Inloggade ser högupplösta bilder
Logga in
Skapa konto
Gratis och tar endast 30 sekunder
Inloggade ser högupplösta bilder
Logga in
Skapa konto
Gratis och tar endast 30 sekunder
Inloggade ser högupplösta bilder
Logga in
Skapa konto
Gratis och tar endast 30 sekunder
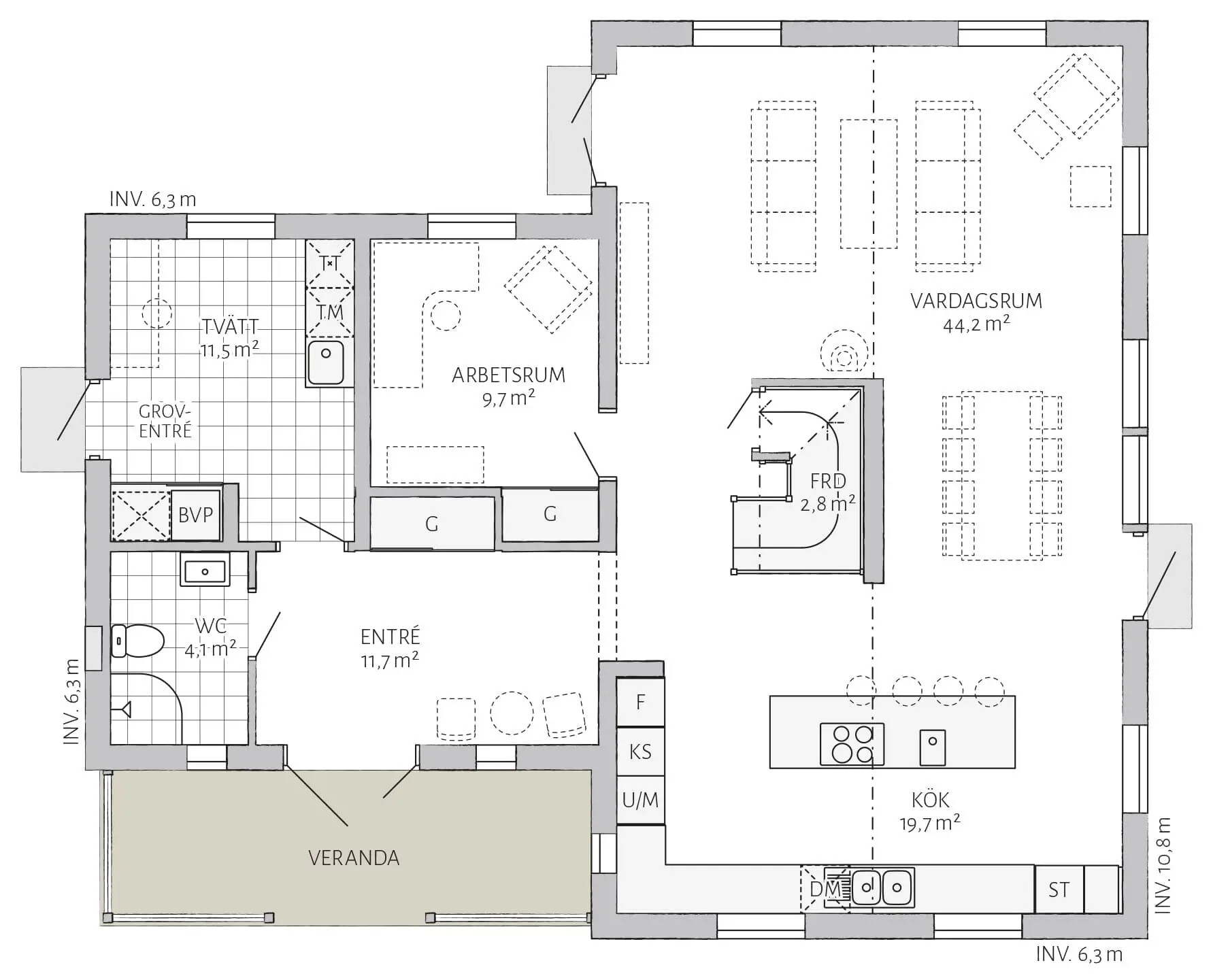
https://www.eksjohus.se/husmodeller/kaptensgarden
Klicka här för att svara
Liknande trådar
-
Hur ska jag behandla denna gamla fina dörr till ett funkishus?
Byggnadsvård -
Fina hus till salu utomlands
Arkitekter, Arkitektritat & Extern design -
Fina Attefallshus
Attefallshus, friggebod, garage & andra småhus -
Fina hus till salu
Arkitekter, Arkitektritat & Extern design -
Finansinspektionen räknar med sjunkande huspriser
Artikelkommentarer

