Beställaren är uppvuxen på 1700-talsgården och ville skapa en byggnad anpassad för alla generationer i familjen. Fredriksson arkitektkontor ritade och uppförde ett sådant hus i passivhusteknik, med en helt diffusionsöppen konstruktion med ångbroms istället för plast.
Rödmålad fasad

Foto: Felix Freudenthal Lotz

Strax utanför Söderköping har Fredriksson Arkitektkontor AB lyckats infria kundens krav och samtidigt åstadkomma ett modernt uttryck som smälter in i omgivningen.

Villan utanför Söderköping är anpassad för både unga och gamla år, bottenvåningen är helt tröskelfri vilket dock inte ger intrycket av äldreboende.

– Det har varit en tuff utmaning att skapa en lösning där det är enkel och lätt att tas sig ut och in, samtidigt som huset inte ska kännas som det tryckts ned i marken, förklarar Felix Freudenthal Lotz.

 

Södra och östra fasaden

Foto: Felix Freudenthal Lotz

Beställaren är uppvuxen på gården och ville skapa en byggnad anpassad för alla generationer i familjen. Hela bottenvåningen är därför helt tröskelfri, och det utan att huset tycks nedtryckt i marken. Felix Freudenthal Lotz erkänner att det kan låta lite klyschigt att peka på ladugårdar som en förebild, men den inspirationen gör att byggnaden naturligt underordnar sig omgivningen.

– Det syns att det är nytt, och samtidigt smälter det in i den befintliga miljön, förklarar arkitekt Felix Freudenthal Lotz. Det är knappast ett utmanande hus, snarare en anpassning till omgivningen. Fast visst byggnaden har ett eget liv, se den stora takkupan mot öster som nästan ser lite amerikansk ut, samtidigt så anspelar den här takfoten mot Söderköpings medeltida byggnader.

Specialbyggda stuprör

Foto: Felix Freudenthal Lotz

 - På tomten finns en mangårdsbyggnad från 1700-talet, förklarar arkitekt Felix Freudenthal Lotz, vi vill inte utmana dess uttryck utan istället skapa en liten bybildning tillsammans med ett ytterligare ett hus från åttiotalet.

Omsorgen om detaljer förebygger en hel del underhåll, just fönsterinklädning och regnvattenhantering är kritiska delar som arkitekterna på Fredriksson Arkitektkontor AB har övervakat under byggtiden.

– Det är främst fönster och dörrar som kan dra iväg prismässigt om man vill ha riktigt energieffektiva glas med varm kant, förklarar Felix Freudenthal Lotz. Den förhöjda investering ett Passivhus innebär brukar grovt kunna räknas hem inom 10-15 år, därefter går huset med vinst.

Södra fasaden

Foto: Felix Freudenthal Lotz

Byggnaden är uppförd som ett passivhus för att ge bästa energivärden. Täthet och isolering uppfyller passivhusstandarden FEBY 12. Placeringen och fönstersättning har anpassats till både närliggande byggnader och solinfall. Felix medger att passivhus har fått något av ett dåligt rykte i Sverige, men konstruktionsprincipen är inte desto mindre sund.

Väl tilltagna fönster från Velfac har aluminiumklädd utsida och trä på insidan för både hållbarhet och ett lantligt intryck. En gallerduk nedanför fasaden förhindrar att regn ger smutsskador på fasaden.

Kök i plywood

Foto: Felix Freudenthal Lotz

Köket har fått en stilren och enkel inredning i furuplywood.

– Det finns en stor rädsla för fukt- och mögelproblem, och inte minst dålig inomhusluft i täta huskonstruktioner, det är en historisk skuld som hänger med från åttiotalet då man hade dålig ventilation och använde plastskikt. Den passivteknik vi har idag fungerar däremot utmärkt vilket inte minst Tyskland, Österrike och Schweiz är goda exempel på.

Inredning i plywood

Foto: Felix Freudenthal Lotz

Felix förklarar att den invändiga massivträstommen levereras från Martinsons och att konstruktionen är helt diffusionsöppen med ångbroms istället för plast vilket gör att den tål temperaturväxlingar. Felix hade dock föredragit en österrikisk teknik där elinstallationerna är färdigborrade redan på fabrik, den tekniken kan Martinsons ännu inte erbjuda.

Badrum

Foto: Felix Freudenthal Lotz

Vill man tänka långsiktigt ska man inte elda för kråkorna, och för en extrainvestering på cirka 100 000 - 300 000 får man betydligt mycket mer i energieffektivitet och hållbarhet. Viktigast för att få till en god inomhusmiljö med låg energiförbrukning som nästan inte kostar något alls är att utförandet av kritiska detaljer såsom ångbromsens anslutning kring fönster, dörrar och genomföringar övervakas aktivt under byggprocessen.

Sittyta och förvaring ovanvåning

Foto: Felix Freudenthal Lotz

Den liggande fasadpanelen är målad med slamfärg och zinktaket har gråpatinerats för att inte ge ett alltför blänkande och nytt uttryck. Huset ska inte behöva underhållas de första tio åren, här används inga färger som kan flagna. Invändigt är massivträ stommen synlig och har fått en mild behandling av vit lasyr. Mellanbjälklaget av massivträelement utgör färdigt golv som fått en vitpigmenterad oljebehandling. 

Väggarna är mellan 400 och 450 mm tjocka vilket också lämnar utrymme för sittytor och olika förvaringslösningar.

Sovrum

Foto: Felix Freudenthal Lotz

Ytterligare ett skäl till att välja en energieffektiv passivhuslösning, är enligt Felix Freudenthal Lotz att kunden önskade ett hus som när det står tomt på vintern bara behöver minimal värme.

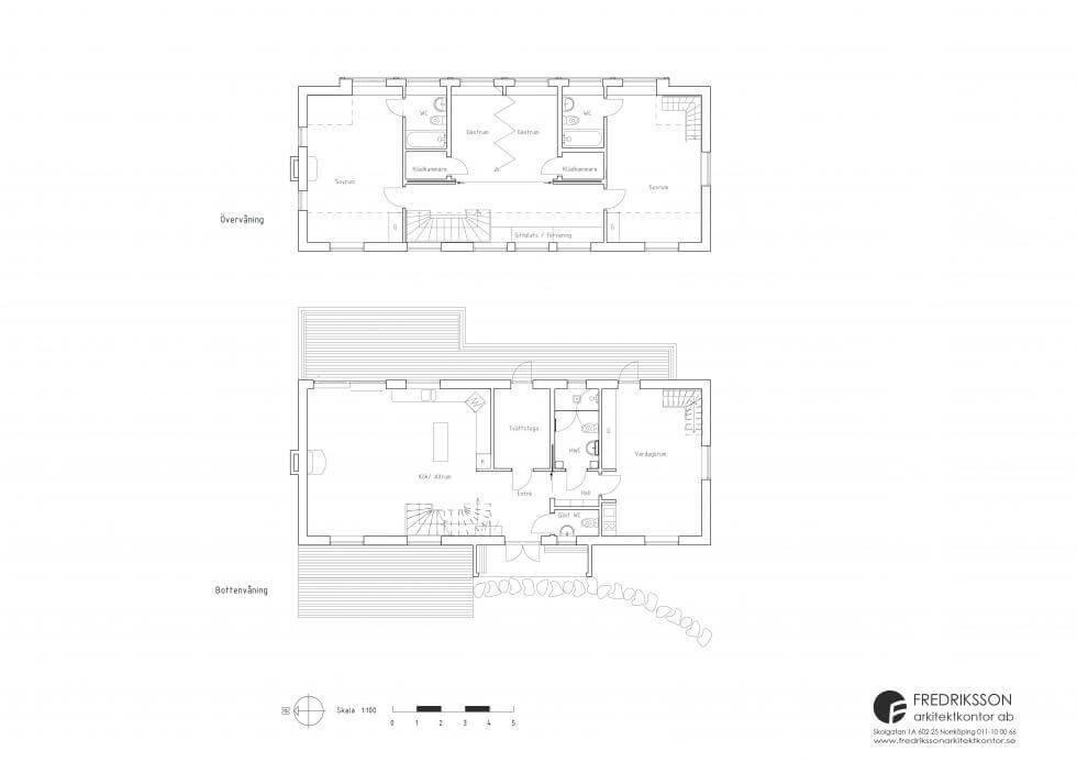
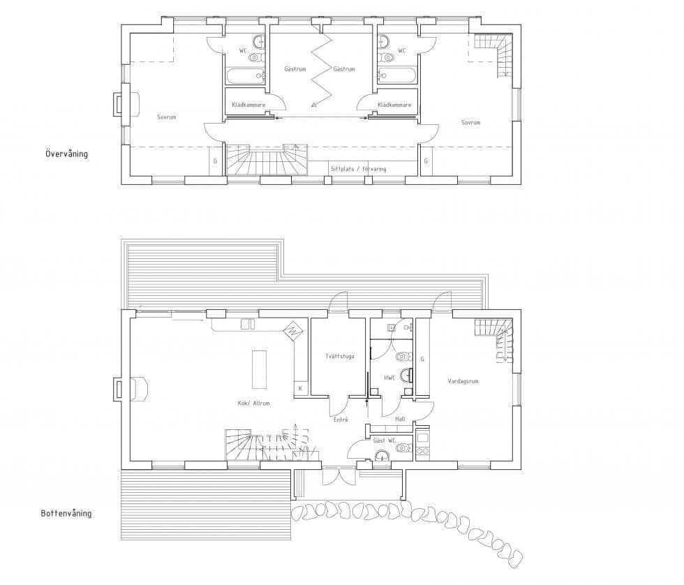
Planlösning

Planlösning. Ritning: Fredriksson Arkitektkontor

Fasadritning

Fasadritning. Ritning: Fredriksson Arkitektkontor

Detaljritning entré

Detaljritning entré. Ritning: Fredriksson Arkitektkontor