70-talshuset tillbyggt på höjden med arkitekt

Familjen Linevik byggde ville bygga ut sitt sjuttiotalshus och bestämde sig för att bygga till en våning. Istället för att anlita en byggare använde de sig av arkitekten Sofia Björkdahl.
70-talshus tillbyggt på höjden

1970-talshuset i Danderyd byggdes på med en våning. Foto: Sofia Björkdahl

Mikael och Maria Linevik önskade ett större hus med en öppnare planlösning. Sjuttiotalshuset ute i Danderyd, Stockholm, var däremot i rätt gott skick. Valet blev att istället för att riva bygga till en våning för att få till en rejält större boyta. En byggare hade säkert kunnat lösa uppgiften, men familjen valde att anlita arkitekten Sofia Björkdahl som med en zinkinklädd påbyggnadsdel och åtskilliga detaljer förvandlat den gamla villan till ett helt nytt hus.

Arkitektritad tillbyggnad

Huset före tillbyggnad. Foto: Sofia Björkdahl

Det gamla suterränghuset på Åsevägen i Danderyd stod färdigt 1976.

– Vi bodde nästan 5 år i det gamla huset med våra tre döttrar innan vi bestämde oss för att bygga till, berättar Mikael Linevik. Vi hade problem med dålig avluftning av vindsrummet med antydan till mögelpåslag av träkonstruktionen, det var dags att ta itu med vad som kunde blivit stora framtida problem.

Arkitektritad tillbyggnad

Foto: Sofia Björkdahl

Sofia Björkdahls lösning blev att skilja tillbyggnaden det äldre markplanet med en väl detaljerad och samtidigt rätt rå överbyggnad.

– Vi har byggt till 100 kvadratmeter boyta förutom en takterrass om 20 kvadratmeter, förklarar Sofia Björkdahl.

Arkitektritad tillbyggnad

Foto: Sofia Björkdahl

Plåtslagaren gick en kurs hos VM-zink för att bli skickligare på att montera zinkplåt som kräver en annan teknik än vanlig plåt. Sofia ritade upp all plåt med blandade bredder för att få till snygga övergångar vid alla fönster. 

– Det var däremot inte helt lätt att övertyga kommunen om en överbyggnad i förpatinerad zinkplåt, minns Sofia Björkdahl, de var rätt kritiska men också intresserade efter att vi visat ett antal referensprojekt.

Arkitektritad tillbyggnad

Foto: Sofia Björkdahl

Detaljeringen, som att takavvattningen ligger dold i rostfria rännor innanför fasadlivet och att flera skjutglaspartier från Velfac ersätter befintliga fönster, kostar extra men ger också större kvalitet.

– Det är en skillnad i att låta en arkitekt eller en byggare rita ens hus, betonar Sofia Björkdahl. Det är inte bara en merkostnad utan också ett mervärde i omsorgen om detaljer som annars oftast blir standardlösningar.

Arkitektritad tillbyggnad

Foto: Sofia Björkdahl

Det är inte självklart för en beställare att koppla in en arkitekt, men Mikael och Maria Linevik tycker merkostnaden är mer än väl motiverad även om ett sjuttiotalshus är relativt enkelt att bygga om jämfört med äldre hus där det är svårare att hitta räta vinklar och enkla grundkonstruktioner. 

– Vi har absolut fått ett bättre planerat hus, menar Mikael som också tillägger att man slipper ta hand om mycket krångel själv. Byggaren ser till det byggtekniska medan arkitekten, som inte alltid är lika snabb, oftast har en bättre lösning i slutänden. Sofia och vår konstruktör hade tämligen heta diskussioner, ett tag trodde jag nästan att de skulle börja slänga grejor på varandra, vi är glada att det alltid var Sofia som gick segrande ur striden!

Arkitektritad tillbyggnad

Foto: Sofia Björkdahl

Träpanel under takfot och balkonger, och ek i framkant av balkong och kring entrédörr, ger ett alldeles särskilt mervärde.

– Vi har fått ett mer väldisponerat hus som är öppnare och luftigare än det gamla, säger Mikael Linevik. Vi har två nya sovrum och de gamla har blivit betydligt större. Det nya huset är estetiskt också mycket mer tilltalande än det gamla.

Arkitektritad tillbyggnad

Foto: Sofia Björkdahl

Tomten ligger 10-15 meter upp från gatan bland tallar och berghällar vilket gav en del problem med transporter av nya stora fönsterpartier. Eftersom tillbyggnaden utgjorde mindre än hälften så krävdes däremot ingen ny energibalansberäkning, men nya fönster har gett bättre värden och en öppnare planlösning ger bättre värmespridning.

– Det gamla huset hade direktverkande el, berättar Mikael Linevik, strax före ombyggnaden borrade vi för bergvärme och drog in ett vattenburet uppvärmningssystem. Nu hamnar förbrukningen på 23 000 kWh per år.

Arkitektritad tillbyggnad

Foto: Sofia Björkdahl

Insidan är kompletterad med gipsväggar, nya takstolar i trä och isoleringen är utförd med konventionell mineralull. Luftningen under zinktaket har däremot krävt en hel del omsorg för att bli helt rätt.

Arkitektritad tillbyggnad

Foto: Sofia Björkdahl

Det gamla teglet var troligen hämtat från en äldre kyrka, en hel del fanns kvar bredvid vedboden på tomten.

– Vi kunde återanvända den tegeltraven när vi byggde ut huvudvolymen i markplanet i vinkel, berättar arkitekt Sofia Björkdahl.

Arkitektritad tillbyggnad

Foto: Sofia Björkdahl

Arkitektritad tillbyggnad

Foto: Sofia Björkdahl

Arkitektritad tillbyggnad

Foto: Sofia Björkdahl

Arkitektritad tillbyggnad

Foto: Sofia Björkdahl

Arkitektritad tillbyggnad

Foto: Sofia Björkdahl

Arkitektritad tillbyggnad

Foto: Sofia Björkdahl

Arkitektritad tillbyggnad

Genomskärningsritning av Villa MM

Arkitektritad tillbyggnad

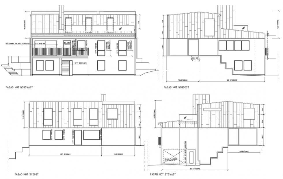
Fasadritningar, Villa MM.