Utbyggnad av en skärgårdsstuga på Ljusterö

När ägarna till skärgårdsstugan på Ljusterö behövde mer plats än de 70 kvm de hade, vände de sig till sin vän arkitekt Per Kraft vid 2BK Arkitekter i Stockholm för att rita på en utbyggnad av huset.
Ny entré

Foto: Tove Falk Olsson

Huset byggdes ursprungligen på 1940-talet och hade blivit tillbyggt på 60-talet. 

Ägarna behövde nu ett större rum för umgänge och ett sovrum till. Per Kraft löste det genom att rita en enkel länga på 59 kvm med sadeltak som han dockade mot det gamla huset. 

– Det finns ingen detaljplan för området, utan det var helt fritt. Bygglovet gick igenom utan problem, berättar Per.

Tillbyggt sommarhus

Foto: Tove Falk Olsson

Beställaren bestämde sig för att klä om fasaden även på det gamla huset som hade liggande panel, för att få det enhetligt.

– Jag la mycket omsorg på fasaden och måttsatte varenda panelbräda i förhållande till fönstren som har fönsterluckor. När man stänger luckorna ska allt linjera och harmoniera, säger Per.

Fönsterluckor

Foto: Tove Falk Olsson

– Vi hade en väldigt bra snickare som sedan när han bytte panel på gamla huset - på eget bevåg - sågade panelen i längdriktningen få samma utförande där. Det var roligt att han la en sådan omsorg på det, berättar Per.

De stora fönsterluckorna fungerar som både sol- och insynsskydd. 

Per har löst vattenavrinningen på ett elegant sätt. Eftersom tillbyggnaden är placerad i vinkel mot den gamla huskroppen lutar ränndalen och vattnet rinner bort.

Fönsterluckor

Foto: Tove Falk Olsson

I länken mellan de båda huskropparna placerade han husets nya entré. 

Allrum

Foto: Tove Falk Olsson

– Genom att den nya delen är förskjuten i förhållande till den gamla, bildas ett tydligt entrérum att mötas av och ett skyddat trädgårdsrum att vara i.

Trappa

Foto: Tove Falk Olsson

Det gamla huset har källare, även den på 70 kvm. Tillbyggnaden däremot ligger i nivå med marken, så att man därifrån får bättre kontakt med trädgården. Per har också gett tillbyggnaden en generös takhöjd och stora fönster, i kontrast mot det gamla 40-talshuset.

Matplats

Foto: Tove Falk Olsson

Ett nytt rum för umgänge med god kontakt med trädgård och uteplats.

 

Öppen spis

Foto: Tove Falk Olsson

Är det någon skillnad mellan att rita till ett fritidshus och ett hus för permanentboende?

– Ja, absolut. Det är enklare och friare att rita en tillbyggnad för ett fritidshus. Man har inga energikrav i ett hus man inte bor i året runt. Inte heller samma krav på tillgänglighet, vilket gör att man kan ha nivåskillnad som vi har här. Annars hade vi varit tvungna att ha toalett och rum för matlagning i entréplan, säger Per.

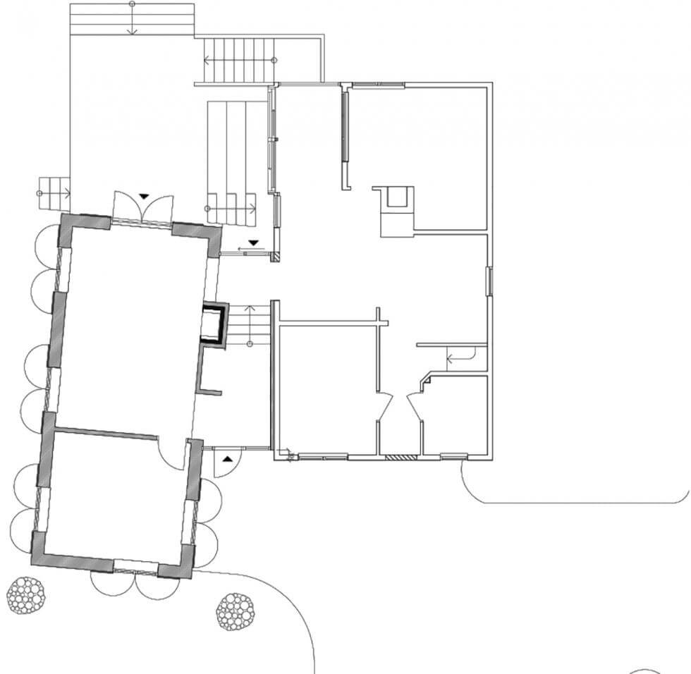
Planlösning

Planlösning. Ritning: 2BK Arkitekter

Både Pers och snickarens arbete med tillbyggnaden utfördes på löpande räkning och han vill inte avslöja vad det kostade. 

– Men i den här typen av projekt brukar arkitektkostnaden hamna på 10% av totala byggkostnaden, speciellt om man har en aktiv roll i bygget, säger Per.