Tidstypiskt atriumhus från 1966 i Kobbehall

På 1960-talet introducerades en helt ny husmodell, atriumhuset. I Kobbehall i Göteborg ligger en atriumpärla från 1966, med snygg oregelbunden sten på golvet i atriet och den rätta röda tegelfasaden med kopparplåt.
Sextiotalshus

Foto alla bilder: Jan-Eric Olander

Villaområdet Kobbehall i stadsdelen Askim i Göteborg etablerades på sextiotalet, med högt läge och utsikt över Askimsviken. På Kobbehallsvägen 23 ligger en 1960-talspärla med den tidstypiska atriumformen.

Flygbild över sextiotalshus

Huset är byggt i ett plan, med garage i en del av källarplanet. Atriumhus kallas det när flera smala huskroppar placeras i en kvadrat så att det bildas en gård i mitten. Detta var en av två nya husmodeller som såg dagens ljus på 1960-talet, den andra är vinkelhus, enligt boken Så byggdes villan av Björk, Nordling, Reppen. I det här huset bildar skogen den fjärde väggen i den privata atriumgården.

Entré

På 1960-talstypiskt vis har huset en fasad av rött tegel och plåtdetaljer av koppar. Taket är låglutande och belagt med papp.

Entré
Kringbyggd uteplats

Fasaden har ett horistontellt uttryck genom raka linjer och enkla former.

Eldstad

Fram till 1950-talet byggde man hus med källare på hög sockel. Nu började man med låga socklar och platta på mark. På så sätt blev trädgården en del av huset, rum även ute.

Utsikt

Huset byggdes 1966 och har en boarea på 212 kvm och en biarea på 98 kvm. Här finns åtta rum och kök.

Vardagsrum

Huset är byggt med stomme och bjälklag av betong.

Matplats

En del av huset har källare, resterande är byggt på platta på mark. Kök och matplats ligger en halv trappa upp från entré och vardagsrum.

Kök

Köket har genomgått en renovering med tydlig 1990-talsstil. Köksluckorna är av alm och bänkskivor av öländsk kalksten.

Matplats

Ventilationen är självdrag. Huset värms med bergvärme via ett vattenburet värmesystem. Enligt energideklarationen har det energiklass F, med en energiprestanda på 168 kWh/kvm och år. De totala driftskostnaderna ligger på 4 300 kr per månad.

Korridor

I den högra huskroppen finns ett allrum och en korridor som leder till två sovrum. Dörrarna har underljus med hamrat glas.

Sovrum

Föräldrarnas sovrum.

Badrum

Badrum med mosaik, förvaring i teak, bänkskiva i Corian och specialbyggt badkar, ser ut att vara i Corian även det. Innertaket har tunna ribbor av teak och infällda spottar.

Gästtoalett

Gästtoalett i original med svart handfat.

Kontor

Arbetsrum.

Källarplan med gästrum

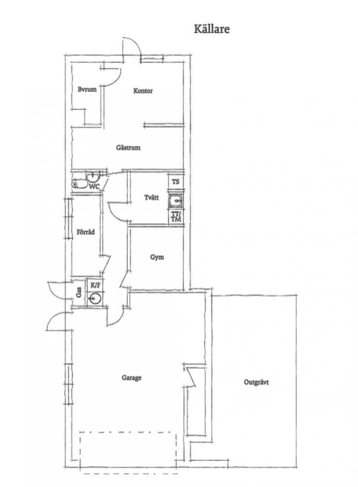
Halva huset har källare. På dessa 98 kvm finns garage, gym, tvättstuga, förråd, gästrum, kontor och ett badrum.

Överbyggd ingång

Anledningen till att vi får njuta av 1960-talshuset på Kobbehallsvägen 23 idag är att det har varit till salu en tid hos Krister Nilsson på Stadshem för 10 250 000 kr. Det såldes dock just innan publicering av den här artikeln för 14 500 000 kr.

Uteplats

Atriumgården.

Trädgård
60-talshus

Den här artikeln ingår i vår artikelserie Fredagshuset, där vi tittar närmare på hus som ligger till salu, för att inspireras och lära oss något nytt. Artikeln är inte sponsrad.

Planlösning entréplan

Planlösning entréplan.

Planlösning källarplan

Planlösning källarplan.