3 098 läst ·
21 svar
3k läst
21 svar
Vilka (om några) väggar är bärande?
Ok, då är jag med - stort tack!A AG A skrev:Hela väggarna på båda sidor om balken är isåfall bärande. Det är för stora avstånd för att inte ha en bärande vägg på underplanet. Så, vi kan nästan helt utesluta att den inte skulle vara bärande.
Så, jag kan garantera att det streckande är en dold/inbyggd/balk, och väggarna på hela väggarna på båda sidor är också bärande. Oavsett om de är murade eller klädda med gips.
Ok, då är jag med - stort tack!A AG A skrev:Hela väggarna på båda sidor om balken är isåfall bärande. Det är för stora avstånd för att inte ha en bärande vägg på underplanet. Så, vi kan nästan helt utesluta att den inte skulle vara bärande.
Så, jag kan garantera att det streckande är en dold/inbyggd/balk, och väggarna på hela väggarna på båda sidor är också bärande. Oavsett om de är murade eller klädda med gips.
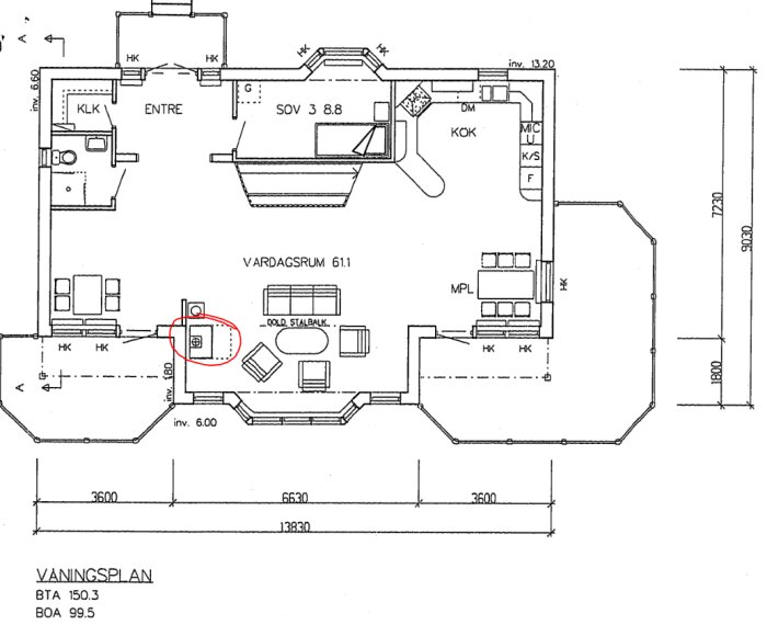
Det betyder då också att den enda innerväggen som finns både på under och över våning inte är bärande? Den vid trappen?
Lite sen på bollen men...
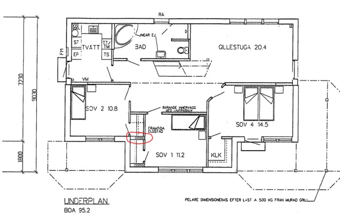
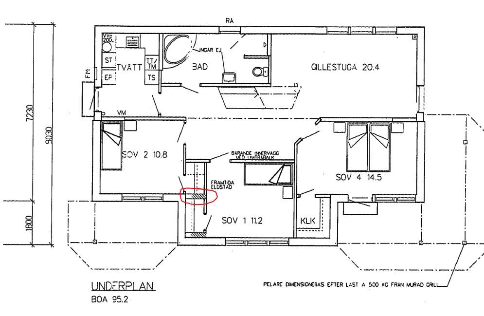
Det är i sektionsritningen man ser vad som är bärande. Alltså hjärtväggen i souterängplanet. Den streckade linjen påvisar som ni redan gissat att det någonstans finns en bärande balk inbyggd som gör att man kan ha en så stor öppning. Exakt vad den bärande balken vilar på, om det är väggarna bredvid öppningen eller om det är ytterväggen, framgår inte av ritningen.
På övervåningen finns inga bärande väggar, men det kan ändå hända att innerväggar bär upp tex innertaken.
Det är i sektionsritningen man ser vad som är bärande. Alltså hjärtväggen i souterängplanet. Den streckade linjen påvisar som ni redan gissat att det någonstans finns en bärande balk inbyggd som gör att man kan ha en så stor öppning. Exakt vad den bärande balken vilar på, om det är väggarna bredvid öppningen eller om det är ytterväggen, framgår inte av ritningen.
På övervåningen finns inga bärande väggar, men det kan ändå hända att innerväggar bär upp tex innertaken.
Inloggade ser högupplösta bilder
Logga in
Skapa konto
Gratis och tar endast 30 sekunder
I'm back - Nya utmaningar! En del som jag missade tidigare verkar det som!
Jag testar att fortsätta i min egna tråd här och ser om jag kan få lika bra hjälp igen, annars får jag starta en ny
Jag tog ned en innervägg för att jag tänkte slå ihop två små garderober till en, men jag sprang på en "spalt" med leca block. Jag gissar att det har något med kaminen / öppen spis på övervåningen att göra alternativt att det bara är förberedelse för en ny öppen spis på undervåningen. Men frågan är om den fyller någon annan funktion isf, t.ex. om den håller den upp/bär öppna spisen på ovanvåningen? Eller, kan jag bara ta bort det?
(Jag har bara ringat in den del som delar de små garderoberna men det finns en likadan vägg längst ner i den garderoben närmast ytterväggen också, antar att det är ser likadant ut där, men har inte tagit bort väggen och kollat)
Se bilder!
Hittade också en del ritningar med "framtida eldstad" om det har med saken att göra. Är detta bara förberedelse för brandskyddet? Dvs, det fyller ingen funktion alls för kaminen på övervåningen?
Skickar även med en bild på själva spalten där (passar även på att få med lite av den bärande innerbalken som diskuterats ovan i tråden - den är väldigt bärande
)
STORT tack för all hjälp som vanligt.
Jag testar att fortsätta i min egna tråd här och ser om jag kan få lika bra hjälp igen, annars får jag starta en ny
Jag tog ned en innervägg för att jag tänkte slå ihop två små garderober till en, men jag sprang på en "spalt" med leca block. Jag gissar att det har något med kaminen / öppen spis på övervåningen att göra alternativt att det bara är förberedelse för en ny öppen spis på undervåningen. Men frågan är om den fyller någon annan funktion isf, t.ex. om den håller den upp/bär öppna spisen på ovanvåningen? Eller, kan jag bara ta bort det?
(Jag har bara ringat in den del som delar de små garderoberna men det finns en likadan vägg längst ner i den garderoben närmast ytterväggen också, antar att det är ser likadant ut där, men har inte tagit bort väggen och kollat)
Se bilder!
Inloggade ser högupplösta bilder
Logga in
Skapa konto
Gratis och tar endast 30 sekunder
Inloggade ser högupplösta bilder
Logga in
Skapa konto
Gratis och tar endast 30 sekunder
Hittade också en del ritningar med "framtida eldstad" om det har med saken att göra. Är detta bara förberedelse för brandskyddet? Dvs, det fyller ingen funktion alls för kaminen på övervåningen?
Inloggade ser högupplösta bilder
Logga in
Skapa konto
Gratis och tar endast 30 sekunder
Skickar även med en bild på själva spalten där (passar även på att få med lite av den bärande innerbalken som diskuterats ovan i tråden - den är väldigt bärande
Inloggade ser högupplösta bilder
Logga in
Skapa konto
Gratis och tar endast 30 sekunder
Inloggade ser högupplösta bilder
Logga in
Skapa konto
Gratis och tar endast 30 sekunder
STORT tack för all hjälp som vanligt.
Klicka här för att svara
Liknande trådar
-
Några problem med att konstant köra Nibe 360P som elpanna?
Värmepumpar -
Vilka regler för attefallshus på strandtomt?
Frågor och svar om byggnation -
Vilka spolhandtag är kompatibla med Ryobi högtryckstvätt?
Verktyg & Maskiner -
Några element plötsligt varma mitt i sommaren
Värme allmänt -
Öppna vilka lås som helst på några sekunder
Övrigt husrelaterat


