Hejsan alla kunniga!
Har precis hämtat nycklarna till min nya lägenhet i ett 30-talshus och vill öppna upp mellan kök och vardagsrum.
Väggen är byggd i stenblock med vad som ser ut att vara någon puts/murbruk emellan.
Stötte snabbt på problem när det var draget en elsladd snett i väggen som jag såklart kapade av och stängde av strömmen för mig själv.
Nu till min fråga, kan det finnas några mer trubbel med denna vägg?
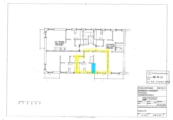
Vad jag kan se enligt ritningen har den ingen bärande funktion. Den är seg att såga i även med sågblad för tegel/murbruk.
Har bestämt mig för att ta in någon som gör detta åt mig, men finns det något jag bör tänka på?
Tack så länge!
Har precis hämtat nycklarna till min nya lägenhet i ett 30-talshus och vill öppna upp mellan kök och vardagsrum.
Väggen är byggd i stenblock med vad som ser ut att vara någon puts/murbruk emellan.
Stötte snabbt på problem när det var draget en elsladd snett i väggen som jag såklart kapade av och stängde av strömmen för mig själv.
Nu till min fråga, kan det finnas några mer trubbel med denna vägg?
Vad jag kan se enligt ritningen har den ingen bärande funktion. Den är seg att såga i även med sågblad för tegel/murbruk.
Har bestämt mig för att ta in någon som gör detta åt mig, men finns det något jag bör tänka på?
Tack så länge!
Medlem
· Blekinge
· 10 117 inlägg
Jag kan inte läsa ut av ritningen att väggen inte är bärande. För det behövs mer information, framför allt hur bjälklaget ovanför är gjort. Troligen behövs även någon form av konstruktionsritning.
Väggen ser ut att vara av slaggsten, dammar något sinnesjukt. Men är ganska lätt att såga ner med en sådan här https://www.byggmax.se/hultafors-be...iRm1g9pdGd-qh22HQvXwwRoCkMMQAvD_BwE#913=14994.... eller liknande. Ang. väggens bärighet eller ej, så är jag inte rätt person att uttala mig 
Medlem
· Blekinge
· 10 117 inlägg
Med dessa ritningar klarnar allt. Det är ett träbjälklag ovanför och man ser bjälkarnas riktning och dimensioner. Då kan din vägg inte vara bärande.
Klicka här för att svara
Liknande trådar
-
Riva vägg med lättbetong i lgh från 1963
Övrigt husrelaterat -
Hur vet jag ifall jag kan riva en vägg?
Byggmaterial & Byggteknik -
Installation av radiatorer i källare med uppreglade väggar. Riva innan
Byggmaterial & Byggteknik -
Riva del av vägg i lägenhet
Planlösningar -
Riva vägg i 30-tals plankhus. Är den bärande eller ej?
Planlösningar







