3 661 läst ·
22 svar
4k läst
22 svar
Nybygge - tyck till!
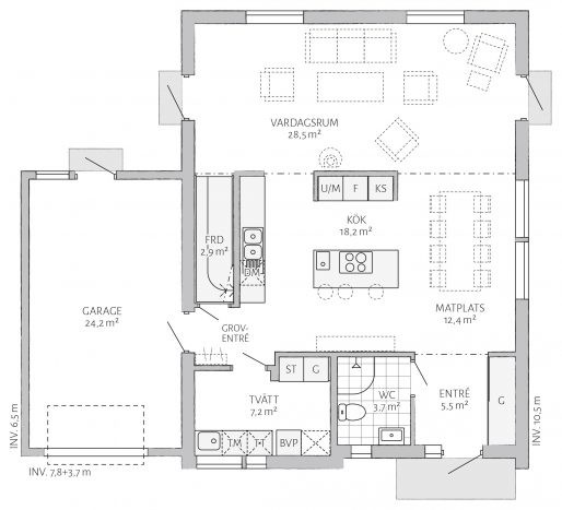
Satt och kikade nu och hittade denna planlösningen.
Med lite små moddar så känns det som en planlösning som funkat väl med vad ni vill ha.
Här hade man antingen kunnat låta entrén vara som den är, eller så hade man kunnat vrida den 90° så den är mot framsidan.
Hade man vänt riktning på trappan så hade man kunnat göra ett arb/gästrum i en del av vardagsrummet.
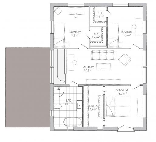
Där uppe hade trappan bytt håll, I övrigt hade inget annat behövt ändras imo.
Detta huset är på 163 kvm och är ett Eksjöhus Hagavik
Med lite små moddar så känns det som en planlösning som funkat väl med vad ni vill ha.
Inloggade ser högupplösta bilder
Logga in
Skapa konto
Gratis och tar endast 30 sekunder
Här hade man antingen kunnat låta entrén vara som den är, eller så hade man kunnat vrida den 90° så den är mot framsidan.
Hade man vänt riktning på trappan så hade man kunnat göra ett arb/gästrum i en del av vardagsrummet.
Inloggade ser högupplösta bilder
Logga in
Skapa konto
Gratis och tar endast 30 sekunder
Där uppe hade trappan bytt håll, I övrigt hade inget annat behövt ändras imo.
Detta huset är på 163 kvm och är ett Eksjöhus Hagavik
Okej, ja det låter som att vi får lägga lite krut på att vara mer kvadratsmarta!SågspånPappspikEternit skrev:
Helt anekdotiskt var mitt barndomshem 150-160 kvadratmeter (minns inte exakt). Typiskt småländskt prefab-hus, 1 1/2-plan, en takkupa på övervåningen. Man fick in 5 sovrum samt 2 bad/duschrum på ytan, och det upplevdes inte trångt.
Det går att vara kvadratmeter-smart! Ni borde lätt kunna få in det ni vill ha på motsvarande yta.
tack för tipset, fick lite nya idéer av planlösningen som jag ska skissa på ikväll! behöver stuva om placeringen på vissa rum men det verkar inte omöjligt..J Jarlsgård skrev:Satt och kikade nu och hittade denna planlösningen.
Med lite små moddar så känns det som en planlösning som funkat väl med vad ni vill ha.
[bild]
Här hade man antingen kunnat låta entrén vara som den är, eller så hade man kunnat vrida den 90° så den är mot framsidan.
Hade man vänt riktning på trappan så hade man kunnat göra ett arb/gästrum i en del av vardagsrummet.
[bild]
Där uppe hade trappan bytt håll, I övrigt hade inget annat behövt ändras imo.
Detta huset är på 163 kvm och är ett Eksjöhus Hagavik![]()
bra att veta vad mer vi kan tänka på! Vi får väl helt enkelt skissa på en ny planlösning och utvärderaJ Jarlsgård skrev:Nu ska vi se om vi kan få till detta.
Börjar återigen (ja, nu är jag tjatig!) med att kvadrat är inte allt.
Jag anser att många går vilse i kvadraten, man målar in sig i ett hörn och man kanske inser att få till ett yteffektivt hus inte är speciellt lätt.
Att rita ett hus med 6 rok på 200 kvm skulle jag vilja påstå att de flesta kan, men att rita ett på 150 kvm är inte lika lätt, i synnerhet inte om man ska få de 150 kvm att kännas som 200 kvm.
Men det går!
Att gå in på långsidan som även är där "baksidan" är ser jag inte som några konstigheter. Håller man lite avstånd från entrén till uteplatsen så kommer de upplevas som 2 olika områden. Det känns även mer naturligt att ha entrén på den sidan man ser först, blir mer logiskt liksom
Vad kan man tänka på mer? Vart man har vatten, rent ekonomiskt är det smartaste att lägga wc, tvätt och kök i ett kluster. Ska man ha badrum på ovanvåningen bör man förlägga detta ovanför de resterande för att få så korta rördragningar som möjligt. Det är bra ur ekonomisk aspekt eftersom det blir minskat material, men även ur problem då det är kortare sträcka för skiten att ta sig
För att avsluta.
Det med priser är ju såklart svårt att få på tal när man är i planeringsstadiet. Där blir det lite till att stötta sig mot de där 20-25kkr/kvm riktlinjen. Det man kan göra är att se hos tillverkare, tex Vårgårdahus, Fiskarhedenvillan mfl. som redovisar vad huspaketet kostar, för snarlika hus. Sedan får man göra typ 1 miljon i påslag (mellan vänster tumme och höger pekfinger).
Ja jag tror det blir bäst!
Att rita ett hus är ingen enkel grej och tar lång tid och många tankar. Men framförallt testande
Sitter själv och skissar på ett frsmtidshus och jag har nog hållt på i 2 år
Börjar bli nöjd, men inte helt än
Att rita ett hus är ingen enkel grej och tar lång tid och många tankar. Men framförallt testande
Sitter själv och skissar på ett frsmtidshus och jag har nog hållt på i 2 år
Börjar bli nöjd, men inte helt än
Lite andra tankar, finns detaljplan? Och vad säger den?
Och var i livet befinner ni er?
För det skulle jag säga påverkar planlösningen en hel del också.
För den som säger att bra arkitektur funkar för alla åldrar snackar strunt, däremot kan man skapa en flexibel planlösning som går att förändra med tiden om så behövs.
Liten avstickare, men tycker ändå det är relevant
Är man tex i småbarnsåren så kanske man har en vision om att kunna ligga i sängen och titta på utsikten, men så ser sällan verkligheten ut när Sixten 3 år kommer "mamma, pappa, jag vill leka"
och då blir det något man vill ha, men sällan kan njuta av.
Likaså kan en ergonomisk trappa vara en stark prio om man är i 50-60 års åldern för att säkerställa att man kommer kunna bo där länge.
Ja, du/ni förstår nog vad jag menar
Och var i livet befinner ni er?
För det skulle jag säga påverkar planlösningen en hel del också.
För den som säger att bra arkitektur funkar för alla åldrar snackar strunt, däremot kan man skapa en flexibel planlösning som går att förändra med tiden om så behövs.
Liten avstickare, men tycker ändå det är relevant
Är man tex i småbarnsåren så kanske man har en vision om att kunna ligga i sängen och titta på utsikten, men så ser sällan verkligheten ut när Sixten 3 år kommer "mamma, pappa, jag vill leka"
Likaså kan en ergonomisk trappa vara en stark prio om man är i 50-60 års åldern för att säkerställa att man kommer kunna bo där länge.
Ja, du/ni förstår nog vad jag menar
spännande, då får du dela med dig av framtidshuset sen när du är nöjd!J Jarlsgård skrev:Lite andra tankar, finns detaljplan? Och vad säger den?
Och var i livet befinner ni er?
För det skulle jag säga påverkar planlösningen en hel del också.
För den som säger att bra arkitektur funkar för alla åldrar snackar strunt, däremot kan man skapa en flexibel planlösning som går att förändra med tiden om så behövs.
Liten avstickare, men tycker ändå det är relevant
Är man tex i småbarnsåren så kanske man har en vision om att kunna ligga i sängen och titta på utsikten, men så ser sällan verkligheten ut när Sixten 3 år kommer "mamma, pappa, jag vill leka"och då blir det något man vill ha, men sällan kan njuta av.
Likaså kan en ergonomisk trappa vara en stark prio om man är i 50-60 års åldern för att säkerställa att man kommer kunna bo där länge.
Ja, du/ni förstår nog vad jag menar![]()
vi har två småbarn, 1 och 3 år, så vi önskar ju ett funktionellt familjehus helt enkelt. Vad gäller detaljplan så finns det men den säger inget utmärkande vad jag vet, vi får bygga på 25% av tomten som är 1200 kvm, 4 m från tomtgräns samt 8 m nockhöjd! Är det något mer som brukar vara av intresse?
Ja men då är vi på ungefär samma plats i livetB Bemby skrev:spännande, då får du dela med dig av framtidshuset sen när du är nöjd!
vi har två småbarn, 1 och 3 år, så vi önskar ju ett funktionellt familjehus helt enkelt. Vad gäller detaljplan så finns det men den säger inget utmärkande vad jag vet, vi får bygga på 25% av tomten som är 1200 kvm, 4 m från tomtgräns samt 8 m nockhöjd! Är det något mer som brukar vara av intresse?
Ja någongång går jag public med det, just nu är det på 131m² och jag börjar bli nöjd
Men åter till er!
Tillåtande byggrätt! Med tanke på barnens ålder så hade jag dock om möjligt satsat på enplans
Bor själv i 2 plans idag och där finns det typ 2 lägen, antingen så har man kaos i vardagsrummet, men uppsikt på barnen, eller så är dem får uppe och man har dålig koll tex när man lagar mat och så
Klicka här för att svara
Liknande trådar
-
Nybygge med stegljudsproblem - vad gäller?
Bostadsrätt -
Ny sopsortering snart - vad tycker ni?
Övrigt husrelaterat -
Från 15% till 10% i kontantinsats - vad tycker ni?
Priser, Kalkyler, Fastighetsskatt m m. -
VA - Ny anslutningskostnader när befintlig byggnad styckas av?
Juridik -
Vangstycke till altantrappa - hur skulle ni gjort?
Altan & Uteplats