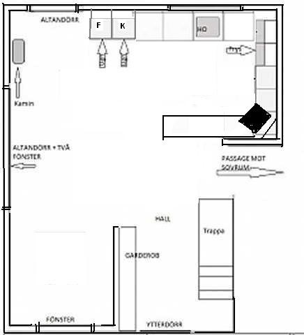
Nu tog jag fram en av våra andra ritningar... Problemet med den är att vi inte vet vad vi ska göra med det övre högra hörnet eftersom vi så gärna vill att ugnarna ska vara upphöjda...
Dra bänken runt hörnet ända fram till ugnarna, avställningsyta jämnte ugnen är bra. Eller så kan ni i hörnet ha ett överskåp som går ända ner till bänkskivan, eller ett jalusiskåp.
alternativt
Flytta kyl-frys till mellan fönster och altandörr, ersätt med ett skåp och justera ugnarna ett snäpp åt höger och dra bänken runt hörnet hela vägen till ugnarna.
alternativt
Flytta kyl-frys till mellan fönster och altandörr, ersätt med ett skåp och justera ugnarna ett snäpp åt höger och dra bänken runt hörnet hela vägen till ugnarna.
Hmmm... så den här planeringen gillades bättre. Det ger oss en hel del att tänka på känner jag.
Eftersom jag ändå inte kan släppa den planering jag visade först... Vad händer om man lägger till en liten ho bredvid hällen? Då slipper man ju springandet runt hörnet för att komma åt att fylla på och slå ut vatten. Om vi dessutom har sittmöjligheter vid ön så kommer vi ju närmare kyl för att minska på springet i vardagen. Det inritade matbordet kommer vi inte att kunna flytta på om köket ska vara där det är inritat då vi vill ha ett stort bord, vilket inte får plats någon annanstans.
Eftersom jag ändå inte kan släppa den planering jag visade först... Vad händer om man lägger till en liten ho bredvid hällen? Då slipper man ju springandet runt hörnet för att komma åt att fylla på och slå ut vatten. Om vi dessutom har sittmöjligheter vid ön så kommer vi ju närmare kyl för att minska på springet i vardagen. Det inritade matbordet kommer vi inte att kunna flytta på om köket ska vara där det är inritat då vi vill ha ett stort bord, vilket inte får plats någon annanstans.
Den nischen ser ut att vara ca 220 bred, det ryms alltså ett matbord, men inte något jättestort. 80cm brett - inga större problem. 1 meter brett, det blir rätt inklämt.Dclxvi skrev:
Jag gick precis och mätte i vårt i kök.
Man kan inte placera hällen i hörnet? Jag tycker det brukar bli väldigt bra; ogillar hörnskåp i allmänhet och då kan man kakla upp en liten fin hylla längst in bakom hällen.
Håller med om att frys/kyl inte ska vara längst in, närmare dörr och matbord blir mer praktiskt.
Måste ni ha två ugnar? Räcker inte 1 ugn + 1 micro?
Håller med om att frys/kyl inte ska vara längst in, närmare dörr och matbord blir mer praktiskt.
Måste ni ha två ugnar? Räcker inte 1 ugn + 1 micro?
Jag kan ju inte tala för någon annan än mig själv, men troligen skulle jag snöa in på något åt det här hållet.
En liten halvö att hänga runt och umgås med kocken.
Halvön är också den givna platsen för att duka upp mat på för självservering.
Sen skulle jag nog också planera för att ha matbordet lite mer mitt i allt och alltså närmare själva köket (om inga speciella förutsättningar, typ utsikt mm, gjorde annat anspråk).
En liten halvö att hänga runt och umgås med kocken.
Halvön är också den givna platsen för att duka upp mat på för självservering.
Sen skulle jag nog också planera för att ha matbordet lite mer mitt i allt och alltså närmare själva köket (om inga speciella förutsättningar, typ utsikt mm, gjorde annat anspråk).
Klicka här för att svara



