Jag har tänkt mig att lyfta sommarstugan från marken och skapa en krypgrund på ca 600 mm.
Huset står idag på mer eller mindre trasiga lättbetongblock och tegelstenar.
Jag tänker mig att jag ska lägga tvärgående balkar för att på så sätt kunna lyfta huset från utsidan och alltså få det ”fribärande” från långvägg till långvägg. (Slippa ha upplag under huset.)
Skulle vilja veta vilken dimension jag kan behöva eller om det finns smartare idé. Har även tänkt på stålbalk men det verkar rätt mycket dyrare.
Har sett 6 meters limträbalk på byggmax som kanske kunde duga (tänker mig att det överskjutande 2 metrarna skall vara till att bygga ut huset i ett senare skede, med ny taklutning och bättre isolerade väggar), till att-göra-listan med blir det veranda.
Huset står vid polcirkeln så det är rätt ordentliga snölaster.
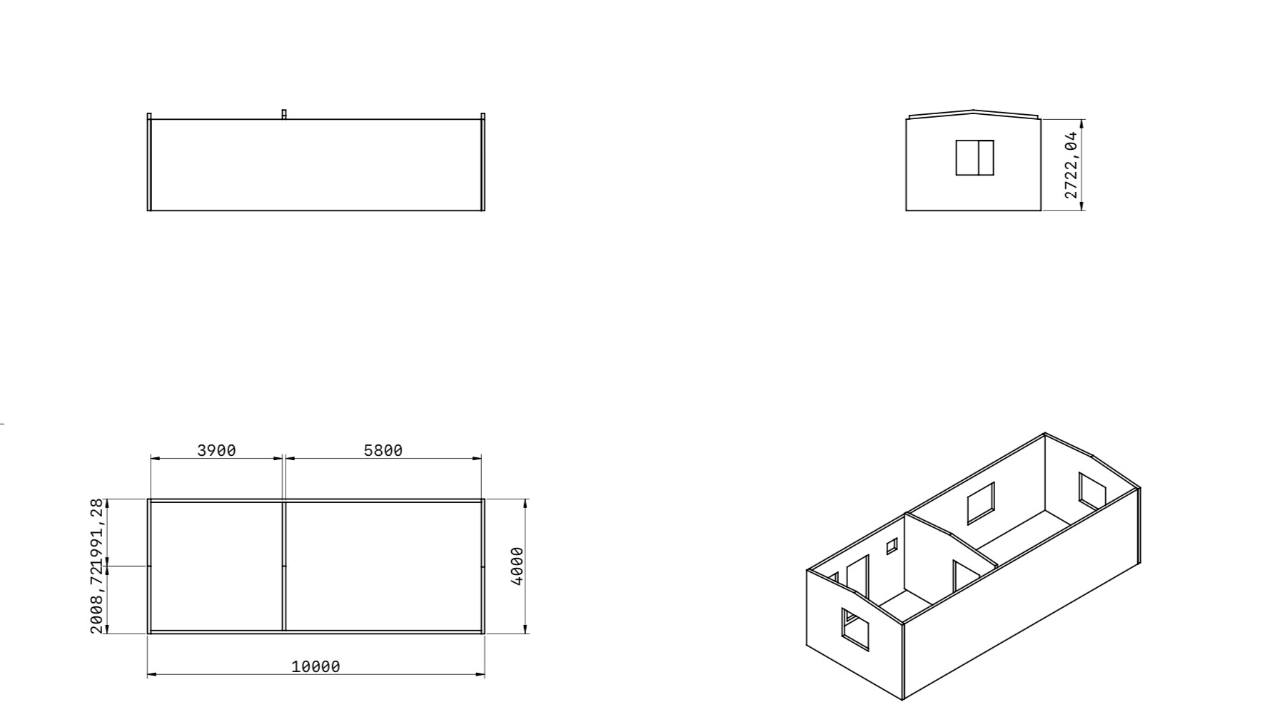
Bild 1 är huset med dimensioner. Bild 2 är hur jag tänker mig balkarna.
Väggen mitt i huset är där huset var delat en gång i tiden.
Om någon kan göra ett överslag på vilka dimensioner som behövs (och cc-mått) eller kan ge tips på dimensioneringsverktyg på webben vore jag tacksam.
(Upplagen är tänkta att vara vid respektive balk under längsta ytterväggarna) och i änden på balken)
(Skulle även kunna vara 4 meters balk)
Huset står idag på mer eller mindre trasiga lättbetongblock och tegelstenar.
Jag tänker mig att jag ska lägga tvärgående balkar för att på så sätt kunna lyfta huset från utsidan och alltså få det ”fribärande” från långvägg till långvägg. (Slippa ha upplag under huset.)
Skulle vilja veta vilken dimension jag kan behöva eller om det finns smartare idé. Har även tänkt på stålbalk men det verkar rätt mycket dyrare.
Har sett 6 meters limträbalk på byggmax som kanske kunde duga (tänker mig att det överskjutande 2 metrarna skall vara till att bygga ut huset i ett senare skede, med ny taklutning och bättre isolerade väggar), till att-göra-listan med blir det veranda.
Huset står vid polcirkeln så det är rätt ordentliga snölaster.
Bild 1 är huset med dimensioner. Bild 2 är hur jag tänker mig balkarna.
Väggen mitt i huset är där huset var delat en gång i tiden.
Om någon kan göra ett överslag på vilka dimensioner som behövs (och cc-mått) eller kan ge tips på dimensioneringsverktyg på webben vore jag tacksam.
(Upplagen är tänkta att vara vid respektive balk under längsta ytterväggarna) och i änden på balken)
(Skulle även kunna vara 4 meters balk)
Inga kommentarer alls?K Krazzeson skrev:Jag har tänkt mig att lyfta sommarstugan från marken och skapa en krypgrund på ca 600 mm.
Huset står idag på mer eller mindre trasiga lättbetongblock och tegelstenar.
Jag tänker mig att jag ska lägga tvärgående balkar för att på så sätt kunna lyfta huset från utsidan och alltså få det ”fribärande” från långvägg till långvägg. (Slippa ha upplag under huset.)
Skulle vilja veta vilken dimension jag kan behöva eller om det finns smartare idé. Har även tänkt på stålbalk men det verkar rätt mycket dyrare.
Har sett 6 meters limträbalk på byggmax som kanske kunde duga (tänker mig att det överskjutande 2 metrarna skall vara till att bygga ut huset i ett senare skede, med ny taklutning och bättre isolerade väggar), till att-göra-listan med blir det veranda.
Huset står vid polcirkeln så det är rätt ordentliga snölaster.
Bild 1 är huset med dimensioner. Bild 2 är hur jag tänker mig balkarna.
Väggen mitt i huset är där huset var delat en gång i tiden.
Om någon kan göra ett överslag på vilka dimensioner som behövs (och cc-mått) eller kan ge tips på dimensioneringsverktyg på webben vore jag tacksam.
(Upplagen är tänkta att vara vid respektive balk under längsta ytterväggarna) och i änden på balken)
(Skulle även kunna vara 4 meters balk)
Klicka här för att svara
Liknande trådar
-
Kan jag måla en limträbalk inohus med grundfärg för trä utomhus?
Färg, Måla & Tapetsera -
Förstärkning av Limträbalk
Byggnadsfysik -
Dubbelcarport med förråd - Dimensionering limträbalk
Utbyggnad och tillbyggnad -
Badrum dimensionering + vägg istället för limträbalk
Badrum -
Hjälpa med dimensioneringsberäkningar för limträbalk (balkong)
Byggmaterial & Byggteknik

