Danskinspirerad tegelvilla i Lerberget

När Flemming och Lidija Hermann valde att bygga nytt i Lerberget söder om Höganäs, var ett arkitektritat hus med tegelfasad en självklarhet. Jakobsson Pusterla Arkitekter har försvenskat den danska inspirationen och lyckats gestalta en generöst rymlig och välplanerad planlösning.
Vy från gatan över arkitektritat hus i Lerberget

Foto: Kasper Dudzik

Sånär som på den lutande fasaden är familjen Hermanns hus i Lerberget, där Öresund möter Kattegatt, ett okomplicerat hus. Inte desto mindre skiljer det sig avsevärt från den omgivande villamattan och alla kataloghus.

– Det är andra gången jag anlitar en arkitekt för att bygga hus, förklarar den danske broingenjören Flemming Hermann, och det är en självklarhet. Du berättar vad du önskar, och sedan kommer arkitekten med förslag som du knappast hade kunnat drömma om, och snyggt blir det också.

Fasad mot gatan arkitektritat hus i Lerberget

Foto: Kasper Dudzik

Flemming och Lidija Hermann hittade arkitektkontoret Jakobsson Pusterla via en nätportal där de hade möjlighet att beställa offerter. Men efter att ha besökt kontorets hemsida och bland annat granskat Villa Enestigen, tyckte han att det såg alldeles för dyrt ut, de skulle knappast ha råd.

– Nu tycker jag inte att det blev så dyrt, säger Flemming samtidigt som han medger att slutpriset på cirka 6 miljoner inklusive tomt gick över budgeten. Helt ärligt, det är klart att det kostar pengar, men det här huset är helt ritat utifrån våra önskningar kombinerat med våra och arkitektens idéer. Med de färdiga ritningarna har vi kunnat gå direkt till olika entreprenörer, hela projektet har varit smidigt och effektivt.

Närbild av tegel på arkitektritat hus i Lerberget

Foto: Kasper Dudzik

Arkitekterna Jan Jakobsson och Marco Pusterla uppskattar som många av sina kollegor den danska arkitekturen, men att arbeta med tegel är även utan utländsk inspiration en självklarhet i flera olika projekt. De hade precis startat sitt kontor när de fick kontakt med familjen Hermann och Marco Putserla menar att arbeta med en dansk beställare som Flemming borgade för en bra relation.

– Danskarna uppskattar hantverksmässiga detaljer och materialitet, understryker Marco Pusterla, och det gäller även nybyggda hus. I Danmark finns det både beställare som vågar och är beredda att betala, och hantverkare som kan jobbet. Beställningen var inte så komplicerad, de ville ha ett normalt men rejält hus.

Vardagsrummet i arkitektritat hus i Lerberget

Foto: Kasper Dudzik

Villan i Lerberget är byggd med platta på mark, men med gjutna sulor istället för kantelement i cellplast. Den bärande stommen med håltegel har en stenullisolering om 36,5 centimeter samt en yttre luftspalt. Teglet är hämtat från klassiska danska Petersen Tegl A/S vars olika brända tegelstenarna ger en levande fasad.

– Invändigt ger det lutande taket nära nog dubbel höjd i vardagsrummet, förklarar Jan Jakobsson. Vi har inga överytor utan en effektiv planlösning, och så en rejäl kamin mitt i huset där fasadteglet dyker upp igen.

Vy från trädgården över arkitektritat hus i Lerberget

Foto: Kasper Dudzik

Dansk arkitektur och design kan, så när som på Bjarke Ingels spektakulärt publikfriande kontor BIG, kännas rätt modernistiskt konservativt med en förkärlek för femtiotalets designklassiker och en exakt, stram och reducerad arkitektur. I vårt grannland finns en tradition att anlita professionella när det ska formges och byggas, medan vi i Sverige gärna vill bygga själva, kanske också ett arv från Svenska Slöjdföreningen.

– I Sverige möter jag inte så många som anlitar en arkitekt såvida de inte har väldigt gott om pengar, menar Flemming Hermann, många snickrar själva eller så väljer de kataloghus eftersom mängden sålda hus ger någon slags trygghetsgaranti. När jag anlitade två nyutexaminerade arkitekter för att bygga till mitt första hus, som just var ett kataloghus, så blev det så otroligt mycket bättre. Jag insåg att man ska undvika att snickra själv för att behålla husets värde, även om man kanske själv tycker att det ser snyggt ut.

Kvadratiska, infällda stuprännor i koppar

Foto: Kasper Dudzik

Omsorgen om detaljerna syns exempelvis i de infällda kvadratiska stuprännorna i koppar. 

Lutande fasad på arkitektritat hus i Lerberget

Foto: Kasper Dudzik

– Vi är positivt överraskade av att det är så många förbipasserande som berömmer vårt hus, berättar Flemming Hermann. Vi danskar tror ju gärna annars att jantelagen regerar i Sverige och att man inte ska skilja ut sig från mängden. Ändå tycker jag att vårt hus smälter in väl: det får sticka ut, men det avviker inte särskilt radikalt.

Vardagsrummet i arkitektritat hus i Lerberget

Foto: Kasper Dudzik

Marco Pusterla förklarar att villan i Lerberget är ett lågenergihus som med en luftvattenvärmepump kombinerar både luftvärme och ventilationsvärmeåtervinning. Flemming förklarar att man trots stora glaspartier hamnar på 45 kW/m2/år, eller närmare bestämt 7 000 kWh/år för 175 kvadratmeter.

Detaljbild av fönster och tegelväggar på arkitektritat hus i Lerberget

Foto: Kasper Dudzik

Vy från terrass på arkitektritat hus i Lerberget

Foto: Kasper Dudzik

Vy från terrass på arkitektritat hus i Lerberget

Foto: Kasper Dudzik

Fasaden på arkitektritat hus i Lerberget

Foto: Kasper Dudzik

Öppet kök - vardagsrum i arkitektritat hus i Lerberget

Foto: Kasper Dudzik

Fasad på arkitektritat hus i Lerberget

Foto: Kasper Dudzik

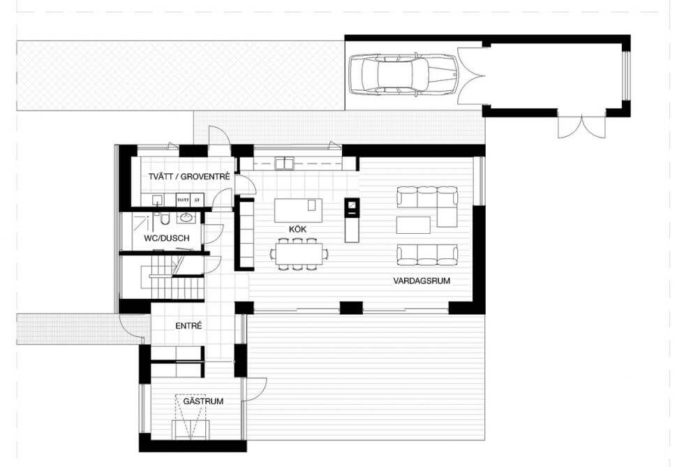
Planlösning entréplan

Planlösning entréplan.

Planlösning övre plan.

Planlösning övre plan.

Sektionsritning

Sektionsritningar.

Fasadritningar

Ritning fasader.

Fasadritningar

Ritning fasader.