Attefallshus - mina favoriter och inspiration
Det finns så många spännande möjligheter med de små attefallshusen. Här har jag hittat några attefallshus och andra små hus jag tycker om som jag hoppas kan inspirera inför bygget av ett litet hus.

Hittat på Pinterest på tinyhouseswoon.com Urvackert!

Attefallshuset Tidlös&hög från Sommarnöjen
Grundkostnad 329 000kr. Med kök och bad 468 800kr.

Inuti Attefallshuset kan det se ut såhär. Bild från Sommarnöjen.se

Detta Attefallshus har Griab ritat. En modern variant.

Inuti Griabs hus ser det ut såhär.

Från Sommarnöjen kommer detta vackra som heter Klassisk& hög.

Leva Husfabrik på Gotland har underbart fina hus. Detta heter Altea och är 33m2, men utseendet kan man få på ett mindre hus med.

Inuti ett hus från Leva husfabrik...mmmm, så gött!

På Pinterest fann jag detta fina hus. Scandinaviandeko.com

Mums! Attefallshus från boken 25kvadrat. Huset ritat av Jonas Waldemarson och Paulina Berglund.

Underbart fint litet hus med maxad inredning från Tinyhousebuild.com

Tinyhousebuild huset inifrån.

Attefallshus Ljusterö från Attefallshus.com. Kostar 349 000kr nyckelfärdigt med kök och bad.

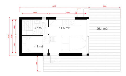
Planritning med förslag på Attefallshus.se. Man får in rätt mycket...

Med ett mysigt sovloft så blir det ännu mer plats.

Detta fina strandhus får vara med som inspiration...från Tinyhouseswoon.com

Sist en skön bild från Leva Husfabrik utanför Visby som i Sverige är mina personliga favoriter!!
Med en tomtplätt skulle jag lätt kunna leva i ett litet, litet hus som en liten, liten gumma med en liten, liten katt....
Ha en underbar helg önskar Christel
Kommentarer
2