Villa Bellevue – ett praktiskt hus med liten yta

Familjen Erichsen flyttade ut från Norrköping när deras dotter var ett år och bodde i ett gästhus på tomten för att driva husbygget. De stod själva för upphandling och har drivit arbetet från projektering till klart hus vilket tog ett och ett halvt år. Arkitektritningarna stod Max Holst för.
Villa Bellevue

Foto: Max Holst

Nästan helt i egen regi efter ett starkt inspel av arkitekt Max Holst. Trots en stram budget har småbarnsfamiljen Erichsen lyckats driva i land en drömvilla på en starkt kuperad tomt nära Kolmården. Villa Bellevue är inte endast utsikt utan bjuder även på god akustik tack vare ett speciellt utformat innertak.

Balkong

Foto: Max Holst

Utsikten var arkitekt Max Holst ledmotiv för arbetet med bygglov och ett antal detaljritningar. Förutom att ge huset dess proportioner och välja utvändiga material bistod han även med konstruktör och VVS-konsult. Arkitektens viktigaste uppgift var att efter rivningen av det gamla huset placera det nya med så pass lite sprängning som möjligt.

– Det stora rummet och terrassen med vyn ut över Bråviken är den stora behållningen, berättar Max Holst, tomten är rätt fantastisk med Kolmården och Getåravinen precis intill.

Entré

Foto: Max Holst

Max Holst ritar privatvillor sedan flera år, ett av hans största projekt är däremot Moderna Muséet där han fungerade som Rafael Moneos handläggande arkitekt precis efter avslutad arkitektutbildning. Utsidan av Villa Bellevue består av vanlig slätspont som målats med svart slamfärg.

– Vi vred huset rätt mycket i förhållande till utsikten mot Bråviken och ljuset, förklarar Max Holst, men inte för mycket eftersom de kostar att spränga, man kan spara 250 000 bara genom att flytta huset en halvmeter.

Terrass med utsikt

Foto: Max Holst

Familjen Erichsen flyttade ut från Norrköping när deras dotter var ett år och bodde i ett gästhus på tomten. De stod själva för upphandling och har drivit arbetet från projektering till klart hus vilket tog ett och ett halvt år. 

Byggkostnaden landade på 3 800 000 kr inklusive rivning av vattenskadad villa på 150kvm. Tomten kostade 2 000 000 kr, med vinterbonad gäststuga, carport och uppväxt trädgård.

– Visst var det tufft, erkänner Alexander Erichsen, men det var också en extremt rolig resa. Med facit i hand så inser vi att utan hjälp med projekteringen så innebär det orimligt mycket jobb när båda jobbar heltid och med ett litet barn. Men vi hade en stark egen vision och hittade en byggare som vi fick stort förtroende för.

Invändig trappa

Foto: Max Holst

Max Holst beskriver Villa Bellevue som ett praktiskt hus på en liten yta, huset har en boarea på 156 kvm. Föräldrarnas sovrum ligger på det övre planet tillsammans med kök och stort vardagsrum. En våning ner i suterrängdelen finns barnrum och allrum.

– Man måste inte ha två barnrum, master bedroom och massa klädkammare, man kan sprida ut funktionerna, förklarar Max Holst. När barnen är små sover de i föräldrarnas sovrum, sedan vill de ha egna rum, eget allrum och plats för kompisar att sova över utan att de stör de vuxna.

Kök med matplats

Foto: Max Holst

Inte ens i arkitektritade villor brukar ljudmiljön stå i fokus, istället är det gipsväggar- och tak som ger en hård och odämpad akustik.

– Arbetsmomentmässigt sett lade vi ner mycket jobb på att sätta upp det här ribbtaket med akustikduk bakom, säger Alexander Erichsen. Det var ett fasligt sjå att få upp det i ett så pass högt rum där det är 5,40 upp till nock. Dessutom ville vi få fram absolut rätt nyans med vit vaxning av de här fururibborna.

Kök

Foto: Max Holst

Den hyvlade kvistfria furupanelen mäter 15x50 och är monterad med ett glapp på 10 millimeter. Max Holst berättar att slätpanelen behandlats med UV-beständig klarlack.

– Många besökare har reagerat på att akustiken är så bra, tillägger Alexander Erichsen, och vi kan ha vänner med barn på besök utan att det blir en olidlig ljudnivå.

Vardagsrum och matplats

Foto: Max Holst

Tallar och gran dominerar i det karga landskapet. Den brant sluttande tomten ger vida utblickar över kuperad terräng och öppet vatten.

– Känslan vi ville komma åt var framförallt utsikten över Bråviken och det omgivande landskapet, understryker Alexander Erichsen, och vi kan ta in det här sceneriet nästan vart som helst inne i vårt hus tack vare de här stora glaspartierna.

Entré

Foto: Max Holst

Paret Erichsen har lagt ned stort arbete på att hitta rätt färgton mellan interiör och exteriör. Istället för dyrare material har de satsat på kvistfri furu och ett väl utfört hantverk.

Baksida med utsikt

Foto: Max Holst

Beställarna betonar att arkitekten Max Holst lagt ned stort arbete på att skapa ett funktionellt hus, utan att för den skull ge avkall på det estetiska.

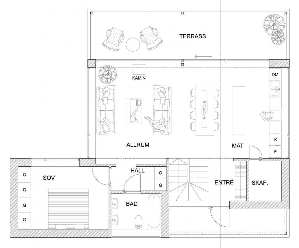
Planlösning entréplan

Planlösning entréplan.

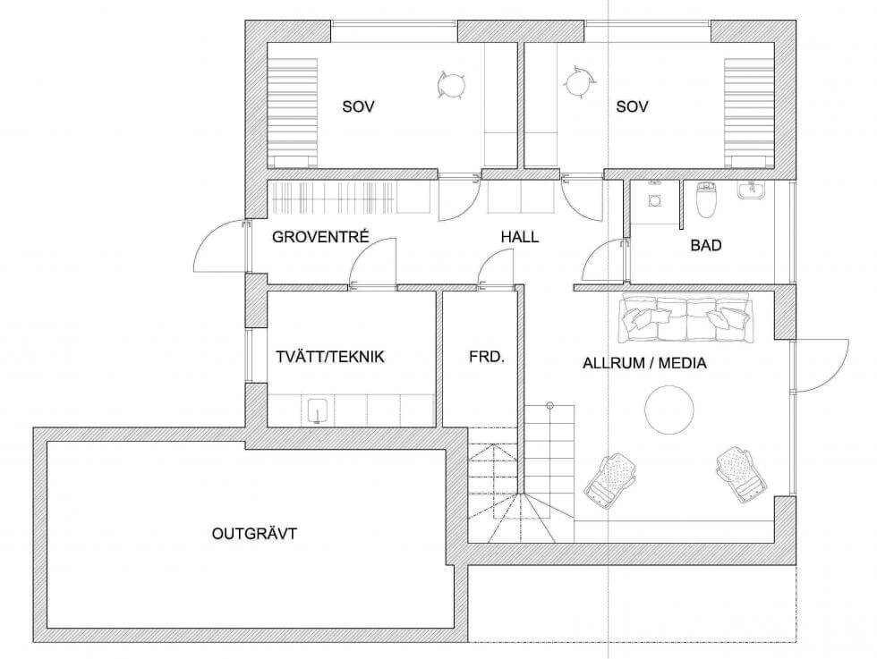
Planlösning souterrängplan

Planlösning souterrängplan.

Genomskärning

Genomskärningsritning.