Ncaved: Underjordiskt hus

På den grekiska ön Serifos har MOLD Architects nyligen färdigställt ett hus nedsänkt i terrängen. Här kan man vistas utan att synas särskilt mycket och ta skydd från nordanvinden med bibehållen utsikt.
Insprängt i berget

Foto: Yiorgis Yerolymbos, Panagiotis Voumvakis

Vem skulle inte vilja ha ett semesterhus vid Medelhavet? Ett av grekiska MOLD Architects senaste verk de kallar Ncaved är ett hus nedsänkt i terrängen på den karga ön Serifos i Grekland.

Utsikt över huset
N'Caved sett uppifrån

Den öppna och utsatta platsen vid kanten av klippan på ön ger en fantastisk utsikt, men är ofta ansatt av nordanvindar. Det fick arkitekterna vid MOLD Architects att besluta sig för att borra ner det 340 kvm stora huset i terrängen.

N'Caved på kvällen

Ön Serifos är ca 75 kvadratkilometer stor och ingår i ögruppen Kykladerna, där även Naxos ingår.

Infinity-pool
Terrass med pool

Kanske kan vi återanvända idén att bygga ner huset i marken inom svenskt husbyggande när det är svårt att få bygglov? Nedåt brukar man få bygga vad man vill så länge man inte inkräktar på vattenledningar och annat som kan vara nedgrävt i marken på tomten. På minussidan har vi de stora kostnader det innebär att gräva, spränga och deponera massorna.

Terrass
Matplats med utsikt

Till skillnad från de robusta stenmurarna som husets ytterväggar till stor del är uppbyggda av, är fasaden mot havet lätt i form av glaspartier som kan öppnas upp i hela sin längd.

Badrum

Medan framsidan är helt öppen mot öst, är de bakre fönstren det som ramar in inomhusträdgårdar, förbättrar luftflödet och släpper in ljuset i bostaden.

Sten, trä och glas i inredningen
Sovrum

Huset är uppbyggt av stenmurar, glasade ytor, betonggolv, trä och metall.

Öppet mot terrassen
Matplats

Perforerade filter på fasaderna skapar skuggmönster på golvet. Tillsammans med stora reflekterande spegelytor skapar de en spännande atmosfär i bostadens inre, privata delar.

N'caved insprängt i berget

Serifos ligger ca 3 timmars flygresa från Sverige.

Sektionsritning

Sektionsritning.

Elevationsritning

Elevationsritning.

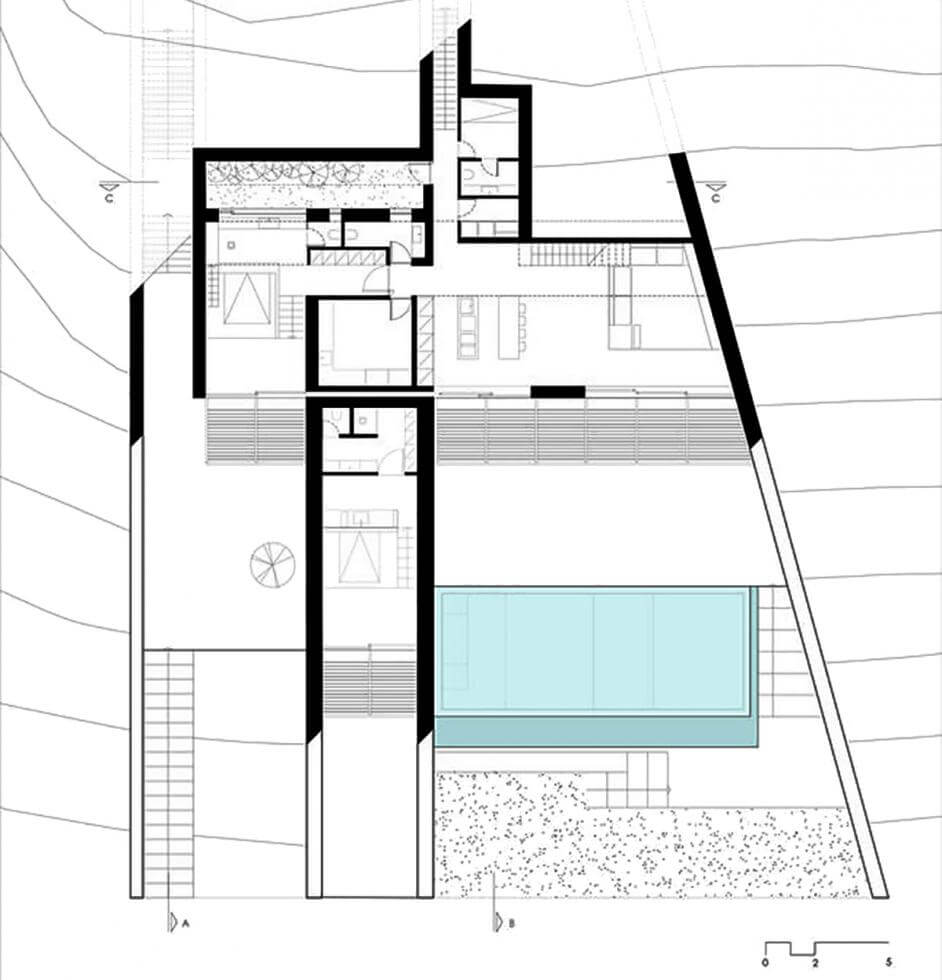
Planlösning bottenvåning

Planlösning bottenvåning.

Planlösning ovanvåning

Planlösning ovanvåning.

Planlösning takterrasser

Planlösning översta våningen med takterrasser.