Ska bli kul att följa ert bygge. Mycket bilder gillas förstås!
Vad är det för svart duk ovan marskivorna i grunden?
Vad är det för svart duk ovan marskivorna i grunden?
Medlem
· Västernorrland
· 52 inlägg
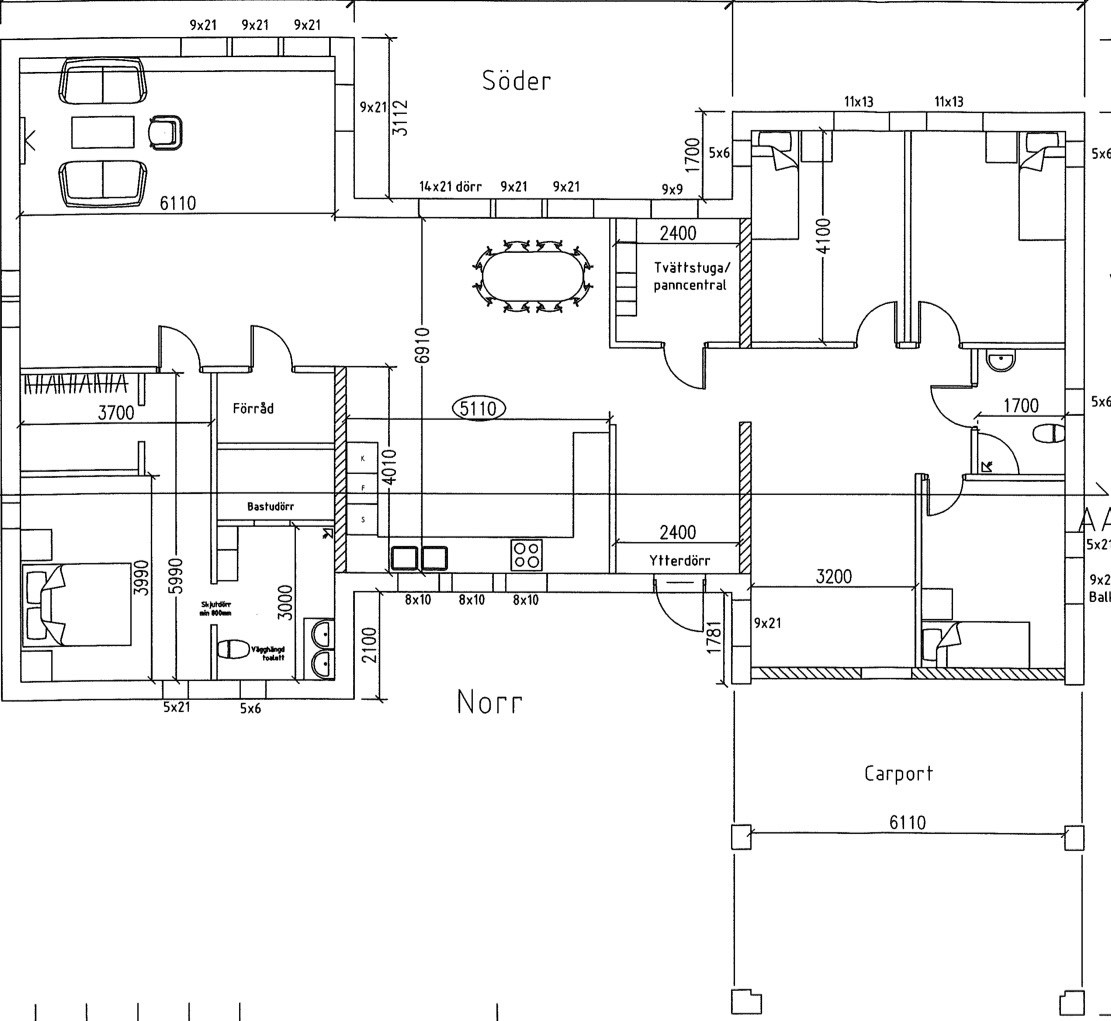
Det är ca 187 kvm boyta, vi kommer använda oss av frånluftsvärme. Det är ett vitt lösvirkeshus med svart falsat plåttak. Vi kommer att ha ryggåstak i vardagsrummet och i mittenkroppen/kökskroppen.
Fyra rum, två allrum plus ett öppet kök med en köksö.
Lite kuriosa är att det är 427 kvm plåttak som har gått åt
Fyra rum, två allrum plus ett öppet kök med en köksö.
Lite kuriosa är att det är 427 kvm plåttak som har gått åt
Inloggade ser högupplösta bilder
Logga in
Skapa konto
Gratis och tar endast 30 sekunder
Redigerat:
Medlem
· Västernorrland
· 52 inlägg
Lite svårt att svara på kvm kostnaden. Tar vi budgeten och delar med kvm så blir det ca 22 450kr men då ingår carporten. Nu kör vi på med löpande pris på snickarna då vissa saker är helt nya för dem. Vi kommer att ha slipad betong i mittendelen och i vardagsrummet som golv. Även plåttaket är en ny konstruktion än vad de jobbat med för att få ihop alla hörn.
Sedan har vi valt Vedum kök med en svart målad eklucka, bertazzonispis och sten ( eller typ silestone) skiva till köket.
Vi har ritat huset själva sedan är det en som har hjälpt oss med att ta fram resterande ritningar. Byggarna är riktigt duktiga och utan dem skulle det här inte ha gått....
Mot originalritningar så är det väldigt stor skillnad, finns inte mycket kvar där!
Vet inte riktigt vad du menar med om det finns något prefab tillv med men takstolarna är bestämda så de kom färdiga till bygget.
OBS sett var svar till Caroline!
Sedan har vi valt Vedum kök med en svart målad eklucka, bertazzonispis och sten ( eller typ silestone) skiva till köket.
Vi har ritat huset själva sedan är det en som har hjälpt oss med att ta fram resterande ritningar. Byggarna är riktigt duktiga och utan dem skulle det här inte ha gått....
Mot originalritningar så är det väldigt stor skillnad, finns inte mycket kvar där!
Vet inte riktigt vad du menar med om det finns något prefab tillv med men takstolarna är bestämda så de kom färdiga till bygget.
OBS sett var svar till Caroline!
Redigerat:
Medlem
· Västernorrland
· 52 inlägg
Den svarta duken är till för att betongen inte skall åka ner och lyfta isoleringen 
Medlem
· Västernorrland
· 52 inlägg
Kul och se att det händer även i kanterna där jag bor! Det ser jättefint ut såhär långt, hoppas ni får många lyckliga år där!
Medlem
· Västernorrland
· 52 inlägg
Medlem
· Västernorrland
· 52 inlägg
I måndags började byggarna slita på igen. Fönsterna skulle ha kommit den 19e januari men det blev inte ;-) så den här veckan bör de komma. Snickarna håller just nu på att färdigställa ytterväggen (slå klart allt som ej blev igenspikat före jul).
Själva har vi varit i kontakt med en Ljusdesigner som skall ta fram förslag på hur vi skall göra med ljuset och vad det kommer att kosta... blir spännande det!
Har även skaffat pinterest där man kan spara inspirationsbilder.https://www.pinterest.com/cstenlund/inspiration-bygget/!
Själva har vi varit i kontakt med en Ljusdesigner som skall ta fram förslag på hur vi skall göra med ljuset och vad det kommer att kosta... blir spännande det!
Har även skaffat pinterest där man kan spara inspirationsbilder.https://www.pinterest.com/cstenlund/inspiration-bygget/!
Medlem
· Västernorrland
· 52 inlägg
Under v 6 och måndag, tisdag v 7 har det hänt lite saker. Nu börjar man kunna se ut lite 
Framsidan av huset.
Här blir det två sovrum.
Här ett bibliotek.
Matsal
Köksfönster
Våra sovrumsfönster.
Vardagsrumsfönster.
Här ser man även första fönstret i matsalen längst till höger.
Framsidan av huset.
Inloggade ser högupplösta bilder
Logga in
Skapa konto
Gratis och tar endast 30 sekunder
Inloggade ser högupplösta bilder
Logga in
Skapa konto
Gratis och tar endast 30 sekunder
Inloggade ser högupplösta bilder
Logga in
Skapa konto
Gratis och tar endast 30 sekunder
Här blir det två sovrum.
Inloggade ser högupplösta bilder
Logga in
Skapa konto
Gratis och tar endast 30 sekunder
Här ett bibliotek.
Inloggade ser högupplösta bilder
Logga in
Skapa konto
Gratis och tar endast 30 sekunder
Matsal
Inloggade ser högupplösta bilder
Logga in
Skapa konto
Gratis och tar endast 30 sekunder
Köksfönster
Inloggade ser högupplösta bilder
Logga in
Skapa konto
Gratis och tar endast 30 sekunder
Våra sovrumsfönster.
Inloggade ser högupplösta bilder
Logga in
Skapa konto
Gratis och tar endast 30 sekunder
Vardagsrumsfönster.
Inloggade ser högupplösta bilder
Logga in
Skapa konto
Gratis och tar endast 30 sekunder
Inloggade ser högupplösta bilder
Logga in
Skapa konto
Gratis och tar endast 30 sekunder
Inloggade ser högupplösta bilder
Logga in
Skapa konto
Gratis och tar endast 30 sekunder
Här ser man även första fönstret i matsalen längst till höger.
Inloggade ser högupplösta bilder
Logga in
Skapa konto
Gratis och tar endast 30 sekunder
Medlem
· Västernorrland
· 52 inlägg
Kanske skall tillägga att två av de sneda fönsterna i vardagsrummet har blivit fel. Så saknas ett fönster. Sedan har de skickat dubbletter på de tre sneda. Så om åtta veckor borde de rätta komma.
Kul att se.
Det är väldigt likt vårt hus som vi bygger just nu i Halmstad.
Vi har kommit nästan precis lika långt som ni så väldigt kul att följa.
De som vill följa vårt bygga kan söka på Projekt Nöjet på Facebook.
Vi har lagt upp våra bilder där istället.
//
Det är väldigt likt vårt hus som vi bygger just nu i Halmstad.
Vi har kommit nästan precis lika långt som ni så väldigt kul att följa.
De som vill följa vårt bygga kan söka på Projekt Nöjet på Facebook.
Vi har lagt upp våra bilder där istället.
//
Grundstött
· Halland
· 28 348 inlägg



