Ekologiskt tillbyggt 1910-tal på Solsidan

Den här fredagen tittar vi närmare på ett intressant hus på Solsidan från 1910. Det fick en rejäl tillbyggnad 1996 med ekologiska ambitioner.
Ekologiskt 1910-tal i Nacka

Foto alla bilder: Bjurfors Nacka

I villaområdet Solsidan i Saltsjöbaden ligger ett hus som ursprungligen byggdes någon gång runt 1910, som trädgårdsmästarbostad. Långt senare, 1996 fick det en rejäl tillbyggnad i tre plan. Man använde ekologiska material som t ex ekofiberisolering, tjärad träfasad och snickerier målade med linolja.

Huset före tillbyggnad

Ovan ser du trädgårdsmästarbostaden före tillbyggnad. I bakgrunden skymtas det stora vita hus som den en gång tillhörde, som i dag är fem olika tomter med fristående hus på var och en. 1910 var det en enda stor tomt med växtodlingar, berättar ägaren till huset.

1910-talshus i Nacka

Huset har en fransk balkong som vetter mot trädgården. På bilden nedan ser man det ursprunliga lilla huset som ligger ut mot trädgården på baksidan. Den vilar på en stenmur.

Fransk balkong

Idag är husets boyta 135 kvm, fördelat på 1,5 plan och en suterrängvåning. Här finns sex rum varav tre är sovrum för närvarande. Tomten är 936 kvm stor. 

Trappa leder upp till entrén

Huset värms med en luftvärmepump/direktverkande el. Värmekostnaderna uppges till 21 300 kr per år. Enligt energideklarationen är den specifika energianvändningen 119 kWh/m2 och år.

Dubbla dörrar

Anledningen till att vi nu får njuta av bilderna på huset är att det är till salu hos Martin Sundelin på Bjurfors för 9 750 000 kr. 

Vardagsrum

Inredningen går i stil med huset. På golven ligger genomgående vitoljade furutiljor. Man kan se en nivåskillnad i golvet i övergången mellan gamla huset och tillbyggnaden.

Soffgrupp vid burspråket.

Vid burspråket har man en soffhörna. I taket har man limfärg.

Linoljefärgad pärlspont

Väggarna i hallen är klädda med pärlspont målad med linoljefärg.

Kök med fönster

Köket med litet fönster.

Matplats med lekstandstolar

Vid matplatsen har man klassiska Leksandstolar; en gustaviansk pinnstol med ursprung i Dalarna.

Soffhörna.

En soffhörna i tillbyggnaden.

Ett litet sovrum.

Ett av sovrummen.

Badrum

Badrum med bubbelbad. 

Fasad tillbyggnad

Här ser du grundmuren som den ursprungliga byggnaden vilar på i närbild.

Uteplats

Vid uteplatsen längst ut på tillbyggnaden har man utsikt över vattnet.

Utsikten

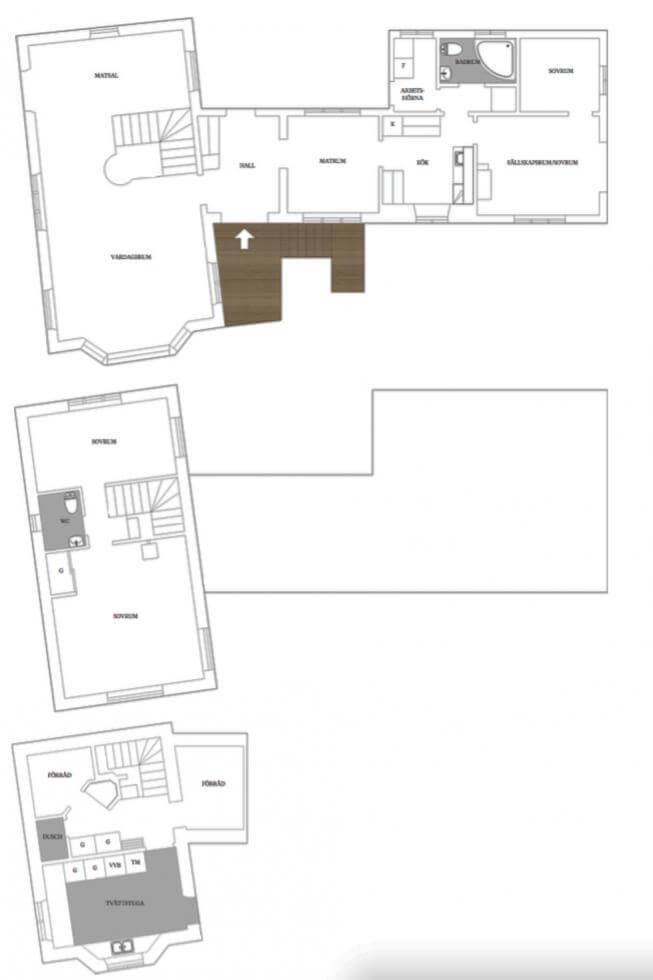
Nedan ser du en bild av hur huset såg ut före tillbyggnad samt efter det en planskiss över entréplan, övre plan och suterrängplan som huset är utformat idag.

Körsbärsträd
Planskiss

Den här artikeln om det ekologiskt tillbyggda 1910-talshuset på Solsidan, Nacka, ingår i vår populära artikelserie Fredagshuset. Någon har trott att artiklarna är sponsrade, men så är inte fallet. Vi skriver om husen för att inspireras och lära oss något nytt.