Norrmännen investerar stort i sina sommarhus, eller hytter som de heter på norska. Och arkitektkontoret Rever & Drages verk på halvön Straumsnes i Tingvoll inte långt från Kristiansund i mittersta Norge utgör knappast något undantag.
Fasad med takspån

Foto: Tom Auger

Ett gammalt nedgånget hus från femtiotalet vackert beläget invid en storslagen havsutsikt och höga berg har ersatts med ett fritt format hus. De fristående utskjutande volymerna bjuder på generösa glaspartier som ger en planlösning som förenar öppet och privat. 

– Den västvända utkragande volymen innehåller en liten studio med den allra bästa havsutsikten, berättar arkitekt Tom Auger, blåser det på ordentligt så kan den svaja lite, men den är förstås fast förankrad i en konstruktion som tillåter en viss flexibilitet.

De lätta huskropparna vilar på en kraftig betongsula och en källare med teknikutrymmen. De övre delarna är helt gjorda i trä med 20 centimeter isolering i väggarna och 30 centimeter i taken.

Tillbyggnad med panoramafönster

Foto: Tom Auger

Det är en rätt rustik fasad som möter ögat när man närmar sig huset. Ett nybyggt annex ritat av ett annat kontor har integrerats som en del i byggnadskomplexet och materialen har smittat av sig i de adderade volymerna. Annexets väggar och tak är belagda med takspån som också används i huvudvolymen vilket ger ett rustikt intryck i det karga landskapet. Även de adderade volymerna är trätäckta men nu med en mer elegant liggande panel.

De två sovrummen blickar ut var för sig vända mot havet och ett kargt fjordlandskap. Det stora sovrummet omges av mindre fönster på bägge sidorna. 

Infinitypool

Foto: Tom Auger

– Entréen är både välkomnande och hemlighetsfull, en lätt kurvad gångväg leder fram längs med tak och huskroppar som omger den gömda knappt anade ingången.

Poolen speglar himmel och barrskog. Den lilla studion skjuter ut som ett eget krypin ovanför vardagsrumsdelen. - Å ena sidan har vi havsutsikten, å den andra skogen, berättar Tom Auger om en planlösning med stora öppna ytor som blickar utåt. Lika viktigt för beställarna var att få till rum där man kan få vara själv.

Tillbyggnad med takspån

Foto: Tom Auger

Annexet, som tillkom för några år sedan, har integrerats i den nya byggnadsvolymen och blivit ett eget litet tillägg. Både de nya och de gamla takskivorna samspelar med sina olika lutningar så att huset får en tydligt sammanhållen komposition. 

Tom förklarar att utsikt och terrass vänd mot både hav och skog varit beställarnas utgångspunkt, men också att få till en planlösning som tillåter både avskildhet och gemenskap. I ena änden av huset ligger kök och vardagsrum omgiven av en stor terrass, och bakom eldstaden leder en trappa upp till den lilla studion som skjuter ut över fasaden och blickar ut mot hav, skog, berg och även en äldre infinity pool som integrerats med nybyggnaden.

I andra änden ligger sovrummen i två utstickande lådlika volymer som tittar ut i landskapet. Huskropparna står stadigt placerade på kraftiga träbalkar vilket än mer förstärker deras uttryck. Rever & Drage ger i Straumsnes ytterligare ett exempel på hur norska arkitekter förmår använda traditionella material i en okonventionell modern arkitektur som närmast självklart låter sig integreras i det omgivande landskapet

Trappa upp till sovrum

Foto: Tom Auger

Det mindre sovrummet nås via en kort trappa precis vid entrén, från rummet leder en stege till en ytterligare en rumsavdelning.

Vardagsrum med eldstad

Foto: Tom Auger

Runt kaminen skapas ännu ett avskilt intimt rum mitt i den vida utsikten. Innertakpanel av plywood och mörkt målade väggpartier förstärker kontrasten mellan öppet och slutet.

Flygbild över huset

Foto: Tom Auger

Hytten är vackert placerad på halvön Straumsnes i Tingvoll inte långt från Kristiansund i mittersta Norge.

Stege som leder till sovrum

Foto: Tom Auger

Stegen leder till ytterligare en rumsavdelning.

Panoramafönster mot poolen

Foto: Tom Auger

En nätt detaljering med glaspartier från golv till tak tillsammans med nogsamt infattade fönster ger intrycket att väggarna är tunnare än vad de verkligen är, och upphäver på modernistiskt manér samtidigt skillnaden mellan vad som är inne och ute.

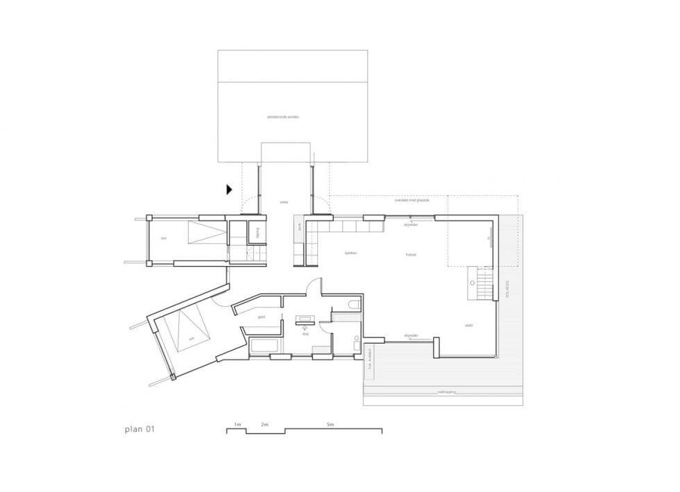
Planritning

Planritning

Fasadritning

Östra fasaden

Fasadritning

Norra fasaden

Fasadritning

Södra fasaden

Fasadritning

Västra fasaden