Vitt i trä på Björnberget med omsorg om detaljerna

Jonatan och hans familj ritade det vita lyxiga trähuset på Björnberget själva. De gjorde det helt i sin egen stil i vitvaxad furu med inslag av glas och marmor, och de verkar ha tänkt på precis allt.
Björnbergets fasad

Foto alla bilder: Foad Ka/ Bjurfors

På Fahnehielmsvägen 13 i Kummelnäs, Nacka ligger ett stort 2-planshus med takterrass, källare, dubbelgarage och attefallshus.

Huset på Björnberget

Jonatan och hans familj har ritat och byggt huset åt sig själva. Huset, som har 300 kvm boarea, är byggt i två plan med inredd källare. Ytan är fördelad på 9 rum.

Attefallshus

De har sett till att det finns en flexibilitet i boendeformen, med attefallshuset på 25 kvm som är fullt utrustat, liksom källaren som kan fungera som en egen lägenhet.  Här kan både äldre släktingar och tonåringar få ett enskilt boende, eller ett företag drivas hemifrån.

Fasad med fönster

Fasaden är av trä och grunden en platta på mark/källare uppbyggd med Thermomur 350. Huset värms med bergvärme och ventilationen är FTX. På taket ligger EPDM-matta. Aluminiumfönstren är 3-glas isolerglas. Beräknad elförbrukning är ca 34 600 kWh per år för uppvärmning och hushållsel. 

Takterrasss

Uppe på taket har man utsikt 360 grader, på den 100 kvadratmeter stora takterrassen med klinkergolv och golvvärme. Här är det dessutom förberett för ett utekök. 

Kök med matplats

Invändigt är merparten av golv, väggar och tak klädda med vitvaxad furu.

– Vi ville ha furupaneler som är lagda i linje med varandra på golv, väggar och tak, berättar Jonatan.

Fasad på Björnberget

Men anledningen till att vi får njuta av bilderna till det här huset just nu är att Jonatan har lagt ut huset till försäljning hos Bjurfors för 14 995 000 kr.

– Vi har lagt ut huset till försäljning eftersom vi har andra planer framöver som gör att vi vill sälja. Det är inte alltid lätt se hur livet är tre år framåt i tiden. Vi byggde dock inte för att sälja, berättar Jonatan.

Skiffer på trappa utomhus

Ute runt huset har de lagt skiffer på gångar och trappor.

Entrédörr av glas

I entré och våtrum har de lagt marmorgolv. Entrédörren i glas är 3 meter hög.

Kök i furu och matplats

Köket är öppet mot vardagsrummet. Här finns en lång köksö, med induktionshäll och avrinningsho.

Kök i vitvaxad furu

Köksluckorna är snickrade i vitvaxad furu. Bänkskivorna är extra djupa och belagda med bänkskiva av marmor.

Vardagsrum

Huset har ett KNX-system installerat överallt för att kunna styra all teknik på distans. I de flesta rum har de byggt in högtalare, i vardagsrummet satte de ett surroundsystem. 

Badrum

Från badrummet på plan ett kan man gå ut direkt till terrassen.

Bastu i asp

I anslutning till badrummet finns en bastu klädd i asp, med utsikt över skogen utanför.

Tvättstuga på varje plan

Det finns en tvättmaskin och garderober på alla tre plan i huset så att man ska slippa bära saker upp och ner. 

Allrum

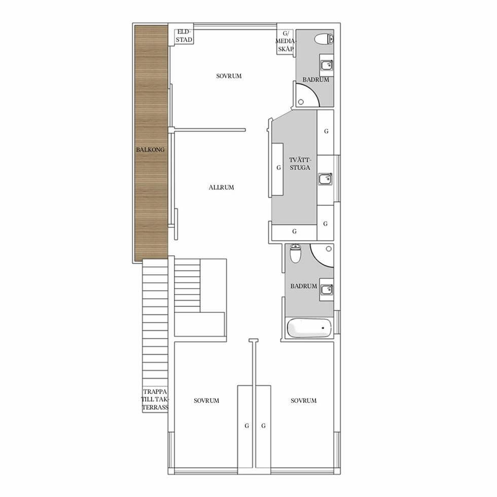
På övre plan finns tre sovrum och ett allrum och därifrån når du trappan upp till takterrassen.

Sovrum

I ”master bedroom” går allt i svart, liksom i det tillhörande badrummet. 

En suite badrum
Källarplan

Källaren kan som sagt användas som en helt separat lägenhet, för här finns både kök, badrum, tvätt och möjlighet till flera sovrum.

Sovloft i attefallshus

Attefallshuset är också det inklätt i vitvaxad furupanel. En fiffig trappa upp till sovloftet har inbyggd förvaring i stegen.

Matplats
Eldstad
Sovrum
Planlösning entréplan

Planlösning entréplan.

Planlösning ovanvåning

Planlösning ovanvåning

Planlösning källarplan

Planlösning källarplan

Husets fasad sett utifrån

Den här artikeln ingår i vår populära artikelserie Fredagshuset. Artikeln är inte sponsrad. Vi skriver om och visar bilder på intressanta hus för att inspirera, för vi älskar hus!