Ladugårdsinspirerad villa i Aspen

Vi gör en utflykt till skidorten Aspen vid Klippiga bergen, ett av USA:s mest attraktiva fritidshusområden där det är dubbelt så dyrt att bygga som i andra delar av delstaten. Nästa år har Aspen som målsättning att alla hus ska vara noll-energihus. Här tittar vi närmare på Villa V av Studio B Architects.
Villa V i Aspen Colorado av Studio B Architects

Alla bilder på Villa V i Aspen Colorado är tagna av James Florio.

Det amerikanska arkitektkontoret Studio B, med kontor i Aspen och Boulder, har ritat villa V för ett äldre par där den öppna planlösningen ger gott om utrymme för besök av både vänner och familj. De höga glaspartierna kan tyckas energineffektiva, men isoleringskraven är minst lika stränga som i Sverige. Nästa år är målsättningen att alla nya hus i Aspen ska vara noll-energihus, och man är stolta över att vara den tredje staden i USA som helt försörjs med grön vind- och vattenkraft.

Villa V i Aspen Colorado av Studio B Architects

Ägarna till V-plan-villan i Aspen hade egentligen inte tänkt bygga en helt ny villa. När en förbipasserande frågade om det gamla paret inte ville sälja sitt gamla hus, var deras svar först nej, men sedan ändrade de sig när insåg att kunde skapa ett nytt hem för både sin stora familj och konstsamling.

– Deras krav var så lite underhåll av utsidan som bara möjligt, minns arkitekt Scott Lindenau, och så ville de mycket naturligt ljus med utsikt mot bergstopparna, och så förstås ingen insyn från grannarna.

Vardagsrum i Villa V i Aspen Colorado av Studio B Architects

Entrén är delvis gömd och upptäcks genom en liten gång som leder fram till en skulptur som med sin röda färg avviker från den monokroma fasaden.

– Våra beställare har rest mycket i sina dagar, det har nog bidragit till att de varit så pass öppna för våra idéer och olika möjliga lösningar. De har 3-4 viktigare konstverk som vi har tagit till utgångspunkt för gestaltandet av några av rummen.

Villa V i Aspen Colorado av Studio B Architects

Den tårtbitsformade tomten ligger inklämd mellan två grannar och med golfbanan i den tredje riktningen.

Vadagsrum i Villa V i Aspen Colorado av Studio B Architects

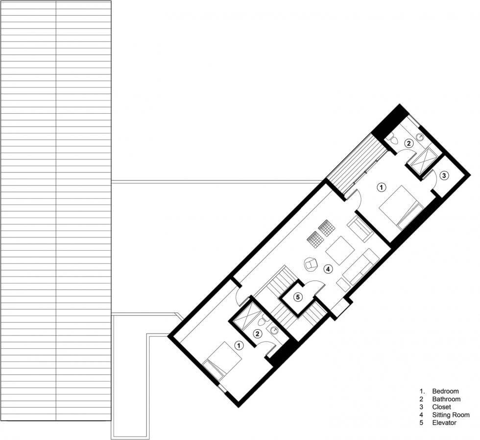
Villan är uppdelad i två volymer: en privat del med beställarnas sovrum på bottenplanet och ytterligare 2 sovrum och badrum en trappa upp; och en publik del med kök, matsal och vardagsrum. Ägarna, som bägge är i åttioårsåldern, bor på ett enda våningsplan utan nivåskillnader.

– Ett mer intimt vardagsrum samt några sovrum förankrar den uppdelade planlösningen och förbinder de två volymerna, säger Scott Lindenau som känt ägarna i trettio års tid efter att ha hjälp till med ritningar till deras tidigare hus.

Villa V i Aspen Colorado av Studio B Architects

Hur tolkar arkitekterna sina kunders krav utöver antal kvadratmeter och rumsfunktioner? Studio B försökte pejla lite mer på djupet och frågade beställarna om de ville ha mörka eller ljusa sovrum, på vilken sida av sängen de sov, hur rummen kopplas ihop? Arkitektstudio tog fram ett 13 sidor långt program och lät medarbetarna skissa fritt som om de var tillbaks på arkitektskolan. Beställarna fick 4 förslag att välja emellan.

– De föredrog gavellösningen med två separerade volymer som gav största möjliga trädgård på den här rätt speciella tomten.

Sittplats vid fönstret i Villa V i Aspen Colorado av Studio B Architects

Små läsnischer vid de stora fönsterpartierna skapar små intima platser i den öppna planlösningen. Golv i ljus ek.

Villa V i Aspen Colorado av Studio B Architects

Energiförbrukningskraven i Aspen är efter amerikanska mått några av de strängaste. Det krävs 7-8 månader innan man får kommunens gröna certifiering.

– Värmesystemet ska ha en verkningsgrad på 97 procent, förklarar Scott Lindenau. Väggar och tak har ett isoleringsvärde på R-50, det högsta i USA. Dörrar och fönster har också låga U-värden. Till nästa år funderar Aspen på ett ”Net-Zero”-krav på alla nya byggnader.

Villa V i Aspen Colorado av Studio B Architects

Väggarna är 20 centimeter tjocka med isoleringsskum som ger ett amerikanskt isoleringsvärde på R-35. Takkonstruktionen är 45 cm med 15 cm isoleringsskum.

Villa V i Aspen Colorado av Studio B Architects

En större yta utanför vardagsrummet erbjuder plats för sommarmiddagar och party. Här finns värmeelement, ljussättning och en ljudanläggning.

– Aspens klimat skiljer sig inte så mycket från södra Sverige förutom att vi har betydligt mer sol året runt, det är varken för hett eller för kallt, och utan någon fukt.

Dörr Villa V i Aspen Colorado av Studio B Architects

Byggnaden vänder en rätt oansenlig sida mot gatan, de stora gavelfönstren är istället vända mot trädgården och utsikten medan huset är betydligt mer slutet mot grannarna.

– Aspens regler kräver att vi inte går närmare än 1,5 meter till grannens trädgård, och vi måste ligga 7,5 meter från gatan som visserligen är en återvändsgränd. Maxhöjd är 8,5 meter.

Villa V i Aspen Colorado av Studio B Architects

Den 420 kvadratmeter stora V-plansvillan påminner om en gammal ladugård med sitt prominenta sadeltak, de höga gavelfönstren avviker förstås och ger en rikligt upplyst interiör.

Fasad Villa V i Aspen Colorado av Studio B Architects

Materialhanteringen är diskret, men samtidigt modernistiskt exakt utan vindbrädor och synlig avvattning. 

– Cederträfasaden är sandblästrad för att framhäva ådringen, därefter har plankornas in- och utsidor behandlats med Sikken och betsats. Det ger en alldeles särskild lyster när ljuset ligger rätt!

Inredning Villa V i Aspen Colorado av Studio B Architects

Aspen grundades i silverruschen i slutet av 1800-talet men är idag betydligt guldkantat än i gamla dagar. Staden har bland de allra högsta, om inte högsta fastighetspriserna i USA.

– Det är dubbelt så dyrt att bygga här som i andra delar av Colorado, säger Scott Lindenau, den här typen av hus kostar drygt 40 miljoner kronor eller nästan 70 000 kronor/kvadratmetern (priserna är beräknade på aktuell dollarkurs).

Inredning Villa V i Aspen Colorado av Studio B Architects

Innerväggarna av gips är noggrant behandlade för att ge en jämn yta för ägarnas konstsamling.

Inredning Villa V i Aspen Colorado av Studio B Architects
Inredning Villa V i Aspen Colorado av Studio B Architects
Inredning Villa V i Aspen Colorado av Studio B Architects
Inredning Villa V i Aspen Colorado av Studio B Architects
Inredning Villa V i Aspen Colorado av Studio B Architects
Villa V i Aspen Colorado av Studio B Architects
Arkitektritat hus i Aspen

Planlösning entréplan.

Arkitektritat hus i Aspen

Planlösning ovanvåning.