Mörkt sextiotalshus förvandlat till modern nutid

Små fönster blir stora, slutna rum blir öppna. Jakten på en egen tomt att bygga på eller ett renoveringsobjekt i Malmös Limhamn landade i en instängd och mörk villa med helt rätt tomt. Jakobsson Pusterla Arkitekter har i Villa E vänt planlösningen åt rätt håll och öppnat för ljus och utblickar.
Renoverad 60-talsvilla

Foto: Marco Pusterla

Den gamla sextiotalsvillan i Limhamn var i behov av en totalrenovering, men också en helt ny planlösning.

– Det är en välbyggd villa med lättbetongstomme och tegelfasad, berättar arkitekt Marco Pusterla, problemet var att planlösningen var fullständigt felvänd. Allt det invändiga har gjorts om med helt nya installationer rakt igenom.

Renoverad 60-talsvilla

Foto: Kasper Dudzik

Istället för att som tidigare vända kök och vardagsrum mot gatan, så har de nu flyttats så att de nu vetter mot kvällssolen i väster. Samtidigt har fönstren blivit desto större och många fler.

– Vi letade efter en tomt eller ett renoveringsobjekt här i Limhamn under flera år, förklarar Catarina som med man och två småbarn hittade drömhuset en blötslaskig novemberdag då ingen annan verkade vara pigg på att gå husesyn.

Renoverad 60-talsvilla

Foto: Kasper Dudzik

– Vi såg potentialen, det var perfekt, vi älskade den lummigt gröna tomten utan insyn och såg att villan skulle fungera utmärkt som enplanshus. Det blev bättre än vi hade förväntat oss då huset ligger ett par meter högre än omkringliggande hus vilket ger oss en oväntad härlig utsikt från vardagsrummet.

Renoverad 60-talsvilla

Foto: Kasper Dudzik

Renoveringskostnaden landade på cirka 20 000 kronor/kvm BOA, vilket var dyrare än beräknat.

– Vi har valt allt inredningsmaterial med omsorg, tillägger Catarina. I vissa lägen har vi kostat på lite extra medan på andra ställen har vi fått hålla igen för att få en smakfull och samtidigt ekonomiskt genomförbar helhet.

Den gamla oljepannan åkte ut och har ersatts av ett luftvärmesystem med golvvärme. Alla innerväggar har rivits och murats upp på nytt för att sedan gipsputsas.

– Väggarna har målats med silikatfärg för att ge en tålig matt och genomsläpplig yta, förklarar Marco Pusterla. Vi har följt samma byggnadsprincip som användes när det här välbyggda huset uppfördes på sextiotalet.

Renoverad 60-talsvilla

Foto: Kasper Dudzik

Catarina och hennes familj bodde tidigare i ett hus ritat av Jonas Lindvall, och det syns att de har tagit med sig hans estetik till den egna villan.

– Vi märkte att vi trivdes väldigt bra i ett boende med avskalad interiör, säger Catarina och tillägger att de valt allt inredningsmaterial själva.  Fast till spisen har vi inspirerats av John Pawson. 

Renoverad 60-talsvilla

Foto: Kasper Dudzik

Eftersom det gamla husets gula färg så starkt förknippades med sextiotalet önskade beställarna en totalrenovering som gav ett helt nytt uttryck.

– Den här typen av omsorgsfullt utförda detaljer är ju arkitektens dröm, menar Marco Pusterla, men kan vara mycket utmanande för hantverkarna. Men med Catarina och Tobias var det tvärtom, de köpt hela konceptet på förhand, de visste precis vad de önskade. Vi satsade på att hitta ett byggföretag som skulle klara av uppgiften.

Renoverad 60-talsvilla

Foto: Kasper Dudzik

De höga skjut- och slagdörrarna med dold karm är en detalj som ger ett kvalitetsintryck utöver det vanliga. De är dubbelt så dyra jämfört med tyngre standarddörrar från Hornbach eller Bauhaus, men prisskillnaden för 5-6 dörrar för hela projektet blir mindre än en procent av projektbudgeten.

– Det här är inga dörrar som kan köpas färdiga, de ska ritas och studeras i minsta detalj innan man letar reda på rätt snickare, förklarar Marco Pusterla. När de stängs framstår de som en enda trätavla, de lyfter inredningen på ett alldeles särskilt sätt.

Renoverad 60-talsvilla

Foto: Kasper Dudzik

Den nya planlösningen öppnar upp huset och skapar stora generösa sällskapsytor med högt i tak. Sovrum och tvättstuga har placerats har placerats i en del, de mer publika rummen i en annan.

– Vi har tänkt mycket på funktionaliteten när vi diskuterat med Marco, säger Catarina. När barnen lagt sig kan vi skärma av med en bred skjutdörr.

Renoverad 60-talsvilla

Foto: Kasper Dudzik

Vitmålade väggar och stora fönster ger ett modernt uttryck, av det gamla huset finns i princip bara stommen, kopparrännorna och fönsterkarmarna i marmor kvar.

– De här stora fönstren släpper in naturen, förklarar Catarina, huset blir en del av trädgården och tvärtom, det är lika trevligt på sommaren som på vintern. 

Renoverad 60-talsvilla

Foto: Marco Pusterla

Den gamla traditionella villan var sluten och mörk, men hade alla möjligheter att förvandlas till något nytt. Husets fotavtryck bibehölls med undantag av en 3 kvm tillbyggnad som tillsammans med de tidigare garaget skapade ett flexibelt och användbart utrymme på ytterligare ca 16 kvm som idag används som arbetsrum. 

Renoverad 60-talsvilla

Foto: Kasper Dudzik

Limhamns gamla uppvuxna trädgårdar med äppelträd, stora barrträd bambuhäckar och magnolia ger småstadskänsla mitt inne i Sveriges tredje största stad.

Renoverad 60-talsvilla

Foto: Kasper Dudzik

Det stora helt nybyggda badrummet har även det fått ett ljusinsläpp ovanifrån.

– Upplevelsen påverkas av detaljer som golvmaterial, dörrar och inte minst badrums- och köksinredning som är två tunga välfungerande bruksverktyg.

Renoverad 60-talsvilla

Foto: Kasper Dudzik

Öppenheten mot den lilla villaträdgården är förstås intimt förknippat med en tidig arkitekturmodernism som propagerade för en otvungen och direkt närhet till naturen.

Renoverad 60-talsvilla

Foto: Kasper Dudzik

Renoverad 60-talsvilla

Foto: Kasper Dudzik

Renoverad 60-talsvilla

Foto: Kasper Dudzik

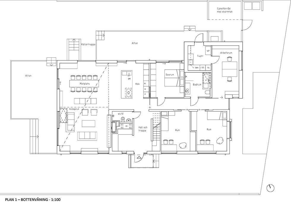
Renoverad 60-talsvilla

Planritning över bottenvåning.

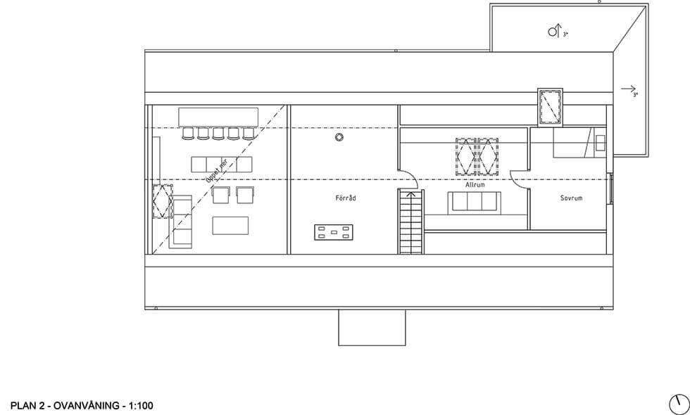
Renoverad 60-talsvilla

Planritning över ovanvåning.

Renoverad 60-talsvilla

Sektionsritningar.

Renoverad 60-talsvilla

Fasadritningar.