Texten innehåller annonslänkar (läs mer här)
Fem fina fjällstugor från hustillverkare
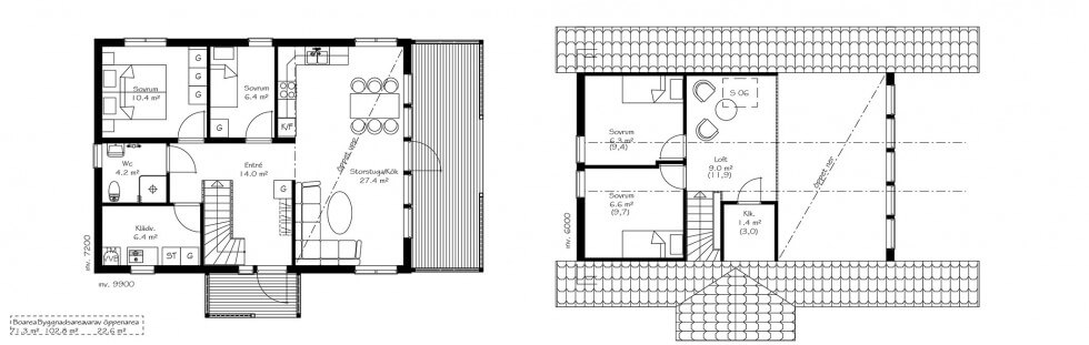
1. Fjällstugan Sonfjället, Hudikhus

Sonfjället är en kompakt och ytsmart fjällstuga med gott om sängplatser. Tack vare den tilltagna takhöjden och stora fönsterpartierna känns vardagsrummet ljust och rymligt och det moderna loftet möjliggör ytterligare sällskapsyta eller sovplatser.

Plan: 1,5 plan
Storlek: 89 kvm
Antal rum: 5 rum o kök
Pris: Från 1 543 400 kr

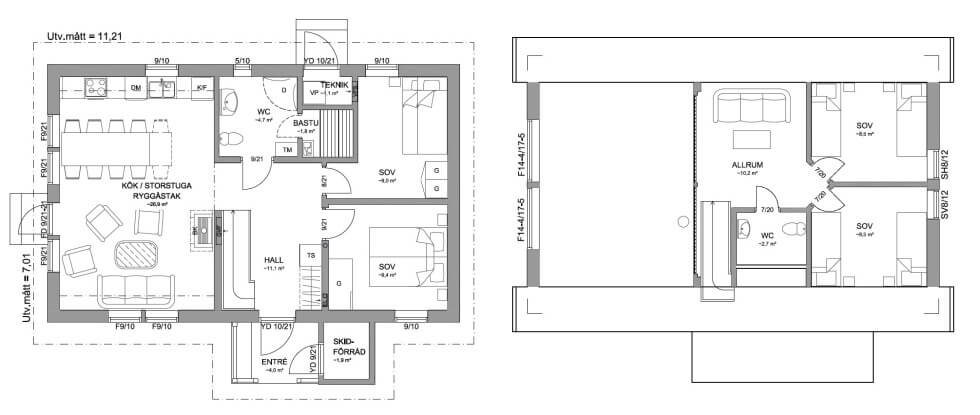
2. Fjällstugan Eva, Älvsbyhus
Med sina 107 m2 är Eva ett rymligt fritidshus med generösa sovrum och smarta förvaringslösningar. Det stora vardagsrummet med integrerat kök blir en naturlig samlingsplats för familjen. Utöver ett större badrum finns även en extra toalett vilket gör att Eva funkar bra även för en större familj.
Plan: 1
Storlek: 107 kvm
Antal rum: 4 rum o kök
Pris: Från 2 107 900 kr

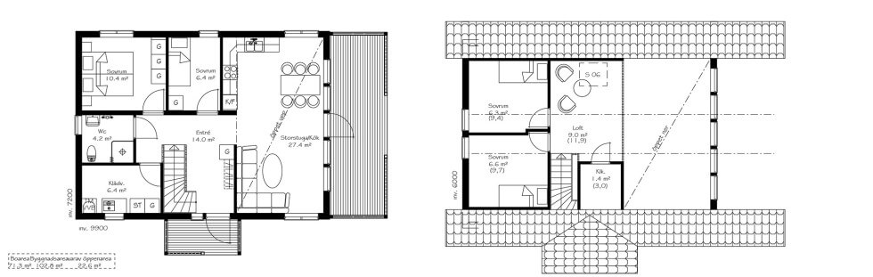
3. Fjällstugan Vision 103, Västkuststugan

En charmig farstukvist ramar in entrén till Vision 103. På övervåningen finns två sovrum och ett allrum från vilket man kan blicka ner och ut över vardagsrummet som är öppet upp till nock. På nedervåningen ryms ytterligare två sovrum. Längs gaveln löper en härlig terass på vilken man lätt kan föreställa sig avnjuta ev värmande skål gulasch i den krispiga vintersolen.
Plan: 1,5
Storlek: 97,2 kvm
Antal rum: 6 rum o kök
Pris: Vid förfrågan

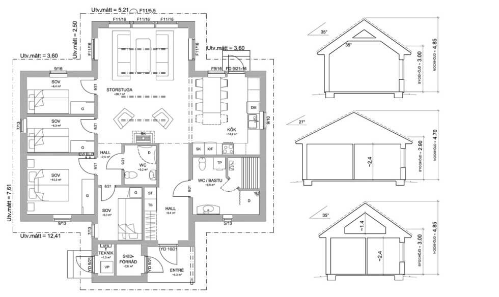
4. Fjällstugan Abisko 124, Hudikhus

Vackra Abisko 124 är en fjällstuga med plats för många. Med fyra sovrum, två badrum och och ett välkomnande sällskapsrum placerat mitt framför vinkeln är kan man föreställa sig mysiga spelkvällar och fina familjestunder.

Plan: 1
Storlek: 123,7 kvm
Antal rum: 4 rum o kök
Pris: Från 1 554 500 kr

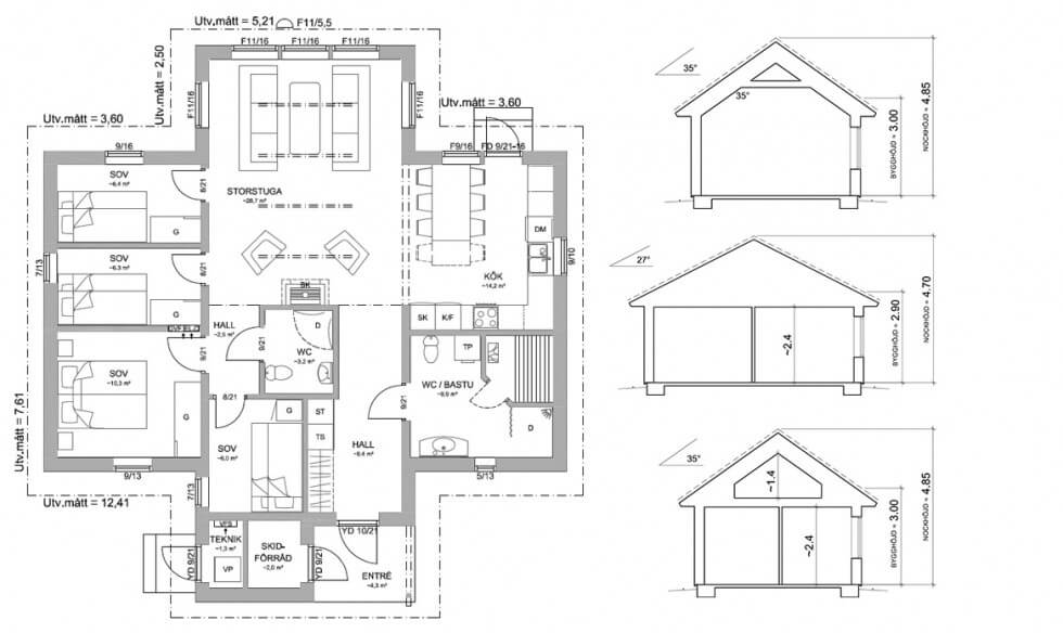
5. Fjällstugan Runn, Fiskarhedenvillan

Utformad som ett modernt ladhus känns Runn som en fjällstuga i ny fräsch tappning. Det stora fönsterpartiet ramas in av av gaveln som skyddar mot både direkt solljus och regn. Det ljusa vardagsrummet har dubbel takhöjd och det är inte svårt att föreställa sig hur man kan njuta av en vacker utsikt uppkrupen i soffan med en kopp varm choklad.

Plan: 1,5
Storlek: 123,9 kvm
Antal rum: 6 rum o kök
Pris: Från 2 362 000 kr
