Villa Torekov – större än väntat

Läget strax utanför Torekov på Bjärehalvön är närmast perfekt med utsikt över havet. Villa Torekov av Wåhlin Arkitekter tar fasta på utsikten i ett hus där det stora taket ger illusionen av en betydligt större byggnadsvolym än 100 kvadratmeter.
Villa Torekov

Foto: Ola Österling

De specialbeställda skjutdörrpartierna kräver inga hörnpelare utan kan öppnas helt och hållet.

– Även en regnig dag kan man sitta i vardagsrummet med känslan av att vara utomhus, säger Paula Idun. Vi har använt samma undertaksmaterial både inne och ute vilket gör att taket kan läsas som ett enda element.

Vardagsrum

Foto: Ola Österling

Genom att låta taket täcka hela terrassen lyckas arkitekterna upphäva skillnaden mellan ute- och innerum.

– Tomten ligger på en låg höjd med bra utsikt åt alla väderstreck, förklarar Per Wåhlin, och eftersom vi inte har någon annan bebyggelse att förhålla oss till så är det bara utsikten och solen det handlar om. Lösningen blev det här stora taket som en sammanhållande gest för både ute- och innerum.

Villa Torekov

Foto: Ola Österling

Från Villa Torekov ser man ut över både Kattegatt och Torekovs historiska bybebyggelse. Redan så tidigt som på 1100- och 1200 talet fanns hamn och kyrka i Torekov. Från att man tidigare försörjt sig på fiske och sjöfart, men även jordbruk, så är byn invid Båstad idag ett givet turistmål med höga bostadspriser. 

– Våra kunder hade några bodar på marken på en relativt stor tomt, de kunde dock endast användas sommartid, fortsätter Per Wåhlin, medan deras nya byggnad som stod färdig i år fungerar året om.

Öppen planlösning

Foto: Ola Österling

Arkitekt Paula Idun berättar att paret hade tänkt sig ett hus i delvis två plan med en stor takterrass och grönt tak. I samarbete med arkitekterna kom man fram till att en enplanslösning var både effektivare och mer ekonomisk.

– Vi provade olika planlösningar och koncept och kom ändå fram till slutsatsen att den amerikanska ”case study- stilen” från tiden efter andra världskriget, fördelad över ett plan var den bästa lösningen.

Villa Torekov

Foto: Ola Österling

Många vill idag ha torn och annat på sina hus, men Per Wåhlin understryker att hela vitsen med hus är att kunna vara utomhus. Villa Torekov ger en sömlös anslutning mellan inne och ute.

– Jag gillar även nivåskillnader, det ger vardagsrummet en egen rumslighet i en annars öppen planlösning.

Matplats

Foto: Ola Österling

Sovrum och tvättstuga är placerad mot baksidan till med en gemensam korridor, där finns även ett badrum och toalett.

– Placeringen av dörrar och fönsterpartier ger en rak siktlinje genom hela den privata delen som har sin fasad mot vägen och därför mindre fönsterpartier än den övriga delen av villan.

Privat del

Foto: Ola Österling

Ett fåtal material och en diskret färgsättning ger ett enkelt och elegant intryck. Interiörväggar av gips, undertak både inne och ute av Träullit. Planlösningen är uppdelad i en publik del med kök, matsal och vardagsrum, och en privat del med övriga funktioner.

Öppen planlösning

Foto: Ola Österling

Öppen spis
Del av vardagsrum

Foto: Ola Österling

Sitthörna

Foto: Ola Österling

Villa Torekov

Foto: Ola Österling

Villa Torekov

Foto: Ola Österling

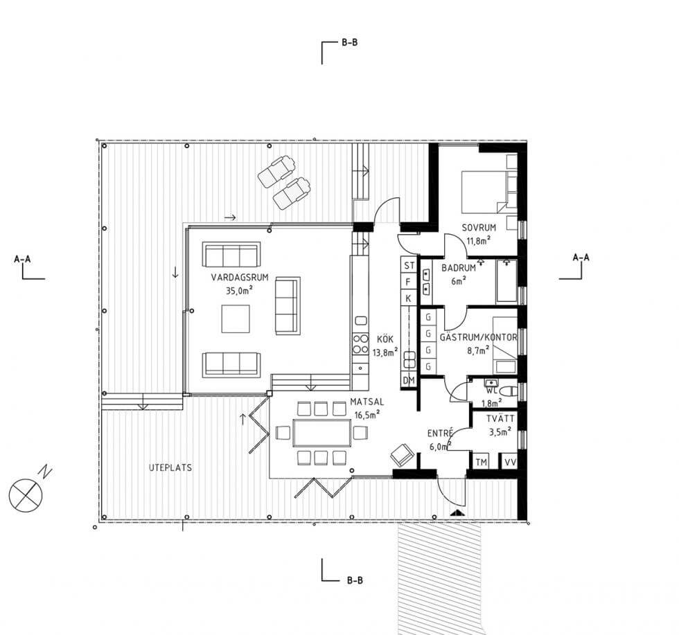
Planlösning

Planlösning.

Sektionsritning

Sektionsritning.

Fasader

Fasadritning.