Rock House vid Mälaren av arkitektparet Håkan Widjedal och Natasha Racki är placerat på en av de mest utsatta tomterna de någonsin byggt på, 14 meter från vattnet och 16 meter ovanför vattenytan.
Rock  House

Foto: Åke E:son Lindman

Rock House kragar ut över berghällarna likt femtiotalets Case Studie-hus i Los Angeles av modernistiska veteraner som Pierre Koenig, Charles och Ray Eames, Eero Saarinen och många fler.

Läget vid Mälaren borde vara perfekt, men inte riktigt. Här blir det ofta rätt blåsigt till hösten och arkitekt Håkan Widjedal berättar att det gamla sommarhusets bästa plats låg i lä undan vinden bakom det gamla huset, men utan utsikten ut över vattnet. Utmaningen blev att bygga både större och med bibehållen utsikt fast skyddat från väder och vind. Placeringen hamnade längre ut på berghällen, så pass långt ut att villan skjuter ut över berget mot vattnet. Uteplatsen är nu skyddad från blåsten, och där det är som mest utsatt finns en indragen inglasad balkong med kamin och allt, med anslutning till köket som också har ett litet växthus, en väderskyddad oas med bra mikroklimat för den odling som är ett av beställarnas stora intressen.

Rock House vid Mälaren

Foto: Åke E:son Lindman

– Detta är en av de mest spektakulära men samtidigt mest utsatta tomterna vi byggt på, berättar Håkan Widjedal, 14 meter från vattnet och 16 meter ovanför vattenytan. Den byggbara delen av tomten utgörs av en mindre hylla på den karga bergssidan som stupar rakt ner i vattnet. Och visst är det lätt att förälska sig i platsen och känna att här vill jag bygga ett hus och bo.

– Utmaningen för oss var att återerövra hyllan på den karga bergssidan och förvandla den till en fri öppen tomt med utsikt och samtidigt bygga ett mer än dubbelt så stort hus, förklarar Håkan Widjedal. Vår lösning blev en transparent byggnad som ligger maximalt utdragen i framkant på hyllan och delvis kragar ut över sluttningen. Mellan hus och berg bildas en generös gård med utsikt genom byggnaden genom fönster och ett skjutparti med 6 meter fri öppning.

Vardagsrum

Foto: Åke E:son Lindman

Och det är bara att konstatera att det bästa av den svenska arkitekturmodernismen lever och frodas i villaprojekt för välbeställda privatkunder. Håkan Widjedal och Natasha Rackis Rock House upphäver skillnaden mellan ute och inne, låter huset både öppna och sluta sig som utblick och skydd mot det karga landskapet. Här tas platsen i besittning av den tydliga konstruktionen som skjuter ut över berghällen tillsammans med det markanta platta taket och de generösa glaspartierna.

I Rock House har detaljeringen fulländats i vardagsrummet som låter tunga ytor kontrastera mot den öppna milsvida utsikten. 

– Taket i hela huset är täckt med merantiplywood som lackats med sju lager blank båtfernissa, förklarar Håkan Widjedal. Solreflektionerna tar med sig vågspelet från fjärden nedanför, och taket glittrar och rör sig likt skrovet på en gammal mahognybåt. Både kaminen och betongväggen ger värme under vintern, ett hus ska fungera även när det inte är sommar.

Terrass i betong

Foto: Åke E:son Lindman

Betong och trä samspelar i Rock House och understryker byggnadens både lätta och tunga karaktär.

– Den platsgjutna betongen ligger som ett yttre fullt ut exponerat skal som tacklar väder och vind, och skyddar den innanförliggande isolerade träkonstruktionen, säger Håkan Widjedal. Betongskalet agerar också stödmur för en bädd med lecakulor på vilka grundplattorna vilar. Golven är även dessa av grov betong för att bejaka den fria rörelsen mellan ute och inne, här behöver man inte ta av sig skorna.

Håkan Widjedal förklarar att den tidigare ägaren av tomten hade byggt sitt hus mitt på hyllan. Ett klassiskt misstag: med hyllan till större delen ockuperad av en byggnad var platsens stora kvalitet till stor del borta. Kvar fanns en smal väderutsatt bergsremsa mot vattnet och en smal remsa på baksidan mot berget helt avskild från utsikten. Lösningen blev rätt placering, ett nästan lekfullt spel mellan öppet och slutet, mellan ute och inne. Detaljeringen överraskar på många håll, exempelvis alla skjutdörrar som kan öppnas helt och parkeras i garage i väggarna så att även den fysiska öppenheten mot omgivningen maximeras vid bra väder.

Rock House badrum

Foto: Åke E:son Lindman

Det finns en gedigen omsorg om detaljer i både material och färgsättning som går igen i rum efter rum.

– Badrummet är snarare ett exteriört än interiört rum och är utformad som en stor nisch i fasaden. Träfasaden fortsätter in och bara en diskret glasskiva skiljer duscharna från berget utanför. När man tänder belysningen i rummet tänds en lampa utomhus som lyser på berget utanför. Med ljus utomhus istället för inomhus ser man perfekt ut, men inte alls in utifrån. Kanske bara rådjuren som direkt går förbi utanför ser in. 

Håkan och Natasha Racki har specialiserat sig på att rita villor alltsedan de under sista året på arkitektskolan ritade grannens hus ute i Trosa. De både skissade och bodde på platsen, och belönades med Träpriset och fick till och med några minuter på BBC World.

Rock House i skymning

Foto: Åke E:son Lindman

– Platsen är extremt utsatt, understryker Håkan Widjedal. Lugna solnedgångar över spegelblank fjärd har en magi som står i skarp kontrast mot våldsamma höststormar. För att fullt ut kunna njuta även av dessa kändes en stadig betongkonstruktion som ger något av ett modernt stadigt fort som en självklar utgångspunkt.

Stora glaspartier

Foto: Åke E:son Lindman

Glashus är intimt förknippat med en tidig arkitekturmodernism som propagerade för en otvungen och direkt närhet till naturen. Redan på 1910-talet drömde arkitekter hus som befriade människan från vardagens hets och maskinsmutsiga industrialism till förmån för ett boende som var lika mycket inne som ute, med tunna nästan omärklig glasskivor som enda skydd mot väder och vind. En arkitektur som förvandlar abstrakt konst till glasklar transparent arkitektur.

I Sverige tog arkitekter som Bruno Mathsson, Jan Gezelius och Per Friberg fatt i den naturromantiska ådran. Håkan Widjedal och Natasha Racki ger sina villor en mer urban karaktär i kontrasterna mellan natur och civilisation.

Rock House kök

Foto: Åke E:son Lindman

Köket är nästan minimalistiskt återhållet i sin utformning, allt annat än en köksö att mötas kring. Håkan Widjedal förklarar att arbetsbänken har ett stort svart lock som vilar på hydraulik. Med detta nedfällt påminner bänken mest om en stor kista, eller kanske snarare en verktygslåda. Fäller man upp locket tänds belysningen och en interiör klädd i rostfritt stål exponerar redskap och hoar. Orangeriet i kökets förlängning är utrustad med en identisk kista, men med fokus på förkultivering och omplantering.

– Matlagning var ett annat av beställarnas huvudintressen, men inte med fokus på social samvaro utan tvärtom som ett avskilt fokuserat skapande. Gäster kan ana köket mellan de horisontella lamellerna, men närmre än så kommer man inte. Inne i köket göms precis allt bakom svarta luckor. 

Uteplats

Foto: Åke E:son Lindman

Rock House kragar ut över berghällarna ner mot Mälarens vågor i en lek med kontrasterande former.

– Placeringen ger också dramatik åt de interiöra rummen där golvet visuellt möter vattnet långt nedanför på flera ställen. En indragen uteplats under tak mot vattnet ger en så skyddad miljö som läget möjliggör. Här finns både fast grill och öppen eldstad som ersättning till den klassiska infravärmen. Balkongen har orangeriet som en inre del, ett rum för övervintring av växter men också ett boningsrum i med ett härligt tempererat klimat för höstar och vårar. Sommartid kan partierna mot balkongen skjutas undan helt så att den växer i yta.

Glasväggar

Foto: Åke E:son Lindman

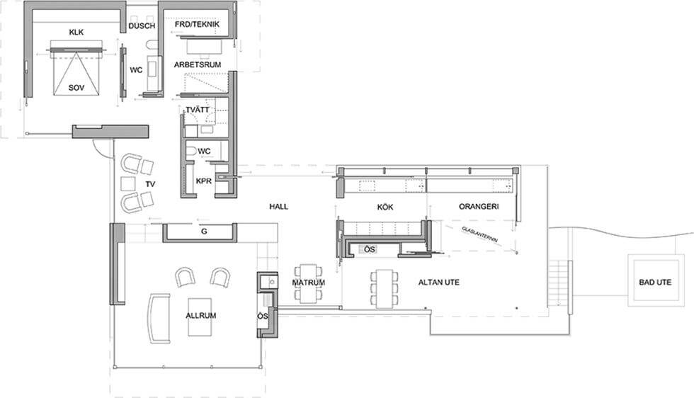
Planlösning
Sektionsritning