Modern fjällstuga i traditionellt stuk

Visst går det att bygga modernt och ändå dra lärdom av traditionen. Daniel Widman har tillsammans med hela familjen byggt en fjällstuga i Ljungdalen som moderniserar traditionell träbyggnadsteknik med hjälp av lokala förmågor och dessutom till ett överkomligt pris.
Modern fjällstuga

Foto: Åke E:son Lindman

– Huset är långt, smalt och högrest, förklarar Daniel Widman, det är inspirerat av de gamla husens mått i byn. Precis som i gammelgården på andra sidan Ljungan, så har vi en plats på sydvästsidan där man kan sitta i eftermiddagssolen efter en dag i skidbacken eller efter en lång vandring om sommaren.

Storstugan

Foto: Åke E:son Lindman

Fjällstuga Ljungdalen ligger i nordvästra Härjedalen nära Helagsfjället och Sylarna, Sveriges högsta toppar söder om polcirkeln. Daniels mor och far har letat efter en stuga i trakten under flera år, faderns morfar hade ett hus i Messlingen som såldes, och nu ville hela familjen bygga gemensamt.

– Min syster, bror och jag delar huset tillsammans med våra föräldrar, säger Daniel Widman, det blir rätt många med fem barn och tre hundar! 

Fasaden på fjällstugan

Foto: Åke E:son Lindman

Fjällstugan ger en naturlig skärm mot nord och väst, och den är placerad i dalgångens längdriktning på tomtens högsta punkt.

fasad på fjällstugan

Foto: Åke E:son Lindman

Daniel Widman och hans far har själv upphandlat elektriker, rörmokare och byggare i området. Totalkostnaden har hamnat på knappt två miljoner kronor inklusive nygrävd brunn och egen avloppsanläggning.

– En kompis i byn har ett sågverk som har försett oss med bondsågad furu, pappa hittade ett gammalt skiffertak i Värmland som blivit golv. Vi har lagt ned åtskilligt med egen tid förstås. Byggbranschen är annars rätt trubbig, det är svårt att hitta det man vill ha, på det här viset får vi en helt annan kvalitetskontroll än det normala.

Hörndetalj i fasaden

Foto: Daniel Widman

Den obehandlade träfasaden är byggd med liggande senvuxen rätt grov kärnfura som har varierande bredd och är ungefär 28 millimeter tjock.

– Det blir lite av en analogi till en traditionell timmerstomme, menar Daniel Widman. Fasaden kommer att åldras olika i beroende på vilket väderstreck den vetter, mot norr blir den grå och mot söder kan den bli nästan bärnstenssvart som på gammelgården i byn, men det dröjer nog en femtio år…

Fasaden på fjällstugan

Foto: Åke E:son Lindman

Dagspressdebatten mellan gamla tiders stilideal och modernism, och där det så kallade arkitekturupprorets förespråkare häcklar arkitekturmodernismens alla lådor, känns rätt ytligt nykonservativt. Som om lådan uppfanns först av modernisterna, och som om man kan använda historien som projekteringsinstrument. Fjällstugan Ljungdalen visar att gammal byggnadsteknik kan inspirera till nytt, och till det förstås moderna planlösningar för vår tids livsstilar.

– Jag tror på trä både i småhusbranschen, som vi verkar i, men också i större projekt, säger Daniel Widman. Problemet i byggbranschen, men också bland trähustillverkare, är att man fortfarande arbetar med en massa olika skikt istället för att få till en enkelhet för sunda hus där man i princip bara arbetar med trä och luft.

Fasaden på fjällstugan, med dörr

Foto: Åke E:son Lindman

Ett portlider i traditionell stil ger en vindskyddad entré med förråd, mellanlagring av ved, pulkor på väggen och vallabod.

– Jag gillar att man kan se igenom ett hus över en gård och ut på andra sidan, understryker Daniel Widman. Och så slipper man blöta strumpor och sockor varje gång man ska in och ut, här bankar man först av snön utanför huset, sedan en andra gång inne i vagnslidret innan man går in.

Fasaden på fjällstugan

Foto: Åke E:son Lindman

Den handsågade grova fasadpanelen har en naturlig sprickbildning och oregelbundenhet som ger husets karaktär.

En traditionell timmerstuga hade varit svår att uppföra med tanke på att det lätt blir sättningar med de olika nivåerna till följd av terrängen. Lösningen hittade Daniel Widman med Isotimber borta i Östersund, en innovativ och samtidigt enkel lösning bestående av 2”4”-reglar och plywood som limmats ihop till byggblock.

– Utgångspunkten var att bygga ett massivt trähus och att undvika en lätt regelstomme, huset ska ju kunna kallställas när vi inte är här. Med den här lösningen så tar vi fasta på timmerväggens beprövade kvaliteter, men med bättre isoleregenskaper. Hela konstruktionen är diffusionsöppen, det är bara trä och luft.

Matplats

Foto: Åke E:son Lindman

Hallen har fått stående granpanel medan kök och storstuga klätts med lumppapp på traditionellt vis. Pappen har sedan målats med äggoljetempera.

Fasaden på fjällstugan, med fönster

Foto: Daniel Widman

Fasaden på fjällstugan

Foto: Daniel Widman

För att få ned kostnaden har Daniel Widman valt fasta glaskassetter med karmar som familjen själv tillverkat. Fönsterstorleken följer rummens funktion, och de är infästa så att karmen döljs fullt ut.

– Fönstren hade lätt kunnat kosta flera 100 000 kronor, nu har vi istället fasta fönster med treskikts isolerkassett med argon, vill vi ha in frisk luft så öppnar vi dörrarna. 

Vardagsrum

Foto: Åke E:son Lindman

Uppvärmningen sker med luftvärmepump ansluten till ett golvvärmesystem. Bergslagskaminen får rycka in när kylan slår till.

Korridor vid sovavdelning

Foto: Åke E:son Lindman

Kontrasten mellan de små sovkojorna uppe på loftet och den dubbelhöga entréhallen ger dynamik, fjällstugan känns betydligt större än de knappt 80 kvadratmetrarna.

Korridor med förvaring

Foto: Åke E:son Lindman

– Den här långa hallen hjälper till att få lite ordning i vardagen, hoppas Daniel Widman, om barnen inte orkar hänga upp kläderna i garderoben så hamnar de åtminstone på de här krokarna.

Korridor i sovavdelning

Foto: Åke E:son Lindman

Fasaden på fjällstugan

Foto: Åke E:son Lindman

Ytterdörr

Foto: Åke E:son Lindman

Korridor och trappa till ovanvåning

Foto: Åke E:son Lindman

Vardagsrum med kamin

Foto: Åke E:son Lindman

Matplats och kök

Foto: Åke E:son Lindman

Badrum

Foto: Åke E:son Lindman

Sovrum

Foto: Åke E:son Lindman

Sovrum

Foto: Åke E:son Lindman

Ytterdörr

Foto: Åke E:son Lindman

Fasaden på fjällstugan med ytterdörr

Foto: Åke E:son Lindman

Fasaden på fjällstugan med ytterdörr och snö

Foto: Daniel Widman

Fasaden på fjällstugan med snö

Foto: Daniel Widman

detaljbild av trä

Foto: Daniel Widman

Fönster

Foto: Daniel Widman

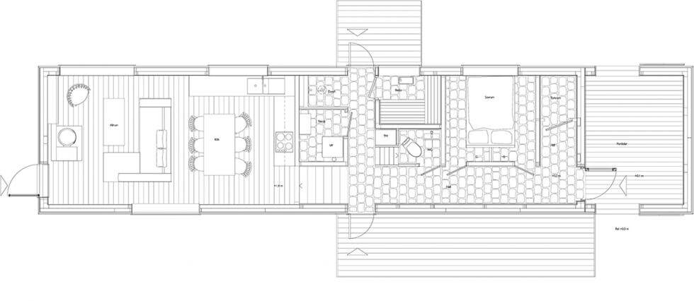
Planlösning

Planlösning entréplan.

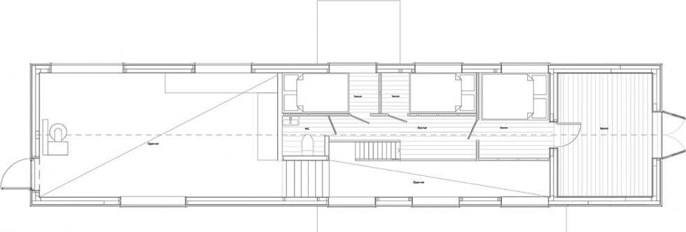
Planlösning

Planlösning sovloft.

Sektionsritning

Ritning av tvärsektion.

Fasadritning

Ritning av fasad mot söder.

Fasadritning

Ritning av fasad mot väster.