Hus Nilsson - mellan skog och hav

I Hus Nilsson har Tina Bergman tagit fasta på enkla och rejäla material i ett fritidshus som ska kunna växa med sina brukare.
Hus Nilsson

Foto: Peter Guthrie

Hus Nilsson vid Norrfjärden i Söderhamns skärgård tar fasta på omgivningens inspiration, Bottenhavets gråtonade vattenyta går igen i det aluzinkbehandlade taket, skog och hällar inspirerar både fasad- och markbehandling. Arkitekten Tina Bergman, som sedan flera år driver sitt kontor i London, har tagit fasta på enkla och rejäla material i ett fritidshus som ska tåla att växa med sina brukare.

Fasad i sten och trä

Foto: Peter Guthrie

Hus Nilsson är tänkt att fungera året runt och att även kunna förändras utifrån familjens behov när barnen blir större och kräver mer avskildhet.

– Den gamla nu rivna sportstugan från femtiotalet användes mest för kortare visiter, berättar arkitekt Tina Bergman, ett hus att värma sig efter skridskoåkning men utan fungerande vatten vintertid, och en viloplats efter bad och fiske under sommaren. 

Öppen planlösning

Foto: Peter Guthrie

Fritidshuset är byggt kring en centralt placerad gemensam del med kök och vardagsrum som både kan öppnas och slutas mot de kringliggande rummen.

– Barnens sovrum och sovloft med anslutande allrum ligger på den ena sidan, föräldrarnas ligger på den andra. Det gör det möjligt att skapa både privata och gemensamma zoner som kan förändras allteftersom.

Kamin i vardagsrum

Foto: Peter Guthrie

Kaminen fungerar som ett både sammanhållande och avskiljande byggnadselement i det stora rummet.

Vardagsrum

Foto: Peter Guthrie

Trots att tomten ligger på östkusten så vetter tomten med den långsmala byggnadskroppen mot väster.

– Invändiga såväl som utvändiga rum vänder sig mot den vackra vyn för fjärden, men också mot skogen, förklarar Tina Bergman.

Gavel i trä

Foto: Peter Guthrie

De stora skjutpartierna i glas gör att ute- och innemiljö flyter samman till olika rum med olika karaktär.

– Min bärande idé har varit att skapa ett samband mellan inne och ute, att få in både skog och hav i ett hus där man kan sitta och njuta av utsikten lika väl som att vara ute och plocka bär i skogen eller utforska Söderhamns innerskärgård från båten.

Utsikt från vardagsrum

Foto: Peter Guthrie

Grundkonstruktionen är en traditionell platta på mark, i övrigt är både stomme och fasad utförd i trä med vertikala bärande reglar och takbalkar av limträ.

– Jag tycker om trä eftersom det är ett lokalt och levande material som åldras vackert, säger Tina Bergman, dessutom önskar ofta både beställare och kommuner  att trä används.

Murad stenvägg i fasad

Foto: Peter Guthrie

Fasaden av kärnfura har behandlats med Sioos kiseldioxidbaserade träskydd, vid grund, gavlar och på entrésidan har panelen kompletterats med en stensockel i StonoCos cementbaserade granitimitation. 

Tak i aluzinkbehandlad stålplåt

Foto: Peter Guthrie

Många arkitekter insisterar på flacka tak i modernistisk stil, men Tina Bergman menar i det utsatta läget är en traditionell takform lämplig.

– Det finns en anledning att ha ett rätt brant sadeltak med tanke hur mycket snö och regn som kan ösa ned. Vi har också en rätt stor utkragning av det aluzinkbehandlade stålplåtstaket för att skydda mot blåst och saltvatten.

Stora glaspartier

Foto: Peter Guthrie

Hus Nilssons form och materialitet anknyter till områdets byggnadstradition, men med ett starkare och tydligare uttryck.

– Jag brukar fråga mina kunder hur de lever sitt liv för att försöka utröna vad de önskar. I Hus Nilsson har jag haft rätt fria händer där jag tagit fasta på hur utemiljön i form av skog och hav samspelar med varandra både i och utanför huset.

aluzinkbehandlad stålplåt

Foto: Peter Guthrie

Stora glaspartier

Foto: Peter Guthrie

Stege till sovloft

Foto: Peter Guthrie

Stenlagd uteplats

Foto: Peter Guthrie

Kamin i vardagsrum

Foto: Peter Guthrie

Kvällsbild

Foto: Peter Guthrie

Kvällsbild

Foto: Peter Guthrie

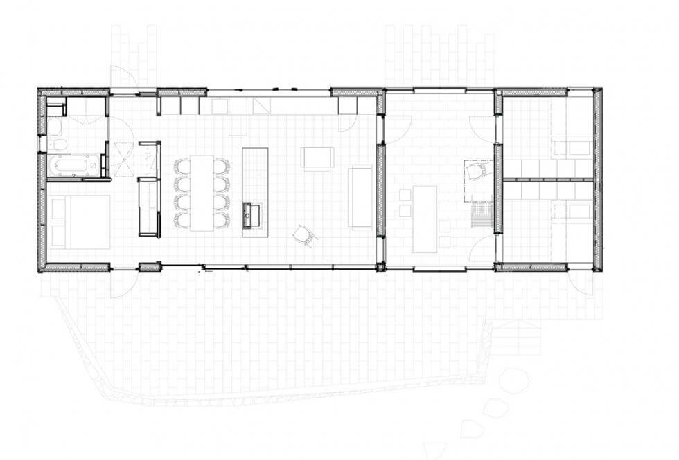
Planlösning

Planritning Hus Nilsson.

Situationsplan

Situationsplan Hus Nilsson.

Tvärsektion Hus Nilsson

Tvärsektion Hus Nilsson.